

作品包括:
Word版设计说明书1份,共25页,约10000字
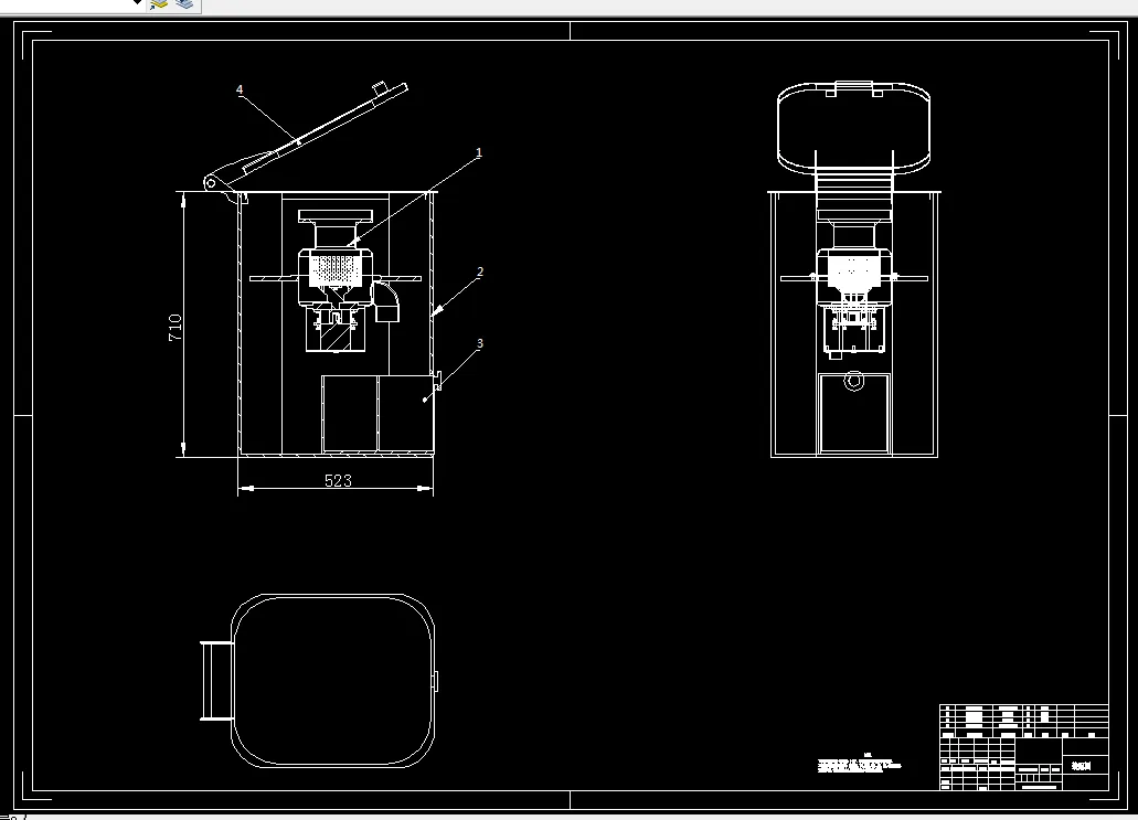
CAD版本图纸,共5张
SW三维图一套

摘 要
食品垃圾处理技术是垃圾破碎的重要技术之一,它是一种将食物颗粒垃圾尺寸变小的加工技术,现生活垃圾随处可见,每隔家庭都离不开食品垃圾,食品垃圾处理不好,会造成管道堵塞和细菌病毒感等,可能造成经济或身体上的损失,因此人类利用科学技术和设备应对解决生活中问题,因此食品垃圾粉碎机走进人们的生活。
随着人们生活水平的提高,人们对家庭生活的需求也在不断提高。目前,国内消费市场中家用粉碎机频频上市,功能新颖独特,它将成为家庭生活的好伴侣。本文主要论述了家用粉碎机的机械结构、外观及其设计。在这次设计过程中,利用三维建模软件进行了实体建模,突破二维空间,使其更加直观。在材料的选择上,刀片采用了不锈钢304材料,使粉碎机的健康得到保证。
关键词:家用厨余垃圾自动绞碎机;机械结构;分析计算;三维软件
目录
摘 要 3
Abstract 4
第1章 绪 论 5
1.1 前言 5
1.2垃圾处理技术的发展现状 5
1.3 我国食品垃圾处理装置技术存在的问题 7
第2章 家用厨余垃圾自动绞碎机总体结构设计 8
2.1 食品垃圾处理装置的工作流程 8
2.2 食品垃圾处处理装置的结构及工作原理 8
2.3 入料部分 9
2.4 入料部分 9
2.5 入料部分 9
2.6 进出料口部分 10
2.7 电机传动 10
2.8 电机选择 10
2.9 外壳设计 11
2.10 家用厨余垃圾自动绞碎机的总体设计 11
第3章 家用厨余垃圾自动绞碎机的分析与计算 13
3.1 家用厨余垃圾自动绞碎机的设计 13
3.1.1 装置主要参数的确定 13
3.1.2 设备结构 13
3.2 刀杆计算分析 14
3.2.1 键连接的强度分析 14
第4章 食品垃圾粉碎机的操作规程及注意事项 16
4.1 操作规程 16
4.2 适用范围 16
4.3 注意事项 16
第5章 家用厨余垃圾自动绞碎机的3D打印 17
5.1 建模软件介绍 17
5.2 部件3D建模 18
第5章 总结 21
参考 文献 22
致 谢 24
温馨提示:
1、题目前面的备注【字母数字编号】为本站整理分类的编号,与课题内容无关,请选题时忽视;
2、若题目上备注三维,则表示文件里包含三维源文件,由于三维组成零件数量较多,为保证预览截图的简洁性,本站将三维文件夹进行了打包。三维及CAD预览截图,均为本站电脑打开软件进行截图的,保证能够打开,下载原件超高清,下载后解压即可;
3、本站所有资源如无特殊说明,都需要本地电脑安装Office2007。图纸软件为AutoCAD,PROE,UG,SolidWorks,CATIA等;
4、本站所有图文资料仅供用户学习参考,不作为任何商用或其他用途;
5、本站不保证下载资源的准确性、安全性和完整性, 不包修改,不支持退换,同时也不承担用户因使用这些下载资源对自己和他人造成任何形式的伤害或损失;
6、 下载文件中如有侵权或不适当内容,请与我们联系,我们立即纠正。