

作品包括:
Word版设计说明书1份,共33页,约17000字
CAD版本图纸,共15张

摘要
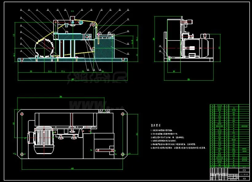
选定圆柱坐标型机械手的基本方案后,根据设计任务,为满足设计的要求,本次设计的机械手拥有5个自由度。将完成:手部抓取、手腕回转、手臂伸缩、手臂回转、手臂升降这5个主要运动。 本次设计的机械手采用4大部件和5个气动装置组成:(1)手部:为了使机械手的通用性更强,把机械手的手部结构设计成V型槽式可更换结构,使用的是夹持式手部。采用一个直线气压缸,通过机构运动实现手抓的张合。(2)腕部:考虑到手腕需要回转调整,因此采用一个回转气缸来实现手腕回转180°。(3)臂部:采用一个直线气压缸实现手臂平移。(4)机身:采用一个直线气压缸和一个回转气缸来实现手臂在机身上的升降和回转。
随着科学技术的发展和自动化生产线在企业产品生产中的广泛应用,机械手作为自动化生产线的重要组成部分也得到了长足的发展和进步,机械手的发展在企业的发展和创收上起到了举足轻重的作用。本文简单介绍了本课题的意义和内容,回顾了国内外机械手的发展概况,并对工件搬运机械手的研究。作者根据本课题的研究依据,对机械手的机械系统方案进行了设计,确整体结构和机、气一体化的实现方法,画出了各主要部件的机械结构图。
关键字:机械手;气动;设计研究
目 录
1 绪论 1
1.1 前言 1
1.2 机械手国内外研究现状 1
1.3 当今机械手具有的特点 2
2 机械手总体设计方案 3
2.1 机械手基本形式的选择 3
2.2 机械手的主要运动方式和部件 3
2.3 驱动方式的选择 4
2.4 机械手的主要设计参数 4
3 机械手手部设计 5
3.1 手部的种类及设计基本要求 5
3.1.1 手部的种类 5
3.1.2 手部设计基本要求 5
3.2 手部的结构设计及尺寸的计算 6
3.2.1 手部的设计 6
3.2.2 手指指端设计 7
3.2.3 手部各主要尺寸的确定 7
3.3 手部夹紧气缸的设计 8
3.3.1 手部加紧力FN的计算 8
3.3.2 手部夹紧气缸主要尺寸的确定 9
4 机械手手腕设计 11
4.1 手腕设计基本要求 11
4.2 手腕的结构设计 11
4.3 手腕回转气缸的设计 12
4.3.1 手腕转动时所需驱动力矩M驱的计算 12
4.3.2 手腕回转气缸主要尺寸的确定 14
5 机械手手臂设计 15
5.1 手臂设计的基本要求 15
5.2 手臂的结构设计 16
5.3 手臂伸缩气缸的设计 16
5.3.1 手臂伸缩运动驱动力F的计算 16
5.3.2 手臂伸缩气缸主要尺寸的确定 18
6 机械手机身设计 19
6.1 机身整体的结构设计 20
6.1.1 常见机身的结构 20
6.1.2 机身整体结构的选择 20
6.2 机身回转气缸的设计 21
6.2.1 回转气缸驱动力矩M驱的计算 21
6.2.2 机身回转气缸主要尺寸的确定 22
6.3 机身升降机构的设计 23
6.3.1 手臂偏重力矩M偏的计算 23
6.3.2 升降不自锁条件分析计算 23
6.3.3 机身升降运动的液压缸驱动力F的计算 24
6.3.4 轴承的选择分析 25
7 全文总结与展望 25
7.1 全文总结 25
7.1.1 机械系统方面 25
7.1.2 驱动传动方面 25
7.2 展望 25
参考文献..........................................................................27
致谢..............................................................................28
附录..............................................................................29
温馨提示:
1、题目前面的备注【字母数字编号】为本站整理分类的编号,与课题内容无关,请选题时忽视;
2、若题目上备注三维,则表示文件里包含三维源文件,由于三维组成零件数量较多,为保证预览截图的简洁性,本站将三维文件夹进行了打包。三维及CAD预览截图,均为本站电脑打开软件进行截图的,保证能够打开,下载原件超高清,下载后解压即可;
3、本站所有资源如无特殊说明,都需要本地电脑安装Office2007。图纸软件为AutoCAD,PROE,UG,SolidWorks,CATIA等;
4、本站所有图文资料仅供用户学习参考,不作为任何商用或其他用途;
5、本站不保证下载资源的准确性、安全性和完整性, 不包修改,不支持退换,同时也不承担用户因使用这些下载资源对自己和他人造成任何形式的伤害或损失;
6、 下载文件中如有侵权或不适当内容,请与我们联系,我们立即纠正。