

作品包括:
Word设计说明书1份,共37页,约15000字
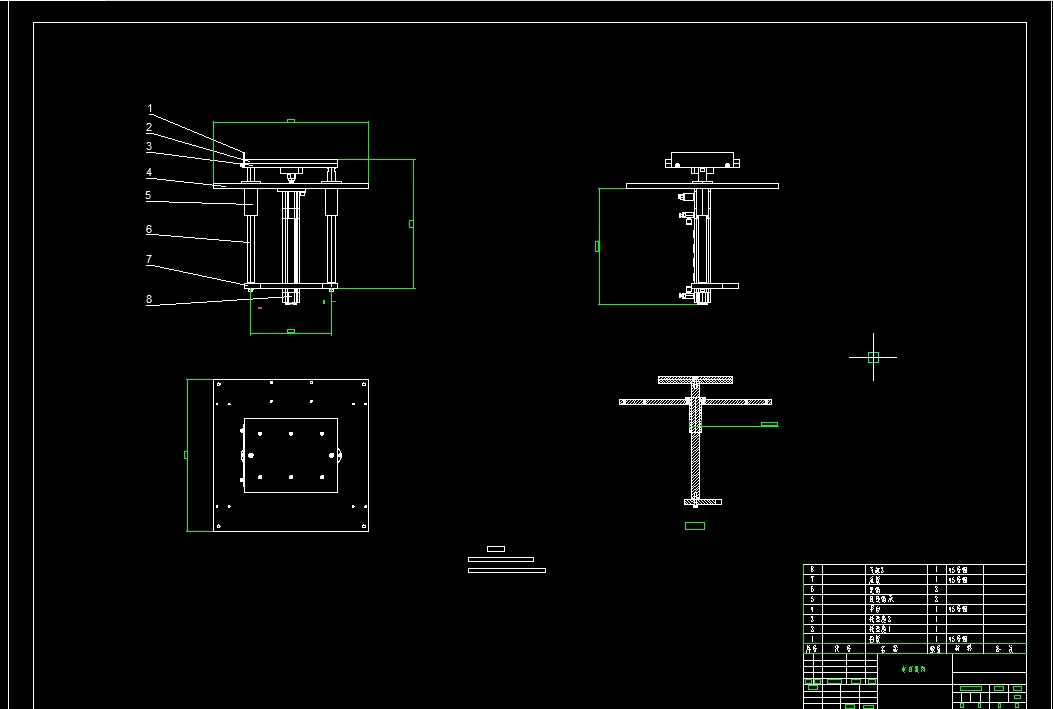
CAD版本图纸,共5张

摘 要
托盘移动升降机是一种现代使用比较普遍,发展比较良好的将人或货物升降到某一高度的设施,我国目前正处于建立的成长阶段,托盘移动升降机的设计,制造虽然在某些程度上发展的比较成熟,但还是有很多的地方需要进步和有一些欠缺,还需要进一步的学习。 托盘移动升降机在现代社会中应用更加广泛,主要是在自动化生产线与专业设备配套运用、物料的短程运输、仓库货物的进出库等等,可以按照不一样的工作情况来设计不同托盘、适合的载重与相符的行程范围,是当代工业的效率提高的必要之路。
这一次的设计是托盘移动升降机,升降机有很多种传动方式,比如剪叉式等等,我采用的是气动和电动传动的,这种的升降机的好处是噪音小,精度精确,误差小,易控置,反应速度快,容易实现自动化,但载荷小主要适用于生产流水线中的物料运输,轻小物品的运输等等。
在这次托盘移动升降机的设计和制造过程中我以保障载荷和质量安全为要求的同时又能保证耐用经济的想法进行设计方法的选择标准,在机械构造上满足要求的条件下尽可能的降低生产成本和结构简单化。
(1)确保材料和结构能够拥有良好的强度使托盘移动升降机拥有足够的载重能力和稳定性。
(2)确保材料和结构能够拥有良好的的刚度使托盘移动升降机的整体结构不变型。
(3)托盘移动升降机要轻小简单,以便容易搬运和修理。
经过对工作原理的分析和结构的计算和设计,最终确定导轨、支架、气缸、活塞杆等零件的尺寸和材料的选择,让每个零件都能够达到所需要的强度和硬度,然后通过CAD或者CAXA等二维绘图软件绘制出装配图和机构图、部件图。通过本次设计也使我对于机械行业的设计与实践有了基础的认识,而且可以使我在机械结构设计、气液动系统设计、零件强度计算、编写文件、查阅文献能力受到一次综合训练。
关键词:升降机;支架;液压缸;强度
目 录
前言 1
一. 绪论 2
1.1概述 2
1.2托盘移动升降机的发展现状 3
1.3托盘移动升降机的发展趋势 3
1.4升降机的设计特点 3
二. 托盘移动升降机总体设计方案 4
2.1设计思想 4
2.2设计工艺参数 4
2.3工况分析 5
三. 机构的设计和计算 5
3.1 结构和原理 5
3.2结构和零件设计 6
3.2.1结构参数的计算 6
3.2.2 支架和上顶板结构的确定 8
四. 升降机系统的设计 14
4.1执行元件的选择 15
4.1.1执行元件类型、数量和安装位置 15
4.1.2 速度和载荷计算 15
4.2液压系统主要参数的确定 17
4.2.1系统压力的初步确定 17
4.2.2液压执行元件的主要参数 18
4.3控制阀的选用 19
4.3.1压力控制阀 19
4.3.2流量控制阀 20
4.3.3方向控制阀 20
4.4辅助元件的选择计算 20
4.4.1管路 21
4.4.2过滤器的选择 22
4.4.3温度计的选择 22
4.4.4压力表选择 22
五. 液压系统方案的设计 23
5.1油路循环方式的分析和选择 23
5.2开式系统油路组合方式的分析选择 24
5.3调速方案的选择 24
5.4液压系统原理图的确定 25
5.5验算液压系统性能 25
5.5.1系统压力损失验算 26
5.5.2验算系统的总效率验算 27
六. 经济分析 27
七. 结论 28
致谢 29
参考文献 30
附录一 31
温馨提示:
1、题目前面的备注【字母数字编号】为本站整理分类的编号,与课题内容无关,请选题时忽视;
2、若题目上备注三维,则表示文件里包含三维源文件,由于三维组成零件数量较多,为保证预览截图的简洁性,本站将三维文件夹进行了打包。三维及CAD预览截图,均为本站电脑打开软件进行截图的,保证能够打开,下载原件超高清,下载后解压即可;
3、本站所有资源如无特殊说明,都需要本地电脑安装Office2007。图纸软件为AutoCAD,PROE,UG,SolidWorks,CATIA等;
4、本站所有图文资料仅供用户学习参考,不作为任何商用或其他用途;
5、本站不保证下载资源的准确性、安全性和完整性, 不包修改,不支持退换,同时也不承担用户因使用这些下载资源对自己和他人造成任何形式的伤害或损失;
6、 下载文件中如有侵权或不适当内容,请与我们联系,我们立即纠正。