

作品包括:
Word设计说明书1份,共39页
任务书一份
外文翻译一份
CAD版本图纸,共7张

摘要
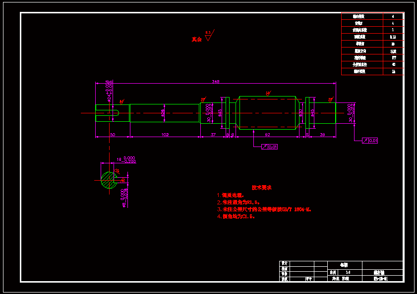
立式金属带锯床分为锯床机械结构设计部分、工作台滚珠丝杠计算校核部分、电气控制系统设计部分。(1)机械结构设计部分:采用了两个锯轮的大型锯床结构,能够实现一般材料的加工,对轴,锯轮都的设计都一一做了验算,实现了在保证锯床有效的工作的同时,中心部件更紧凑。(2)工作台滚珠丝杠计算校核部分:滚珠丝杠是工作台的核心部件,对滚珠丝杠的计算校核大大的保证了工作台的工作可靠度。(3)电气系统设计部分:由于选用的是步进电机相搭配的驱动器,所以控制更加可靠稳定,而且还增加了针对性。驱动器上级选用三菱PLC控制,控制更加稳定可靠,可扩展性更强。带锯床具有切割速度快、尺寸精度高、材料损失小等特点。除此之外,金属带锯床适应性厂、动力消耗低、操作简便、易于维护并可进行角度切割,因而获得了越来越广泛的应用。
温馨提示:
1、题目前面的备注【字母数字编号】为本站整理分类的编号,与课题内容无关,请选题时忽视;
2、若题目上备注三维,则表示文件里包含三维源文件,由于三维组成零件数量较多,为保证预览截图的简洁性,本站将三维文件夹进行了打包。三维及CAD预览截图,均为本站电脑打开软件进行截图的,保证能够打开,下载原件超高清,下载后解压即可;
3、本站所有资源如无特殊说明,都需要本地电脑安装Office2007。图纸软件为AutoCAD,PROE,UG,SolidWorks,CATIA等;
4、本站所有图文资料仅供用户学习参考,不作为任何商用或其他用途;
5、本站不保证下载资源的准确性、安全性和完整性, 不包修改,不支持退换,同时也不承担用户因使用这些下载资源对自己和他人造成任何形式的伤害或损失;
6、 下载文件中如有侵权或不适当内容,请与我们联系,我们立即纠正。