

作品包括:
Word版说明书1份,共34页,约14000字
CAD版本图纸,共5张
UG三维图一份
摘 要
园林常规地打孔施肥一体机是在园林常规地面打孔施肥合为为一体的现代化
新型机械设备。设计结合机、电、液一体化的高新技术产品,可根据要求,对园
林树木、绿地等土壤实施打孔、施肥,必要时还可以进行土壤改良。
本次设计根据实际情况和现实场地,以及环保等因素的综合分析,进行结
构的大致设想,从工作情况、负载分析着手进行液压缸的有关参数计算,然
后根据受力,运动等参数进行车体各部分的设计,进而将各个部分构成整个
车体,最后组成一张装配图,在此基础上,还进行了车体的建模以及运动的
仿真制作。本论文主要是以车体的结构设计为主。
关键词: 打孔 液压 机械
目 录
引 言 1
1绪论 选题的背景和意义 2
1.1园林机械的发展概况 2
1.1.1国内园林机械的发展状况 2
1.1.2国外园林机械的发展状况 3
1.2园林机械在园林绿化中的应用 3
1.3园林绿化机械使用中存在的问题 4
1.4园林绿化机械发展前景展望 4
2 园林常规地打孔施肥一体机的设计 7
2.1基本参数及要求 7
2.2工作形式和工作过程 7
3园林常规地打孔施肥一体机车体方案 7
3.1液压油缸选型 9
3.1.1液压油缸的概述 9
3.1.2液压油缸的选型 10
3.2液压马达选型 11
3.3主架设计 12
3.4转头 12
3.5车体把手 13
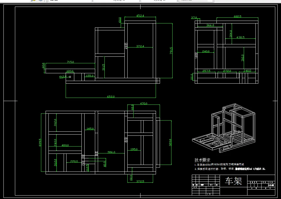
3.6车架设计 13
3.6.1车架承载方式的选择 13
3.6.2车架最终方案的确定 16
3.7肥料箱 16
3.8步进电机 17
3.8.1步进电机概况及工作原理 17
3.8.2步进电机分类 17
3.8.3步进电机选型 18
3.9万向轮 20
3.9.1万向轮概述 20
3.9.2万向轮安装使用方法 20
3.9.3万向轮选型 20
3.10主架支座 21
3.11液压泵 21
3.11.1液压泵概述 21
3.11.3液压泵选型 21
3.12液压油箱 22
3.12.1液压油箱概述 22
3.12.2液压油箱安装方式 22
3.12.3液压油箱尺寸 22
3.13汽油发动机 22
3.13.1汽油发动机概述 22
3.13.2汽油发动机和柴油发动机的比较 23
3.13.3汽油发动机选型 23
3.14其他装置 24
3.15制作要点 24
4结 论 26
5参考文献 27
6致 谢 28
温馨提示:
1、题目前面的备注【字母数字编号】为本站整理分类的编号,与课题内容无关,请选题时忽视;
2、若题目上备注三维,则表示文件里包含三维源文件,由于三维组成零件数量较多,为保证预览截图的简洁性,本站将三维文件夹进行了打包。三维及CAD预览截图,均为本站电脑打开软件进行截图的,保证能够打开,下载原件超高清,下载后解压即可;
3、本站所有资源如无特殊说明,都需要本地电脑安装Office2007。图纸软件为AutoCAD,PROE,UG,SolidWorks,CATIA等;
4、本站所有图文资料仅供用户学习参考,不作为任何商用或其他用途;
5、本站不保证下载资源的准确性、安全性和完整性, 不包修改,不支持退换,同时也不承担用户因使用这些下载资源对自己和他人造成任何形式的伤害或损失;
6、 下载文件中如有侵权或不适当内容,请与我们联系,我们立即纠正。