

作品包括:
Word版说明书1份,共35页,约9000字
CAD版本图纸,共16张
自动煎饼机的设计
摘 要
针对国内煎饼机的现状及其性能特点,确定了煎饼机的结构,设计出一种新型煎饼机。从提高加工效率和满足加工工艺要求出发,确定了动力传动方式。其主要由旋转式鏊炉、辊式刮糊输送装置、刮刀分离装置组成。刮糊输送装置由摩擦轮带动拨料辊实现;刮刀分离装置由铰链四杆实现。动力传动部分主要由链轮、锥齿轮及不完全齿轮组成。并且结合煎饼机各部件之间的配合,进行了主要参数的设计和计算。
该机具有整机布置合理,操作简单,易加工制造,自动化程度高,生产效率高的特点。
关键词: 煎饼机;刮糊装置;刮刀分离机构
目 录
摘 要 I
Abstract II
1绪 论 1
1.1设计的目的及意义 1
1.2国内煎饼机的研究现状 2
1.2.1滚筒式煎饼机 2
1.2.2鏊炉式煎饼机 3
1.3设计方案 6
1.3.1研究内容 6
1.3.2研究目标 6
1.3.3研究方法 6
1.4设计的技术路线 7
2总体方案的设计 8
2.1传动方案的确定 8
2.1.1机器的传动路线 8
2.1.2传动方案简图 9
2.2电动机的选择 9
2.2.1传动效率的确定 9
2.2.2估算工作时各部分所需功率 10
2.2.3电动机的选择 10
3主要零部件的设计 11
3.1鏊炉旋转传动部件的设计 11
3.1.1链轮A的设计 11
3.1.2锥齿轮的设计 13
3.2分离机构传动部件的设计 15
3.2.1不完全齿轮的设计 15
3.2.2链轮B的设计 19
3.2.3曲柄连杆机构的设计 20
3.3刮糊机构传动部件的设计 21
3.3.1凸轮的设计 21
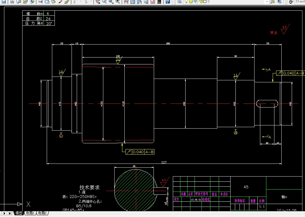
3.4轴的设计及轴承的选择 23
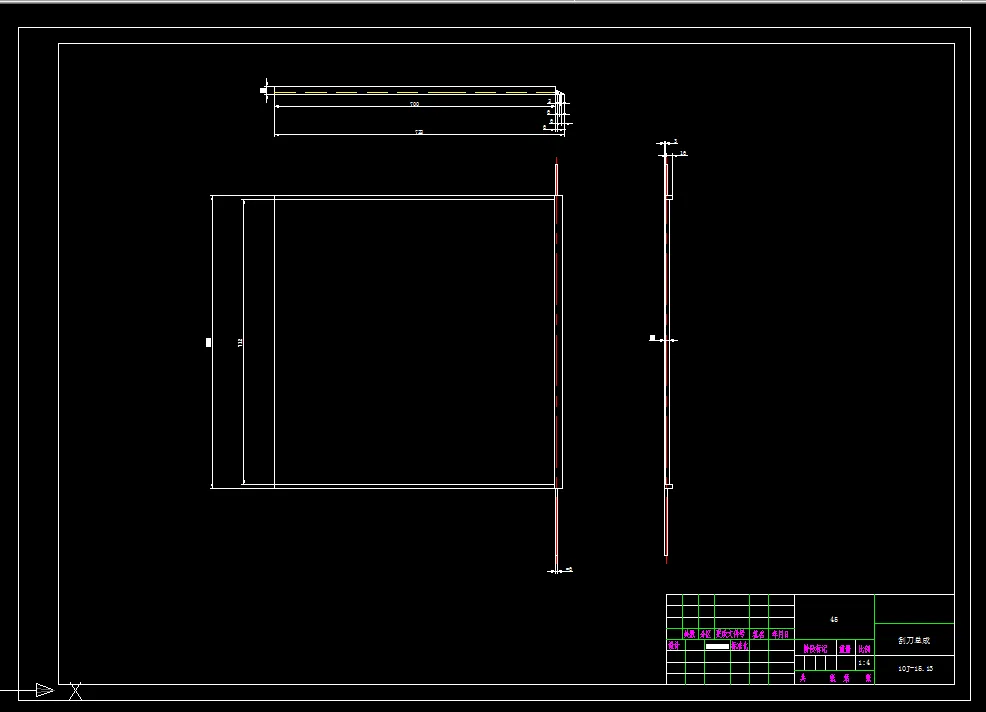
3.5分离装置的设计 24
3.6刮糊装置的设计 25
4其他部件的选择 26
4.1联轴器的选择 26
4.2减速器的选择 26
5 总 结 28
参考文献 29
致 谢 30
温馨提示:
1、题目前面的备注【字母数字编号】为本站整理分类的编号,与课题内容无关,请选题时忽视;
2、若题目上备注三维,则表示文件里包含三维源文件,由于三维组成零件数量较多,为保证预览截图的简洁性,本站将三维文件夹进行了打包。三维及CAD预览截图,均为本站电脑打开软件进行截图的,保证能够打开,下载原件超高清,下载后解压即可;
3、本站所有资源如无特殊说明,都需要本地电脑安装Office2007。图纸软件为AutoCAD,PROE,UG,SolidWorks,CATIA等;
4、本站所有图文资料仅供用户学习参考,不作为任何商用或其他用途;
5、本站不保证下载资源的准确性、安全性和完整性, 不包修改,不支持退换,同时也不承担用户因使用这些下载资源对自己和他人造成任何形式的伤害或损失;
6、 下载文件中如有侵权或不适当内容,请与我们联系,我们立即纠正。