

作品包括:
Word设计说明书1份,共81页
任务书一份
开题报告一份
外文翻译一份
CAD版本图纸,共5张
摘要
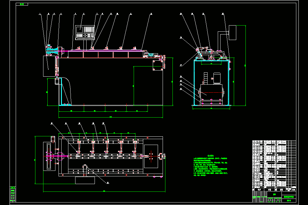
现代科技的高速发展,弯管技术已广泛应用于各个生产行业,特别是在锅炉、压力容器、石油石化工程等领域。本次研究的数控连续弯管机采用三维自由弯曲成型技术。弯管机构选择滚珠丝杠带动,通过使用两个滚珠丝杠混合作用来实现机头机构的任意方向,任意角度的弯曲。一个滚珠丝杠控制X方向的移动,另外一个滚珠丝杠控制Y方向的移动。推料机构是通过滚珠丝杠带动推料块来实现弯管的进给。
温馨提示:
1、题目前面的备注【字母数字编号】为本站整理分类的编号,与课题内容无关,请选题时忽视;
2、若题目上备注三维,则表示文件里包含三维源文件,由于三维组成零件数量较多,为保证预览截图的简洁性,本站将三维文件夹进行了打包。三维及CAD预览截图,均为本站电脑打开软件进行截图的,保证能够打开,下载原件超高清,下载后解压即可;
3、本站所有资源如无特殊说明,都需要本地电脑安装Office2007。图纸软件为AutoCAD,PROE,UG,SolidWorks,CATIA等;
4、本站所有图文资料仅供用户学习参考,不作为任何商用或其他用途;
5、本站不保证下载资源的准确性、安全性和完整性, 不包修改,不支持退换,同时也不承担用户因使用这些下载资源对自己和他人造成任何形式的伤害或损失;
6、 下载文件中如有侵权或不适当内容,请与我们联系,我们立即纠正。