

作品包括:
Word版说明书1份,共39页,约12000字
任务书一份
外文翻译一份
CAD版本图纸,共3张
汽车起重机关键件的设计及其优化
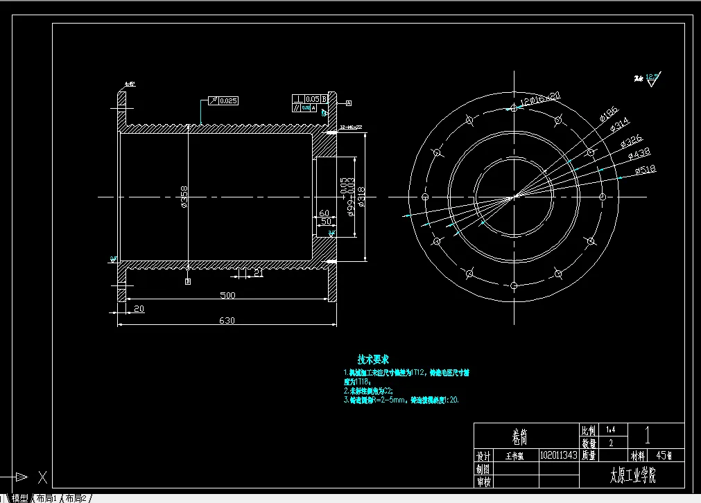
摘要:近两年,我国的起重机发展迅速,在各个领域的应用也日趋广泛,但与世界先进水平还有一定的差距,主要原因是国内配套零部件落后,材质差,再有就是制造工艺水平低。本文对QY20B汽车起重机的设计做了研究,就汽车起重机整车做了大概的分析和论述,就汽车起重机卷筒机构进行了设计,对于中、小型汽车起重机的发展具有一定的积极意义。
solidworks软件功能强大,组件繁多。 Solidworks有功能强大、易学易用和技术创新三大特点,这使得SolidWorks 成为领先的、主流的三维CAD解决方案。SolidWorks 能够提供不同的设计方案、减少设计过程中的错误以及提高产品质量。有限元分析是用较简单的问题代替复杂问题后再求解。本设计通过运用solidworks软件对卷筒,卷轴建模,运用有有限元分析设计合理性
关键字: 汽车起重机,卷筒机构,汽车起重机,solidworks,有限元分析
目 录
1绪 论 1
1.1概况 1
1.2 国内汽车起重机发展现状及发展趋势 1
1.3国外汽车起重机发展现状及发展趋势 2
1.4 汽车起重机产品的发展趋势 3
1.5 SolidWorks软件简介 4
1.6 有限元法的基础理论和软件介绍 5
1.6.1 有限元法的提出和应用 6
1.6.2 有限元法的优越性与局限性 6
1.7课题任务 7
2 卷筒的设计计算及强度校核 8
2.1 卷筒的结构与材料 8
2.2 卷筒的钢丝绳 8
2.3 卷筒的主要尺寸 9
2.3.1卷筒直径D 9
2.3.2卷筒的长度L 9
2.3.3卷筒的厚度 10
2.4 滚筒体受力分析 10
2.5滚筒强度校核 11
3 轴的设计计算及强度校核 12
3.1按扭矩初算轴径 12
3.2轴的结构设计 13
3.3轴的受力分析 14
3.4输入轴键连接的选择 15
3.5联轴器的选择 15
4 Solidworks三维实体设计 16
4.1 Solidworks软件的特点 16
4.2 Solidworks在本设计的应用 16
5有限元分析 21
5.1卷筒的有限元建模与静态分析 21
5.1.1卷筒的载荷分析 21
5.1.2有限元模型建立 21
5.2 卷筒轴的有限元建模与静态分析 26
5.2.1 结构模型 26
5.2.2 边界条件的处理 26
5.2.3 材料定义 27
5.2.4 网格的划分和控制 27
5.2.5 运行分析和观察结果 27
结 论 30
参考文献 31
致 谢 31
温馨提示:
1、题目前面的备注【字母数字编号】为本站整理分类的编号,与课题内容无关,请选题时忽视;
2、若题目上备注三维,则表示文件里包含三维源文件,由于三维组成零件数量较多,为保证预览截图的简洁性,本站将三维文件夹进行了打包。三维及CAD预览截图,均为本站电脑打开软件进行截图的,保证能够打开,下载原件超高清,下载后解压即可;
3、本站所有资源如无特殊说明,都需要本地电脑安装Office2007。图纸软件为AutoCAD,PROE,UG,SolidWorks,CATIA等;
4、本站所有图文资料仅供用户学习参考,不作为任何商用或其他用途;
5、本站不保证下载资源的准确性、安全性和完整性, 不包修改,不支持退换,同时也不承担用户因使用这些下载资源对自己和他人造成任何形式的伤害或损失;
6、 下载文件中如有侵权或不适当内容,请与我们联系,我们立即纠正。