

作品包括:
Word版说明书一份,83页,约32000字
CAD版本图纸,共6张
摘要
双柱式举升机是一种汽车修理和保养单位常用的举升设备,广泛用于轿车等小型车的维修和保养。它是一种把整车装备重量不大于3吨的各种轿车、面包车、工具车等举升到一定高度内供汽车维修和安全检查作业的保修设备。
关键词 升举机 液压执行元件 起重链 槽轮 钢丝绳
目 录
摘要 I
ABSTRACT II
第1章 绪论 6
1前言 6
2升举机的概述 7
第2章 总体设计 8
第3章 主要技术特点及其技术参数 9
1 技术特点 9
2技术参数 9
第4章 液压系统的传动计算 10
1 液压系统的设计步骤与设计要求 10
2 进行工况分析、确定液压系统的主要参数 11
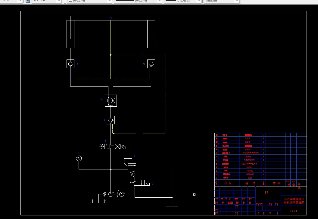
3 制定基本方案和绘制液压系统图 20
4 液压元件的选择与专用件设计 22
5 液压系统性能验算 27
第5章 液压执行元件 34
1 液压缸 34
2 液压马达 45
第6章 液压辅助元件及液压泵站 46
1 管件 46
2. 液压软管接头 46
3 油箱及其附件 47
4 UP液压动力包 47
6.液压油的选择 51
第7章 钢丝绳的选择计算 52
1 钢丝绳的计算 52
2 钢丝绳的选择 52
第8章 滑轮的选择和计算 54
1 滑轮结构和材料 54
2 滑轮的主要尺寸 54
3 滑轮直径与钢丝绳直径匹配关系 54
4 滑轮形式 54
5 滑轮技术条件 54
6 滑轮强度计算 55
第9章 起重链条和槽轮 56
1 板式链条和槽轮的选择 56
2 板式链及端接头 56
3 板式链用槽轮 56
第10章 使用说明 57
1.使用说明 57
2使用时注意事项 57
3.升举机安全操作规程 57
第11章 经济效益分析 58
总 结 59
谢 辞 60
参考文献 61
专题 62
附录 68
温馨提示:
1、题目前面的备注【字母数字编号】为本站整理分类的编号,与课题内容无关,请选题时忽视;
2、若题目上备注三维,则表示文件里包含三维源文件,由于三维组成零件数量较多,为保证预览截图的简洁性,本站将三维文件夹进行了打包。三维及CAD预览截图,均为本站电脑打开软件进行截图的,保证能够打开,下载原件超高清,下载后解压即可;
3、本站所有资源如无特殊说明,都需要本地电脑安装Office2007。图纸软件为AutoCAD,PROE,UG,SolidWorks,CATIA等;
4、本站所有图文资料仅供用户学习参考,不作为任何商用或其他用途;
5、本站不保证下载资源的准确性、安全性和完整性, 不包修改,不支持退换,同时也不承担用户因使用这些下载资源对自己和他人造成任何形式的伤害或损失;
6、 下载文件中如有侵权或不适当内容,请与我们联系,我们立即纠正。