

作品包括:
说明书一份,共42页,约12000字
CAD版本图纸,共7张
摘 要
本课题的任务是翻钢机设计,钢坯在输送过程中具有一定的专用性,需解决由输送辊道到冷床的问题,这就需要用到翻钢机,其作用就是按照一定角度和频率把钢坯翻转并送至专门位置。本次设计的翻钢机主要由电机、传动机构、曲柄、连杆、摇杆(翻钢爪)、支架等构成。
本次设计的设计主要包括:电动机的选取,传动机构的设计,曲柄摇杆式翻钢机构的设计,机架的设计。本次设计首先,通过对搓翻钢机结构及原理进行分析,在此分析基础上提出了翻钢机的翻钢机构和传动机构的设计方案;接着,对主要技术参数进行了计算选择;然后,对各主要零部件进行了设计与校核;最后,通过AutoCAD制图软件绘制了搓丝机总装图、传动装置装配图及主要零部件图。
通过本次设计,巩固了大学所学专业知识,如:机械原理、机械设计、材料力学、公差与互换性理论、机械制图等;掌握了普通机械产品的设计方法并能够熟练使用AutoCAD制图软件,对今后的工作于生活具有极大意义。
关键词:翻钢机,曲柄摇杆机构,传动机构,设计
目 录
摘 要 III
Abstract IV
第一章 绪论 1
1.1翻钢机简介 1
1.2研究现状分析 1
第二章 总体设计 2
2.1翻钢机功能要求 2
2.2方案选定 2
2.2.1翻钢机构方案选定 2
2.2.2传动机构方案选定 3
第三章 动力及传动机构设计 7
3.1电动机选择 7
3.2总体参数计算 7
3.2.1传动比分配 7
3.2.2运动和动力参数计算 7
3.3涡轮蜗杆传动设计 8
3.3.1选择蜗轮蜗杆的传动类型 8
3.3.2选择材料 9
3.3.3按计齿面接触疲劳强度计算进行设 9
3.3.4蜗杆与蜗轮的主要参数与几何尺寸 10
3.3.5校核齿根弯曲疲劳强度 11
3.3.6验算 12
3.4齿轮传动设计 12
3.4.1选精度等级、材料和齿数 12
3.4.2按齿面接触疲劳强度设计 12
3.4.3按齿根弯曲强度设计 14
3.4.4几何尺寸计算 15
3.5轴的设计与校核 16
3.5.1蜗杆轴 16
3.5.2涡轮轴 19
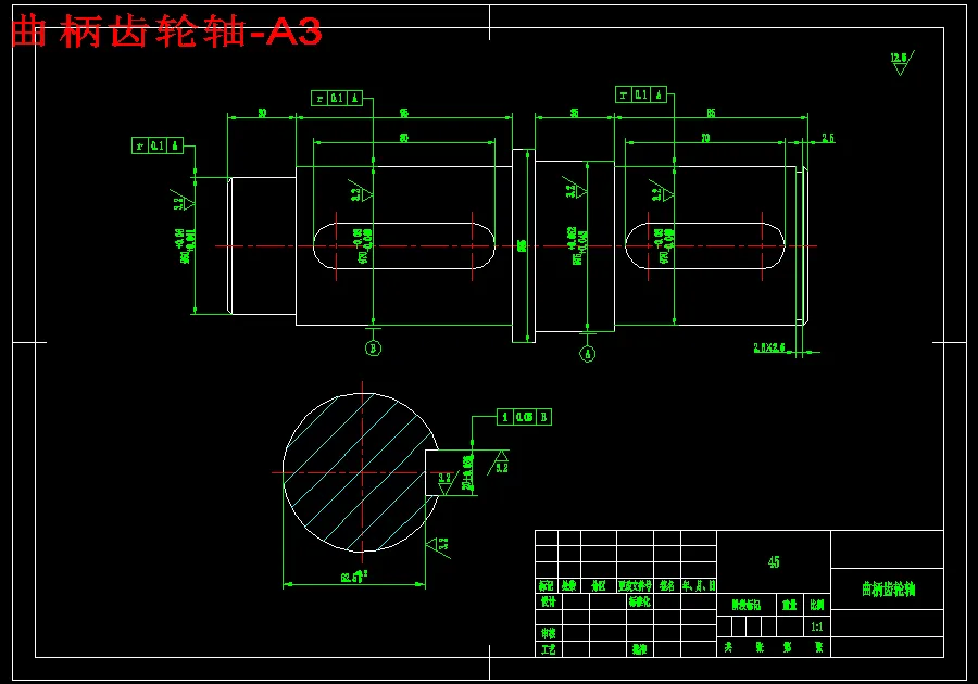
3.5.3曲柄轴 21
3.6轴承的校核 24
3.6.1蜗杆轴上的轴承寿命校核 24
3.6.2涡轮轴上的轴承校核 24
3.6.3曲柄轴上的轴承校核 25
3.7键的校核 26
3.7.1蜗杆轴上键的强度校核 26
3.7.2蜗轮轴上键的强度校核 26
3.7.3曲柄轴上键的强度校核 26
3.8联轴器的选用 27
第四章 翻钢机构设计 28
4.1机构的尺寸计算 28
4.1.1计算曲柄摇杆机构尺寸 28
4.1.2摇杆速度分析 28
4.2曲柄设计 29
4.3连杆设计 30
4.4摇杆设计 30
第五章 翻钢机的安装与维护 32
5.1翻钢机的安装 32
5.1.1安装方法 32
5.1.2就位和找正调平 32
5.1.3安装实施 32
5.2翻钢机维护 34
总 结 35
参考文献 36
致 谢 37
温馨提示:
1、题目前面的备注【字母数字编号】为本站整理分类的编号,与课题内容无关,请选题时忽视;
2、若题目上备注三维,则表示文件里包含三维源文件,由于三维组成零件数量较多,为保证预览截图的简洁性,本站将三维文件夹进行了打包。三维及CAD预览截图,均为本站电脑打开软件进行截图的,保证能够打开,下载原件超高清,下载后解压即可;
3、本站所有资源如无特殊说明,都需要本地电脑安装Office2007。图纸软件为AutoCAD,PROE,UG,SolidWorks,CATIA等;
4、本站所有图文资料仅供用户学习参考,不作为任何商用或其他用途;
5、本站不保证下载资源的准确性、安全性和完整性, 不包修改,不支持退换,同时也不承担用户因使用这些下载资源对自己和他人造成任何形式的伤害或损失;
6、 下载文件中如有侵权或不适当内容,请与我们联系,我们立即纠正。