

作品包括:
说明书1份,共29页,约11000字左右
CAD图版本图纸,共10张
落料冲孔复合模设计
摘要
根据所学的知识本次设计的任务为复合模的设计,此零件采用冲压技术加工。本次设计中需要完成垫板的工艺性分析及模具的设计,应用所学的课程知识和工厂实训知识,对本次的设计进行全面的应用。
设计中通过对产品的结构、所使用的材料进行工艺性分析,选取合理的加工方式。运用各加工工艺的方法进行对比来选取合理的工艺方案,再选取合理的冲压模具结构形式,最后完成整个模具的结构、零部件设计。
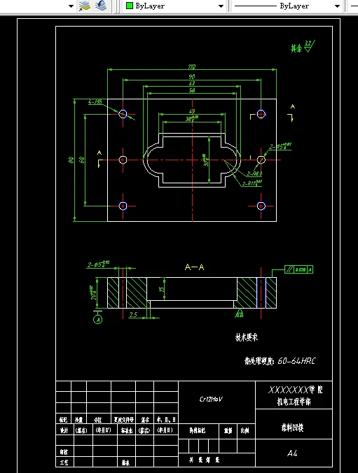
根据零件图可以看出零件分冲孔、落料二个工艺,在选择模具类型时我们初步选择复合模结构,所以在模具各零件的加工和装配中需要考虑各工艺技术要求,凸模、凹模、凸凹模等主要零件的外形、内孔采用的加工设备,怎样保证各型孔的位置精度,冲裁刃口的表面质量等,还需考虑各板之间的固定方式、凸模的固定方式、压料卸料的结构形式、上下模组件的导正方式、装配高度与冲压设备的匹配要求等。在这些问题中可以看出模具设计是综合性强,各条件要求很高的一项工作,所以在整个设计中要不断学习改进才能达到规定的要求。
关键词:工艺性、结构、复合模
目 录
摘要I
ABSTRACTII
第一章 绪论1
1.1 冲压加工的特点1
1.2 研究设计的目的和任务1
1.3 课题研究的思路2
第二章 冲压工艺分析及工艺方案的制定3
2.1 工艺分析3
2.2 工艺方案的制定3
第四章 排样设计与计算5
3.1 排样方法与原则5
3.2 确定搭边值5
3.3 送料步距与条料宽度的计算5
3.4 材料利用率的计算6
第四章 冲裁力、压力中心的计算7
4.1落料力、冲孔力、卸料力、推件力的计算7
4.2压力机的选择8
4.3压力中心的确定9
第五章 模具工作零件刃口尺寸计算11
5.1 尺寸计算原则11
5.2凸、凹模刃口尺寸计算11
第六章 各零部件和模具总体结构的设计14
6.1凹模的设计14
6.2凸模的设计16
6.3凸凹模的设计16
6.4固定板的设计18
6.5卸料板的设计19
6.6压料板的设计19
第七章 模具其它零部件选用21
7.1定位、导料及定距零件的选用21
7.2卸料、出件方式的选用21
7.3上下模座的选用22
7.4模柄的选用22
7.5螺钉与销钉的选用23
第八章 冲压设备的校核与选定24
8.1模具的闭合高度24
8.2压力机的校核24
总结25
致谢26
参考文献27
温馨提示:
1、题目前面的备注【字母数字编号】为本站整理分类的编号,与课题内容无关,请选题时忽视;
2、若题目上备注三维,则表示文件里包含三维源文件,由于三维组成零件数量较多,为保证预览截图的简洁性,本站将三维文件夹进行了打包。三维及CAD预览截图,均为本站电脑打开软件进行截图的,保证能够打开,下载原件超高清,下载后解压即可;
3、本站所有资源如无特殊说明,都需要本地电脑安装Office2007。图纸软件为AutoCAD,PROE,UG,SolidWorks,CATIA等;
4、本站所有图文资料仅供用户学习参考,不作为任何商用或其他用途;
5、本站不保证下载资源的准确性、安全性和完整性, 不包修改,不支持退换,同时也不承担用户因使用这些下载资源对自己和他人造成任何形式的伤害或损失;
6、 下载文件中如有侵权或不适当内容,请与我们联系,我们立即纠正。