

作品包括:
说明书1份,共39页,约11000字左右
CAD版本本图纸,共6张
摘 要
冲压加工是较常见的加工方式,应用于多个领域,金属领域最常见,轻工业领域的应用也逐渐成熟。本文设计垂直连接板的冲压模具。
本文对于垂直连接片的冲压分析和模具设计的工作内容如下:
首先,对于垂直连接片做深入的了解,查阅相关资料,了解其一般工作环境、工作条件、加工的要求以及生产的一般步骤;
其次,对于结合收集到的材料,对于零件进行工艺方案的确定以及排样设计,并对于需要设计的模具进行受力分析计算与工作部分的设计计算;
最后,设计模具的主要工作零部件结构,并且使用CAD设计软件绘制包含零件图和装配图的模具结构。
关键词:级进模;工艺分析;结构设计
目 录
1 冲压件结构工艺性分析- 1 -
1.1冲压件图- 1 -
1.2 冲压件工艺性分析- 1 -
1.2.1 原材料分析- 1 -
1.2.2 形状结构分析- 2 -
1.2.3 制件尺寸精度分析- 2 -
2 冲裁工艺方案的确定- 3 -
2.1 冲裁工艺方法的选择- 3 -
3 零件工艺设计计算- 4 -
3.1 排样方式的选择- 4 -
3.2 搭边值与条料宽度确定- 4 -
3.3 进距的确定- 6 -
3.4 排样图设计- 6 -
3.5 材料利用率及排样图的确定- 6 -
4 工艺计算- 9 -
4.1 冲压力计算- 9 -
4.1.1冲裁力计算- 9 -
4.1.2卸料力的计算- 10 -
4.1.3推件力的计算- 10 -
4.1.4 总冲压力的计算- 10 -
4.2压力机的选择- 11 -
4.3模具中心的确定- 11 -
4.4刃口尺寸计算- 13 -
4.4.1凸、凹模工作部分尺寸计算的基本原则- 14 -
4.4.2 凸、凹模工作部分加工方法的选择- 14 -
4.4.3 凹、凸模刃口尺寸的计算- 15 -
5 模具主要零部件设计- 18 -
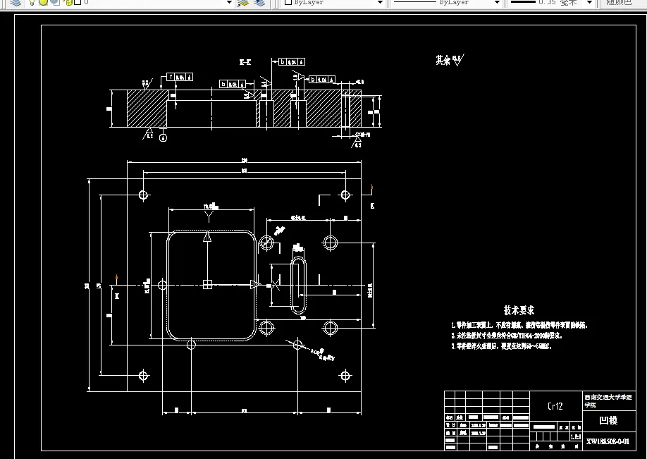
5.1 凹模设计- 18 -
5.1.1 凹模外形的确定- 18 -
5.1.2 凹模材料的确定- 20 -
5.1.3 凹模的固定方式- 20 -
5.1.4 凹模精度的确定- 20 -
5.1.5 凹模的零件图- 20 -
5.2 垫板的设计- 21 -
5.3凸模固定板的设计- 22 -
5.4 凸模的设计- 23 -
5.4.1 凸模的结构确定- 24 -
5.4.2凸模的高度确定- 24 -
5.4.3 凸模材料- 25 -
5.4.4落料凸模:- 25 -
5.5 卸料零件设计- 26 -
5.5.1卸料板的设计- 26 -
5.6定位零件- 26 -
6 模架选用及闭合高度校核- 27 -
6.1上下模座的选用- 27 -
6.2 模柄的选用- 27 -
6.3闭合高度校核- 27 -
7 模具装配图和模具工作原理- 29 -
7.1模具装配图- 29 -
7.2模具工作原理- 31 -
参考文献- 32 -
致 谢- 34 -
温馨提示:
1、题目前面的备注【字母数字编号】为本站整理分类的编号,与课题内容无关,请选题时忽视;
2、若题目上备注三维,则表示文件里包含三维源文件,由于三维组成零件数量较多,为保证预览截图的简洁性,本站将三维文件夹进行了打包。三维及CAD预览截图,均为本站电脑打开软件进行截图的,保证能够打开,下载原件超高清,下载后解压即可;
3、本站所有资源如无特殊说明,都需要本地电脑安装Office2007。图纸软件为AutoCAD,PROE,UG,SolidWorks,CATIA等;
4、本站所有图文资料仅供用户学习参考,不作为任何商用或其他用途;
5、本站不保证下载资源的准确性、安全性和完整性, 不包修改,不支持退换,同时也不承担用户因使用这些下载资源对自己和他人造成任何形式的伤害或损失;
6、 下载文件中如有侵权或不适当内容,请与我们联系,我们立即纠正。