

作品包括:
word说明书一份,31页,约12000字左右
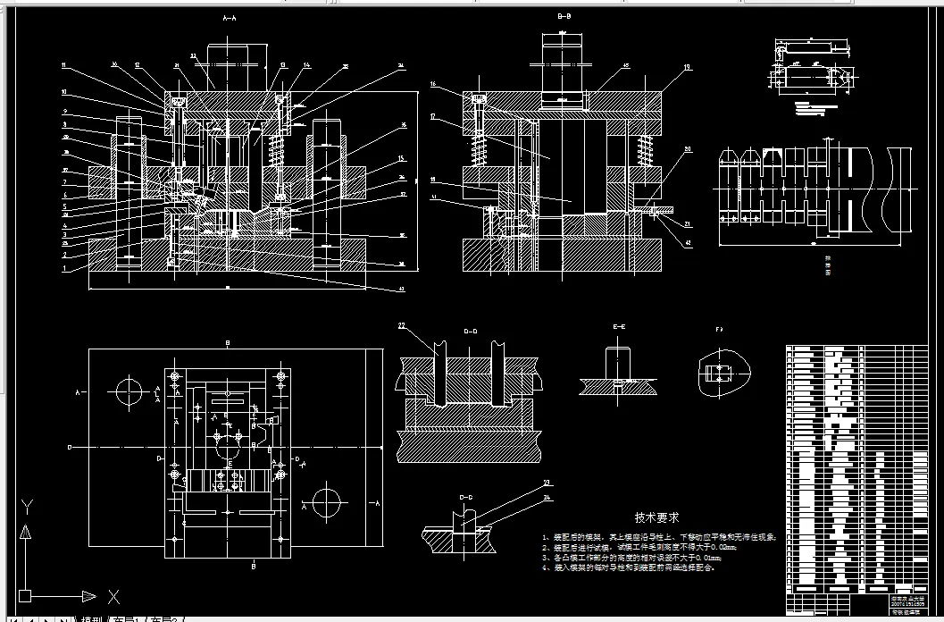
CAD版本图纸,共21张
衔铁多工位级进模设计
学 生:
摘要:多工位级进模是在普通模具的基础上发展起来的一种高精度、高效率、长寿命的模具。是技术密集型模具的总要代表,是冲模的发展方向之一。在模具设计前必须对工件进行全面的分析,然后确定工件的冲压成型方案,正确设计模具的结构和模具零件的加工工艺规程,以获得最佳的技术经济效益。
本次设计的零件为板料冲裁弯曲件—衔铁,衔铁采用的材料为电工纯铁DT2,厚度1mm保证了足够的强度和硬度。该零件的外形简单,利于合理排样、减小废料。此材料具有良好的塑性及较高的弹性、较高的冲裁性和良好的弯曲性。
关键词:级进模;冲裁;弯曲;排样;设计
目 录
摘要.................................................................1
关键词...............................................................1
1前言..............................................................2
1.1概述 .................................................................2
1.2模具的发展.................................................................2
1.3模具在我国的发展状况.............................................2
2制件的结构及工艺性分析.................................................................2
2.1 冲裁的工艺性.................................................................3
2.2 弯曲的工艺性.................................................................4
3模具的工艺计算.................................................................5
3.1毛坯尺寸的计算.................................................................5
3.1.1制件的中性层半径.................................................5
3.1.2制件坯料的展开长度.............................................5
3.2排样方案的确定.................................................................6
3.2.1初拟排样方案.................................................................6
3.2.2初定条料宽和步距.......................................7
3.2.4选取条料.....................................7
3.2.5根据所选条料规格,计算所需再加工的板料尺寸.........................7
3.2.6排样图.................................................................8
3.3冲裁力及弯曲力的计算...........................................8
3.3.1冲压力.................................................................8
3.3.2弯曲力.................................................................10
3.4 模具压力中心的计算......................................12
3.5 凸凹模刃口尺寸计算.................................................................14
3.5.1冲孔落料的凸、凹模的尺寸计算...................................15
3.5.2弯曲凸、凹模的计算.....................................19
3.6 弹性元件的选择与计.........19
3.6.1 卸料弹簧的选择和计算......................................19
4 模具主要零部件的结构设计........................................20
4.1模具设计原则.................................................................20
4.2模架中各块板的选取.........................................21
4.3凸、凹模的结构设计...............................................22
4.3.2凹模外形尺寸.................................................................................24
4.3.3凸模固定结构形式.................................................24
4.3.4凸模结构组成.........................................25
4.4凸模强度的校核.....................................................25
4.4.1圆孔凸模抗压强度的校核......................................25
4.4.2弯曲凸模应力校核..................................................26
4.5模具闭合高度的确定................................26
4.5.1模具得闭合高度.................................................................26
4.6辅助零件的设计.................................................................27
4.6.1导向零件的设计.................................................................27
4.6.2导柱、导套的设计.................................................................27
4.6.3固定与联接零件的设计与选取.................................................................28
5 模具材料的选择和加工.................................................................30
5.1 模具材料的选择.................................................................30
5.1.1 选取模具材料的一般原则.................................................................30
5.1.2 凹模的加工要求.................................................................31
5.1.3 冲裁模凸模的制造工艺过程.................................................................31
5.1.4 冲裁模凹模的制造工艺过程.................................................................32
5.2材料热处理.................................................................32
5.2.1 模具热处理基本要求.................................................................32
5.2.2模具用钢的热处理过程及硬度要求.............................................33
6 结论.................................................................33
参考文献.............................................................34
致谢...............................................................34
温馨提示:
1、题目前面的备注【字母数字编号】为本站整理分类的编号,与课题内容无关,请选题时忽视;
2、若题目上备注三维,则表示文件里包含三维源文件,由于三维组成零件数量较多,为保证预览截图的简洁性,本站将三维文件夹进行了打包。三维及CAD预览截图,均为本站电脑打开软件进行截图的,保证能够打开,下载原件超高清,下载后解压即可;
3、本站所有资源如无特殊说明,都需要本地电脑安装Office2007。图纸软件为AutoCAD,PROE,UG,SolidWorks,CATIA等;
4、本站所有图文资料仅供用户学习参考,不作为任何商用或其他用途;
5、本站不保证下载资源的准确性、安全性和完整性, 不包修改,不支持退换,同时也不承担用户因使用这些下载资源对自己和他人造成任何形式的伤害或损失;
6、 下载文件中如有侵权或不适当内容,请与我们联系,我们立即纠正。