

作品包括:
word说明书一份,49页,约23000字左右
任务书一份
开题报告一份
外文翻译一份
CAD版本图纸,共11张
PROE三维图纸
摘 要
近年来,我国的模具发展迅速,尤其是塑料模具提出了越来越高的要求,最近几年,塑料模具在整个模具行业所占的比例上升到30%左右,相信在未来的时间里,中国塑料模具工业还将保持年均增长速度达到10%以上较高速度的发展,国内塑料模具市场以注塑模具需求量最大。将来注射模具发展的方向向更精密、更高效、复合和多功能、更大型、更精密、更复杂、更绿色及更经济的方向发展,模具产品的技术含量将不断提高,模具制造周期将不断缩短。
注射成型是塑料成型的一种重要的方法,它主要适用于热塑料的成型,可以一次成型简单或复杂的精密塑件。本课题是将音箱作为设计模型,将注塑模具的相关知识作为依据,介绍塑件结构形状,塑件的材料选择,及塑件的结构工艺性,注射机成型的设备组成分类及型号规格。
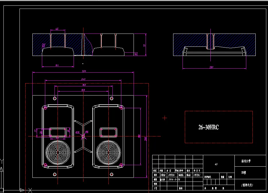
本课题通过对音箱外壳成型工艺的分析,设计了一副一模两腔的塑料模具。设计成型零部件时,根据塑料的特性、塑件的结构和使用要求,确定型腔的总体布局,选择分型面,确定脱模方式,设计浇注系统、冷却系统。计算成型零部件的工作尺寸。运用Pro/E软件完成音箱外壳模具的整体设计;应用Pro/E中的塑料顾问模块(Plastic Advisor),对塑料制品进行注射仿真分析。最后对三维造型使用Pro/Engineer形同转出dwg文件进行出图。
关键词:注塑模具;注射机;Pro/Engineer;EMX(模架设计专家)
目 录
摘要
Abstract
第一章 绪论 1
1.1模具及模具工业的发展与现状 1
1.2塑料成型模具的及其分类 1
1.3注射模具的发展趋势 1
第二章 塑料成型工艺 2
2.1 塑件材料的选择 2
2.2确定成型方法 2
2.3注塑成型工艺过程 3
2.3.1 成型前的准备 3
2.3.2 注塑成型过程 3
2.3.3、塑件的后处理 4
2.4塑件的结构工艺性 4
2.5 塑件成型工艺参数 5
2.5.1 温度 5
2.5.2 压力 6
2.5.3 成型周期 7
第三章 音箱面壳模具设计 9
3.1注塑成型设备 9
3.1.1注塑机结构组成 9
3.1.2 注塑机的分类 9
3.1.3 注塑机的型号规格 10
3.2注射模具分类及典型结构 10
3.2.1注射模分类 10
3.2.2注射模典型结构 10
3.3音箱模具的结构设计 12
3.3.1分型面的设计 12
3.3.2型腔数目的确定 13
3.3.3 浇注系统的设计 14
3.3.4 成型零件设计 16
3.3.5 合模导向机构的设计 19
3.3.6 推出机构设计 20
3.3.7 模具温度调节系统设计 22
3.3.8 标准模架的选用 24
3.4 注射模具与注射机的关系 25
3.4.1 选择注塑机 25
3.4.2最大注射量的校核 26
3.4.3 注射压力的校核 26
3.4.4 锁模力的校核 27
3.4.5 安装部分尺寸校核 27
3.4.6 开模行程的校核 27
3.4.7 推出装置的校核 27
3.4.8 喷嘴的校核 28
第四章 音箱面壳模具三维设计 29
4.1音箱面壳三维造型及模具设计 29
4.2 模架设计 30
4.2.1 定义模具模架 30
4.2.2 添加设备 31
4.2.3 设计顶出机构 33
4.2.4 设计冷却系统 33
4.2.5 动画模拟开模 35
第五章 音箱面壳模具注射仿真分析 36
5.1 Pro/e塑料顾问的简介 36
5.1.1注射仿真分析的优点 36
5.1.2注射仿真分析的缺点 36
5.2塑料顾问模块的进入 36
5.3分析功能应用 37
5.4分析结果 38
5.4.1注射压力 38
5.4.2注射温度 38
5.4.3塑料熔体温度 39
5.4.4熔接痕 39
5.4.5气泡 40
第六章 小结与展望 41
6.1小结 41
6.2展望 41
致 谢 42
参考文献 43
附 录 44
温馨提示:
1、题目前面的备注【字母数字编号】为本站整理分类的编号,与课题内容无关,请选题时忽视;
2、若题目上备注三维,则表示文件里包含三维源文件,由于三维组成零件数量较多,为保证预览截图的简洁性,本站将三维文件夹进行了打包。三维及CAD预览截图,均为本站电脑打开软件进行截图的,保证能够打开,下载原件超高清,下载后解压即可;
3、本站所有资源如无特殊说明,都需要本地电脑安装Office2007。图纸软件为AutoCAD,PROE,UG,SolidWorks,CATIA等;
4、本站所有图文资料仅供用户学习参考,不作为任何商用或其他用途;
5、本站不保证下载资源的准确性、安全性和完整性, 不包修改,不支持退换,同时也不承担用户因使用这些下载资源对自己和他人造成任何形式的伤害或损失;
6、 下载文件中如有侵权或不适当内容,请与我们联系,我们立即纠正。