

作品包括:
Word版说明书1份,共40页,约15000字
CAD版本图纸,共14张
UG三维图一份
Proe三维图一份

摘要
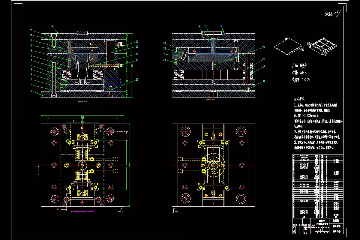
根据塑料制品的要求,了解塑件的用途,分析塑件的工艺性、尺寸精度等技术要求,考量塑件制件尺寸。本模具采用一模二腔,侧浇口进料,注射机采用海天HTF80XB型号,设置冷却系统,CAD和PROE绘制二维总装图和零件图,选择模具合理的加工方法。附上说明书,系统地运用简要的文字,简明的示意图和和计算等分析塑件,从而作出合理的注塑模具设计。
关键词:翻盖件;一模二腔;侧浇口;注射机;冷却系统;注塑模具
目录
摘要I
Abstract i
第1章绪论1
1.1塑料简介1
1.2注塑成型及注塑模1
第2章塑件分析4
2.1塑件图4
2.2塑件的材料分析4
2.2.1塑料材料的基本特性4
2.2.2塑件材料成型性能5
2.2.3塑件材料主要用途5
2.3塑件的结构和尺寸精度表面质量分析6
2.3.1塑件的结构设计6
2.3.2塑件尺寸及精度7
2.3.3塑件表面粗糙度7
2.4计算塑件的体积、质量7
第3章塑件成型方案设计9
3.1分型面选择9
3.2型腔数的确定9
3.3型腔布局9
3.4浇注系统的类型和位置的选择10
3.4.1浇注系统组成10
3.4.2确定浇注系统的原则10
3.5成型零件结构设计11
3.5.1型腔设计11
3.5.2型芯设计12
3.6脱模机构的设计13
3.6.1脱模机构的选择13
3.6.2推杆推出机构设计14
3.7导向与定位机构设计14
3.8排气及引气系统的设计16
3.9模温调节系统的设计16
温度调节对塑件质量的影响16
3.10模架选用17
3.10.1确定模具的基本类型17
3.10.2模架的选择18
3.11滑块机构的设计19
第4章模具零件设计21
4.1模具成型零件尺寸计算21
4.1.1凹模宽度尺寸的计算21
4.1.2凹模长度尺寸的计算22
4.1.3凹模高度尺寸的计算22
4.1.4凸模宽度尺寸的计算22
4.1.5凸模长度的计算22
4.1.6凸模高度尺寸的计算23
4.2模具强度与刚度校核23
4.3浇注系统的设计25
4.4模具冷却系统的设计26
第5章注射机的选用及相关参数的校核28
5.1相关参数29
5.2最大注塑量校核30
5.3锁模力校核31
5.4模具与注塑机安装部分相关尺寸校核31
5.5开模行程校核32
第6章模具结构总图33
总结34
致谢35
参考文献36
温馨提示:
1、题目前面的备注【字母数字编号】为本站整理分类的编号,与课题内容无关,请选题时忽视;
2、若题目上备注三维,则表示文件里包含三维源文件,由于三维组成零件数量较多,为保证预览截图的简洁性,本站将三维文件夹进行了打包。三维及CAD预览截图,均为本站电脑打开软件进行截图的,保证能够打开,下载原件超高清,下载后解压即可;
3、本站所有资源如无特殊说明,都需要本地电脑安装Office2007。图纸软件为AutoCAD,PROE,UG,SolidWorks,CATIA等;
4、本站所有图文资料仅供用户学习参考,不作为任何商用或其他用途;
5、本站不保证下载资源的准确性、安全性和完整性, 不包修改,不支持退换,同时也不承担用户因使用这些下载资源对自己和他人造成任何形式的伤害或损失;
6、 下载文件中如有侵权或不适当内容,请与我们联系,我们立即纠正。