

作品包括:
Word版说明书1份,共47页,约18000字
CAD版本图纸,共9张
UG三维图一份

摘要
当前汽车车灯接线盒注塑成型工艺方法很多,为了进一步提高生产效率,节约生产成本,本文在现有的注塑成型工艺冷却方面做了进一步改进,选择在型芯上开设冷却水道,希望缩短冷却过程,从而提高生产效率。
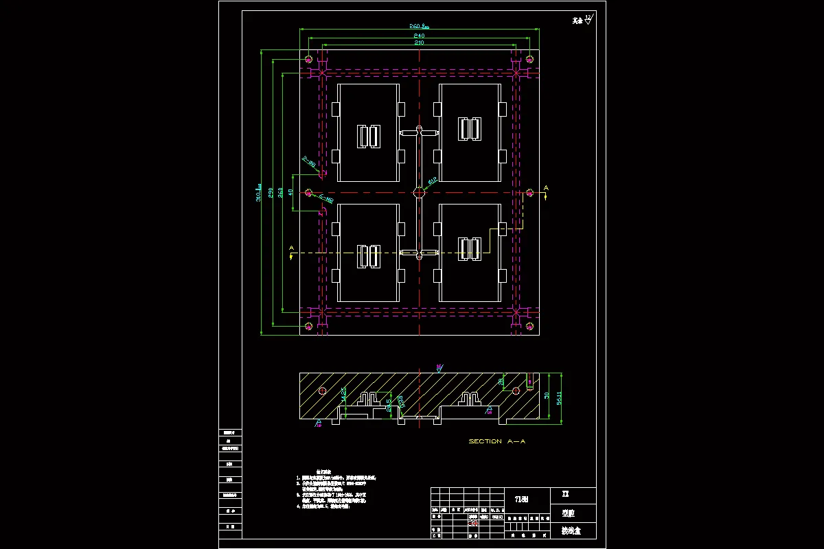
本文主要介绍了经过优化型芯冷却系统后的汽车车灯接线盒注塑模设计、塑料成形工艺以及注塑的过程,也对注塑机也进行了一些简单的介绍。主要设计过程有:塑料制品的工艺分析,型腔数目的确定,型芯冷却系统的设计,注塑机的选择以及模具的结构设计。本文设计的是一模四腔两板式模具,由于汽车车灯接线盒的特殊形状,可以直接脱模,本文对模具的各部分零件进行了设计与计算。在完成了一系列计算和构想之后,利用三维软件画出注件的三维图,并设计好浇注系统、开模方向,然后进行开模仿真,在确定无误之后,利用EMX7.0设计模架,在完成模架设计之后,利用装配方法把整套模具完成整体设计并导出总装配图。
通过采用组合式型芯,并在型芯块上设计螺旋状冷却水道的冷却系统措施后,注塑过程中注件得到了良好的散热,提高了注件生产效率。在现有的工艺上做了改善之后,汽车车灯接线盒的注塑过程大大缩短,既提高了生产效率,同时也节约了生产成本。
关键词:汽车车灯接线盒;冷却系统;注塑机;注塑模;一模四腔
目录
摘要I
Abstract II
第1章绪论1
1.1模具行业的发展1
1.2注塑工艺概述2
1.2.1注塑工艺发展的现状2
1.2.2注塑工艺发展趋势3
1.3 CAD/CAM/CAE及Pro/E的发展趋势3
1.4注塑模具概述5
1.5课题研究的目的和意义5
第2章模具设计方案6
2.1汽车车灯接线盒二维图6
2.2塑件材料7
2.2.1塑料材料的基本特性7
2.2.2塑件材料成型性能9
2.2.3塑件材料主要用途10
2.3塑料制品的工艺分析10
2.3.1脱模斜度11
2.3.2塑件的壁厚11
2.3.3支承面12
2.3.4材料的成型收缩率12
2.3.5尺寸精度和表面粗糙度13
2.4注塑过程的特点13
2.5型腔数目的确定14
2.6注塑机的选择15
第3章浇注系统的设计20
3.1设计浇注系统基本要点20
3.2主流道设计21
3.2.1主流道的作用21
3.2.2主流道(浇口套)设计基本要点21
3.3分流道设计22
3.3.1分流道的作用22
3.3.2分流道的类型23
3.4浇口设计23
3.4.1浇口的作用23
3.4.2浇口的类型23
3.5冷料穴设计25
3.6排气槽设计25
第4章成型零件的结构设计26
4.1成型零件结构设计26
4.2型芯冷却系统的设计29
4.3模架的选用31
4.4导向机构的设计34
4.5脱模机构的设计34
4.5.1顶杆的设计35
4.5.2顶料板的设计36
4.6顶杆的复位36
装配图38
总结39
致谢40
参考文献41
温馨提示:
1、题目前面的备注【字母数字编号】为本站整理分类的编号,与课题内容无关,请选题时忽视;
2、若题目上备注三维,则表示文件里包含三维源文件,由于三维组成零件数量较多,为保证预览截图的简洁性,本站将三维文件夹进行了打包。三维及CAD预览截图,均为本站电脑打开软件进行截图的,保证能够打开,下载原件超高清,下载后解压即可;
3、本站所有资源如无特殊说明,都需要本地电脑安装Office2007。图纸软件为AutoCAD,PROE,UG,SolidWorks,CATIA等;
4、本站所有图文资料仅供用户学习参考,不作为任何商用或其他用途;
5、本站不保证下载资源的准确性、安全性和完整性, 不包修改,不支持退换,同时也不承担用户因使用这些下载资源对自己和他人造成任何形式的伤害或损失;
6、 下载文件中如有侵权或不适当内容,请与我们联系,我们立即纠正。