

作品包括:
Word版说明书1份,共35页,约15000字
任务书一份
开题报告一份
外文翻译一份
PPT答辩一份
CAD版本图纸,共13张
UG三维图一份


摘要
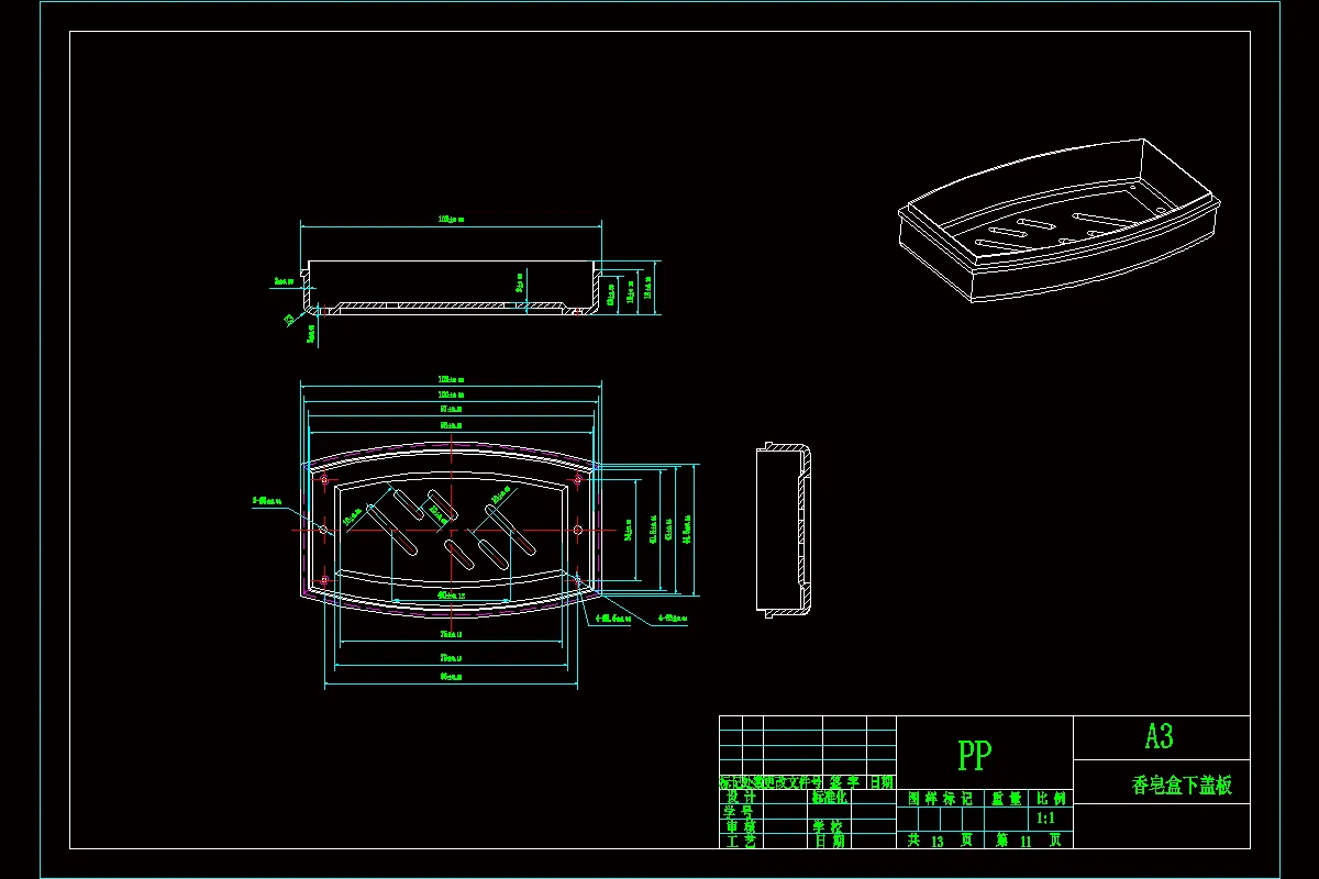
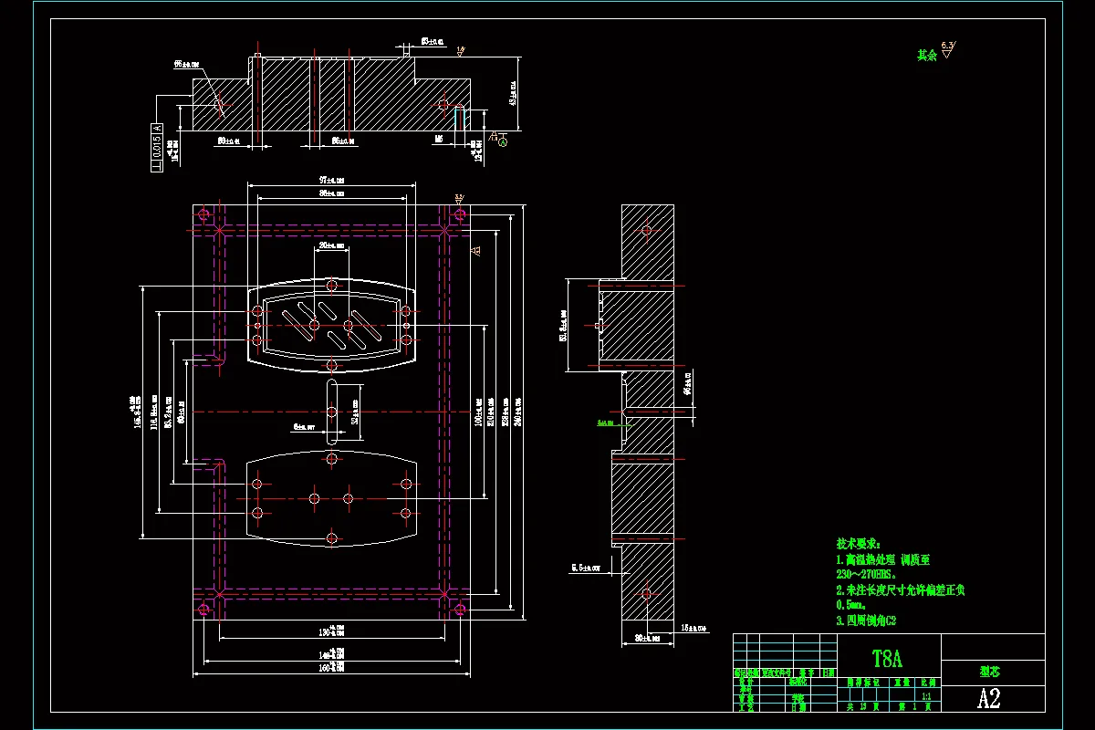
本次设计是针对香皂盒的上盖板与下盖板的注塑模具设计。模具设计分为多个步骤,其中主要有分析塑件产品性能要求、分析和选择材料、设计与计算动模与定模尺寸、设计浇注系统、设计导向机构和脱模机构等。设计过程运用到了UG和CAD设计软件来设计和优化模具的组成部分,并对动模与定模、主流道、分流道、浇口等重要部件进行选择和尺寸计算;完成模架、排气及冷却系统、浇注系统、导向系统、脱模机构的设计,并对其中的成型零件进行设计。对得到的数据进行整理与修改,最后对各部分的零件图进行装配并书写设计说明书完成本次设计。
关键词:香皂盒;型腔;型芯;注塑机
目录
摘要I
Abstract II
1.绪论1
1.1.模具的简单介绍1
1.2.香皂盒的发展1
1.3.注塑模的发展现状2
1.4.本设计的目的3
1.5.主要研究内容4
2.设计说明5
2.1.塑件分析5
2.1.1.成型塑料件的结构设计5
2.1.2.成型塑料件的工艺性分析5
2.1.3.成型塑件的材料分析7
2.2.注塑设备的选择11
2.2.1.估算塑件体积11
2.2.2.注塑机的选择12
2.3.成型零件尺寸的计算12
2.4.分型面的选择17
2.5.浇注系统的设计18
2.5.1.浇口套的选用18
2.5.2.主流道设计19
2.5.3.分流道的布置19
2.5.4.浇口设计20
2.6.导向机构的设计22
2.6.1.导柱的设计22
2.6.2.导套的设计22
2.7.脱模结构的设计23
2.8.排气和冷却系统的设计25
2.8.1.排气系统25
2.8.2.冷却系统的设计25
2.9.模架的选择26
2.10.绘制装配图28
2.11.注射机的校核29
2.11.1.注射量的校核29
2.11.2.锁模力的校核29
2.11.3.模具高度的校核29
结论29
致谢30
参考文献31
温馨提示:
1、题目前面的备注【字母数字编号】为本站整理分类的编号,与课题内容无关,请选题时忽视;
2、若题目上备注三维,则表示文件里包含三维源文件,由于三维组成零件数量较多,为保证预览截图的简洁性,本站将三维文件夹进行了打包。三维及CAD预览截图,均为本站电脑打开软件进行截图的,保证能够打开,下载原件超高清,下载后解压即可;
3、本站所有资源如无特殊说明,都需要本地电脑安装Office2007。图纸软件为AutoCAD,PROE,UG,SolidWorks,CATIA等;
4、本站所有图文资料仅供用户学习参考,不作为任何商用或其他用途;
5、本站不保证下载资源的准确性、安全性和完整性, 不包修改,不支持退换,同时也不承担用户因使用这些下载资源对自己和他人造成任何形式的伤害或损失;
6、 下载文件中如有侵权或不适当内容,请与我们联系,我们立即纠正。