

作品包括:
Word版说明书1份,共29页,约8900字
CAD版本图纸,共11张
UG三维图一份

摘 要
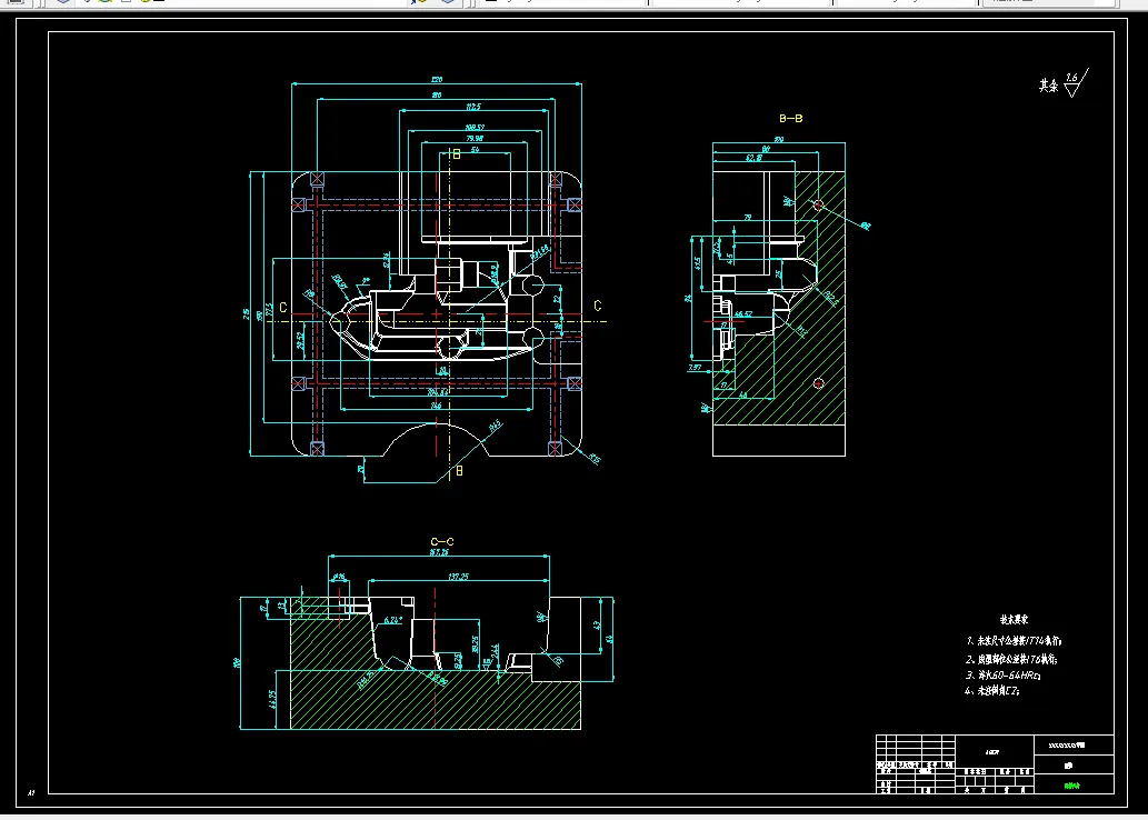
本设计为8203真空泵壳体铝合金压铸模具。为了使生产出来的8203型真空泵的壳体能够顺利从模具中脱离出来,故设计时把最大端面作为分型面。本次设计的模具上也装配有散热片,而且散热片必须横向抽芯。导向的定位机构是采用到了导柱与导套的联动,来确使模具中的动模部分和定模部分能够达到工作要求。在设计冷却系统时思量到各部件的彼此之间位置关系,冷却水通道呈圆形分布,冷却均匀、速度快。使用UG软件进行三维建模铸造,然后在绘图模块技术要求(如标签)中完成塑料零件尺寸和公差,并输出工程图纸,分别从注塑比例和可制造性分析中检查相关信息。夹紧力和模具厚度的计算选择合适的压铸机,铸件的尺寸和模腔数量,浇注系统,导向件,推出机构,热控系统,排气槽等的初步估算,在浇注系统的设计中,包括浇道的设计,喷嘴的选择和主流设计方式等,还必须研究浇注系统设计的平衡,设置排气槽溢流槽是重要的措施之一,它可以提高铸件的质量,在模具填充过程中液态金属,可以有效地消除气体腔内混合气体和涂层金属残留物污染。
关键词:8203型真空泵;压铸模具;UG
目 录
1 引 论...........................................................................................................1
2 压铸零件的工艺分析.......................................................................................2
2.1 铸件分析......................................................................................................................2
2.2 产品生产工艺分析......................................................................................................2
2.3 铸件的原材料分析......................................................................................................2
2.4 压铸的结构要素..........................................................................................................3
3 压铸件的选择与依据.......................................................................................5
3.1 主涨型力的计算..........................................................................................................5
3.2 计算锁模力..................................................................................................................5
3.3 确定型腔数选择压铸件..............................................................................................6
4 压铸模具结构设计...........................................................................................7
4.1 型腔分型面位置和形状的设计 7
4.2 浇注系统 7
4.3 溢流槽 10
4.4 成型零件的结构设计 11
4.5 抽芯机构的设计 14
5 脱模结构与导向结构的设计..........................................................................16
5.1 脱膜机构设计 16
5.2 复位机构的设计 17
5.3 导向与定位机构的设计 18
5.4 模具的冷却设计 19
6 结 语..........................................................................................................21
参考文献..............................................................................................................22
致 谢..............................................................................................................23
温馨提示:
1、题目前面的备注【字母数字编号】为本站整理分类的编号,与课题内容无关,请选题时忽视;
2、若题目上备注三维,则表示文件里包含三维源文件,由于三维组成零件数量较多,为保证预览截图的简洁性,本站将三维文件夹进行了打包。三维及CAD预览截图,均为本站电脑打开软件进行截图的,保证能够打开,下载原件超高清,下载后解压即可;
3、本站所有资源如无特殊说明,都需要本地电脑安装Office2007。图纸软件为AutoCAD,PROE,UG,SolidWorks,CATIA等;
4、本站所有图文资料仅供用户学习参考,不作为任何商用或其他用途;
5、本站不保证下载资源的准确性、安全性和完整性, 不包修改,不支持退换,同时也不承担用户因使用这些下载资源对自己和他人造成任何形式的伤害或损失;
6、 下载文件中如有侵权或不适当内容,请与我们联系,我们立即纠正。