

作品包括:
Word版说明书1份,共43页,约7300字
CAD版本图纸,共15张

摘 要
随着当今科学技术的迅速发展,模具生产技术已经成为现代化工业生产加工的必备技术。为了提高并检验学生实际动手能力,XX大学为大四学生组织了专业基础课程的XX设计,其中模具专业的学生分别领到了相关的XX设计题目。并在专业老师的指导下完成XX项目。
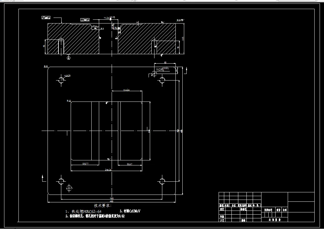
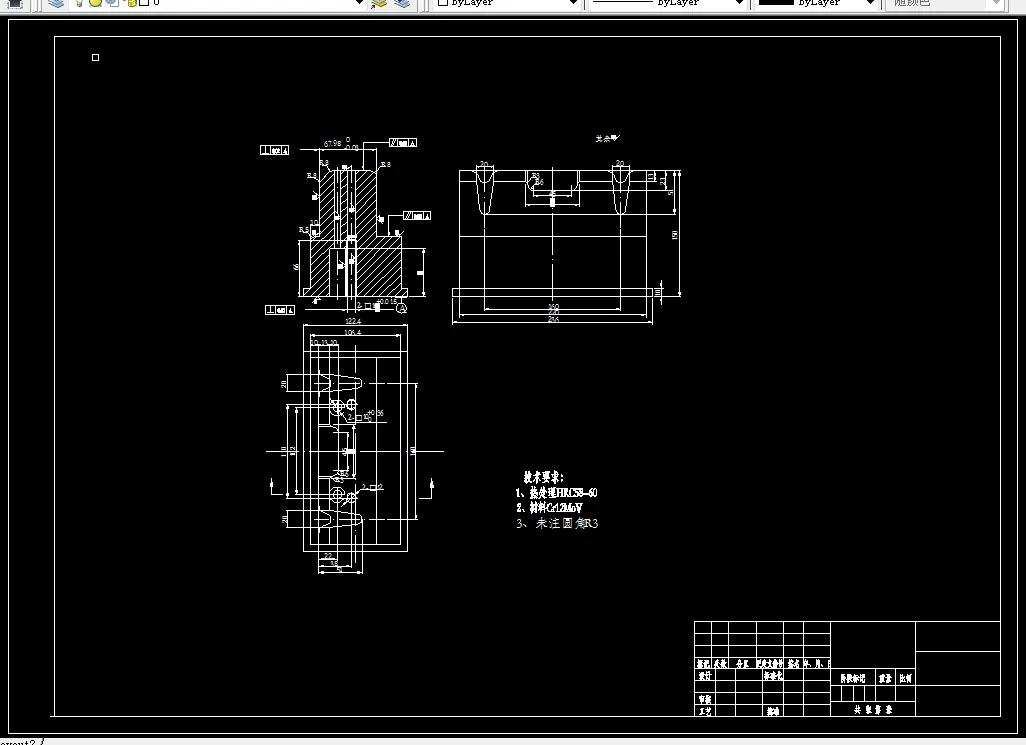
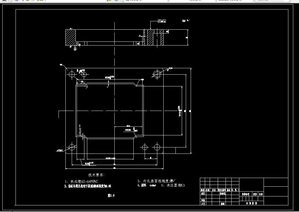
此次毕设的题目为紧固机构加强板的落料-冲孔复合模设计。该工件设计主要采用冷冲压模具加工生产,其中分别运用了落料-冲孔复合模以及弯曲-压筋复合模进行设计,每套用一个章节进行描述。期间查阅借鉴了大量关于模具设计与相关基本冲压工艺的书籍及文献,并引用了许多相关计算公式进行计算,最终完成了此次设计说明。
关键字:冷冲压、复合模设计
目 录
摘要-----------------------------------------------------------------------------------------------------1
绪论-----------------------------------------------------------------------------------------------------4
第一章 工艺方案的确定-----------------------------------------------------------------------5
第一节 工件的工艺分析---------------------------------------------5
第二节 工艺方案的制定--------------------------------------------------------------------8
一、方案一的分析--------------------------------------------------------------------------- 8
二、方案二的分析----------------------------------------------------------------------------8
三、方案三的分析----------------------------------------------------------------------------8
第二章 落料-冲孔复合模的设计---------------------------------------------------------------9
第一节 总体方案的设计---------------------------------------------------------------------9
第二节 工件展开尺寸的计算-------------------------------------------------------------10
第三节 工艺与设计计算------------------------------------------------------------------- 12
一、排样与设计计算------------------------------------------------------------------------ 12
二、计算冲压力与压力中心、初选压力机-------------------------------------------- 12
三、计算凸、凹模及凸凹模刃口尺寸和公差--------------------------- 14
四、设计选用模具零部件、绘制模具总装配草图------------------------15
第三章、弯曲压筋复合模的设计-----------------------------------------------------------------29
第一节 总体方案的设计------------------------------------------------------------------- 29
第二节 工艺与设计计算------------------------------------------------------------------- 30
一、计算弯曲、压筋力和初选压力机---------------------------------------------------30
二、计算凸、凹模刃口尺寸和公差------------------------------------------------------31
三、设计选用模具零部件、绘制模具总装配草图-------------------------------------34
主要参考文献---------------------------------------------------------------------------------------- 41
温馨提示:
1、题目前面的备注【字母数字编号】为本站整理分类的编号,与课题内容无关,请选题时忽视;
2、若题目上备注三维,则表示文件里包含三维源文件,由于三维组成零件数量较多,为保证预览截图的简洁性,本站将三维文件夹进行了打包。三维及CAD预览截图,均为本站电脑打开软件进行截图的,保证能够打开,下载原件超高清,下载后解压即可;
3、本站所有资源如无特殊说明,都需要本地电脑安装Office2007。图纸软件为AutoCAD,PROE,UG,SolidWorks,CATIA等;
4、本站所有图文资料仅供用户学习参考,不作为任何商用或其他用途;
5、本站不保证下载资源的准确性、安全性和完整性, 不包修改,不支持退换,同时也不承担用户因使用这些下载资源对自己和他人造成任何形式的伤害或损失;
6、 下载文件中如有侵权或不适当内容,请与我们联系,我们立即纠正。