

作品包括:
Word版说明书1份,共40页,约13000字
CAD版本图纸,共4张

摘 要
在模具设计时不仅要考虑要使做出的零件能满足工作要求,还要保证它的使用寿命。在本次设计中主要是考虑到它的实际工作环境和必须完成的设计任务,模架采用后侧导柱模架,凹模采用洞口形状凹模,这样可以一次完成全部的工序加工,在设计中要考虑到很多关于我所设计零件的知识,包括它的使用场合,外观等。通过这次的设计使我深深的体会到怎样才能把所学的东西更好的运用到实践中,设计过程中应注意的问题,使自己在冲压模方面有了更深更多的了解。
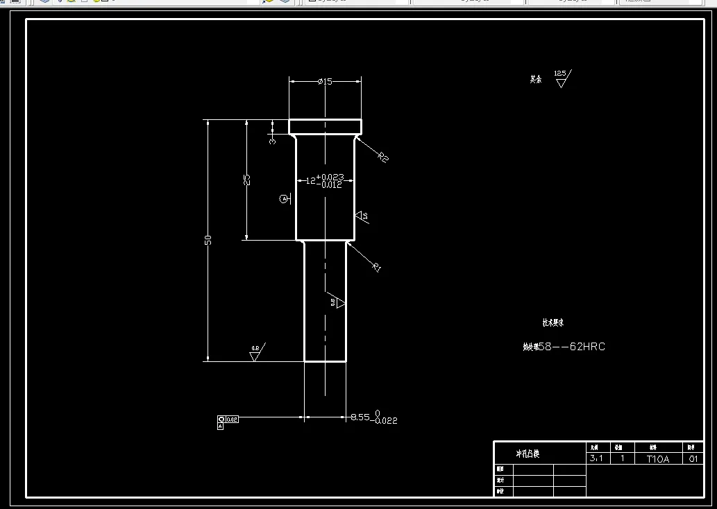
该垫片零件是我在现实生活中见到的某插车链条中的一个垫片,每个链条需要很多个垫片,由于该公司的产品销量扩大,线切割加工也可以生产所需要零件,但是线切割加工成本较高,因此采用冷冲压模具进行生产。该模具设计制造难点是如何解决好零件中的小孔冲裁,如何确定模具结构、冲裁方案,如何进行模具制造等问题,以及模具制造装配要注意的问题,本文通过采取给小凸模加保护套、在模具结构上选用倒装复合模取代以往采用的正装复合模,这样废料不落在模具表面便于工人操作;在模具制造过程中,为了提高凸模的韧性防止在使用过程中折断,采用 模具钢取代常规采用的 模具钢,并采用真空热处理,硬度取 ;在装配过程中为了提高凸模的稳定性,凸模与凸模固定板的装配采用厌氧胶固定等措施,这些措施较好的解决了该模具设计制造难点。
模具的精度比较高在使用的过程中要合理的保养,发现问题要及时的修复,这样才能保证产品的质量,提高模具寿命。
关键字:连接件,精度,落料冲孔,复合模
目 录
摘 要 II
前 言 III
目 录 IV
1 垫片图纸及技术要求 1
1.1 零件图 1
1.2 技术要求 1
2冲压工艺与模具设计 3
2.1零件冲裁工艺性分析 3
2.2确定冲压工艺方案 3
2.3模具结构的确定 3
2.4 排样设计 5
2.5 冲裁间隙的确定 6
2.6 冲压力与压力中心计算 7
2.7 工作零件刃口尺寸计算 9
2.8 工作零件结构尺寸 11
2.9 小孔冲裁小凸模的设计 14
3 其他零件设计选取 16
3.1 定位零件设计:导料销、挡料销 16
3.2 弹压卸料装置 16
3.3 推件装置设计 18
3.4 模架的确定 18
3.5 连接与固定零件: 19
3.6 冲压机的选择 21
3.7 闭合高度校核 23
3.8 模具总装配 24
4.1 模具制造技术要求 29
4.2 模具制造生产过程 30
4.3 模具制造特点 30
4.4 设计复合模应注意的问题 31
5 主要零件加工工艺流程制编 31
5.1 落料凹模加工工艺流程 31
5.2 凸凹模加工工艺流程编排 33
5.3 冲孔凸模加工工艺流程编排 34
致 谢 35
参考文献 36
温馨提示:
1、题目前面的备注【字母数字编号】为本站整理分类的编号,与课题内容无关,请选题时忽视;
2、若题目上备注三维,则表示文件里包含三维源文件,由于三维组成零件数量较多,为保证预览截图的简洁性,本站将三维文件夹进行了打包。三维及CAD预览截图,均为本站电脑打开软件进行截图的,保证能够打开,下载原件超高清,下载后解压即可;
3、本站所有资源如无特殊说明,都需要本地电脑安装Office2007。图纸软件为AutoCAD,PROE,UG,SolidWorks,CATIA等;
4、本站所有图文资料仅供用户学习参考,不作为任何商用或其他用途;
5、本站不保证下载资源的准确性、安全性和完整性, 不包修改,不支持退换,同时也不承担用户因使用这些下载资源对自己和他人造成任何形式的伤害或损失;
6、 下载文件中如有侵权或不适当内容,请与我们联系,我们立即纠正。