

作品包括:
Word版说明书1份,共36页,约10000字
PPT答辩一份
CAD版本图纸,共11张

摘要
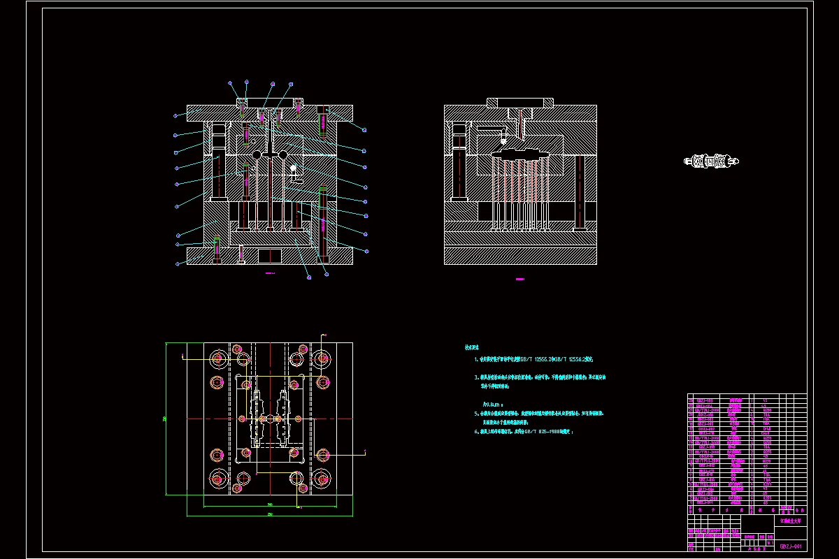
塑料是一种新型的工程材料,发展速度迅猛,加工和塑料成型工艺也越来越受到人们的关注,这是塑件的成型方法,最常用的注射成型。供应塑料模具占相当大的比例。对住房的具体结构,对注塑模具设计与模具浇注系统,代理生产中最困难的情况下。通过点浇口,侧浇口的结构形式,比较海底门三项目总结海底门是最合理的。大的整体塑性大小,薄壁深腔的圆形孔的外壁,整体结构较为简单。考虑到房屋结构的特殊性,通过对几种侧向分型抽芯机构的比较。最后决定用斜斜滑滑杆导向抽芯机构形成一个孔。其优点是,模具结构简化的形式。
目录
引言1
1.1塑料模的功能1
1.2我国塑料模现状及发展趋势2
1.产品技术要求及塑件成型工艺分析3
1.1产品技术要求3
1.1.1产品设计图3
1.1.2产品技术要求5
1.2塑件成型工艺分析5
1.2.1材料选择及塑件成型特性5
1.2.2塑件的结构工艺性7
1.2.3塑件表面质量分析8
1.2.4塑件结构工艺性分析8
2.拟定成型方案9
2.1分型面的选择9
2.2型腔数目的确定11
2.3抽芯装置形式及参数数的确定11
2.4初步确定使用注射机的型号13
2.5注射机的校核16
2.5.1最大注塑量的校核16
2.5.2锁模力的校核16
2.5.3喷嘴尺寸校核17
2.5.4定位圈尺寸校核17
2.5.4模具外形尺寸校核17
2.6浇注系统的设计18
2.6.1主流道的设计18
2.6.2分流道的设计20
2.6.3浇口的设计20
2.6.4冷料穴的设计21
3.成型零件的设计与计算22
3.1成型零件的结构设计22
3.1.1型腔的结构设计22
3.1.2型芯的结构设计23
3.2主要零部件的设计计算24
3.2.1成型零件的成型尺寸计算24
3.2.2模具型腔壁厚的确定26
3.2.3标准模架的确定27
4.推出机构设计28
4.1推出机构的结构形式28
5.导向合模机构的设计29
5.1导柱合模机构的设计30
6.设计总结32
参考文献33
温馨提示:
1、题目前面的备注【字母数字编号】为本站整理分类的编号,与课题内容无关,请选题时忽视;
2、若题目上备注三维,则表示文件里包含三维源文件,由于三维组成零件数量较多,为保证预览截图的简洁性,本站将三维文件夹进行了打包。三维及CAD预览截图,均为本站电脑打开软件进行截图的,保证能够打开,下载原件超高清,下载后解压即可;
3、本站所有资源如无特殊说明,都需要本地电脑安装Office2007。图纸软件为AutoCAD,PROE,UG,SolidWorks,CATIA等;
4、本站所有图文资料仅供用户学习参考,不作为任何商用或其他用途;
5、本站不保证下载资源的准确性、安全性和完整性, 不包修改,不支持退换,同时也不承担用户因使用这些下载资源对自己和他人造成任何形式的伤害或损失;
6、 下载文件中如有侵权或不适当内容,请与我们联系,我们立即纠正。