

作品包括:
Word版说明书1份,共42页,约16000字
CAD版本图纸,共11张
UG三维图1份

摘要
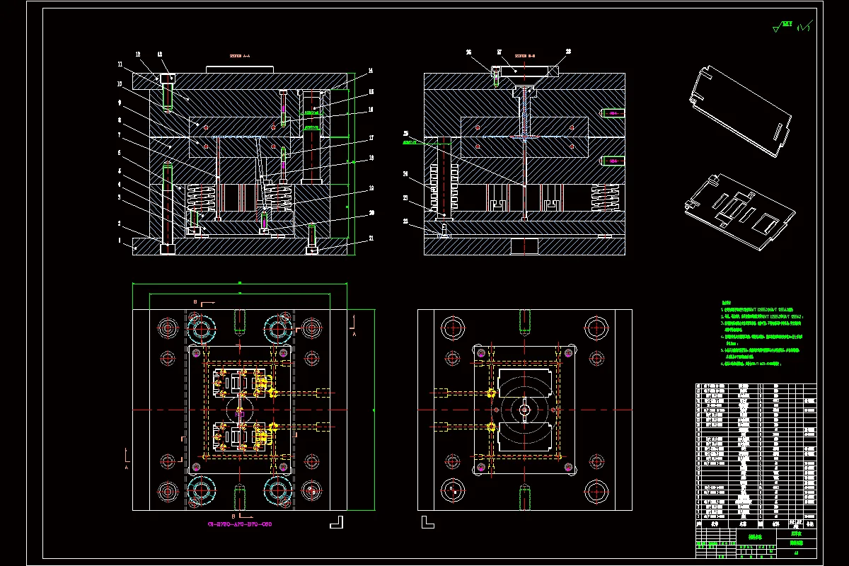
本次设计课题的塑料制品是一个手机支架斜支撑,该手机支架斜支撑塑件产品的重量相对比较轻巧,具有相对较强的抗变形能力,产品自身的硬度比较高,耐腐蚀性能以及耐电弧性能较为优良,塑件在燃烧之后会产生浓烟,带有特殊的气味。完成本次设计工作的时候,针对手机支架斜支撑塑件产品,按照设计任务书的相关要求对分型面进行了合理选择,确定了所设计注塑模具型芯的结构方案以及型腔的结构方案,对比分析之后,此次设计注塑模具选用一模两腔型腔布局方案开展设计工作,根据设计要求选用侧浇口进浇充填方案设计模具的浇注系统。在脱模机构的设计中,设计顶杆顶出机构,辅助成型塑件完成脱模过程,设计了整套模具方案后,选用了合适的注塑机设备,即HTF80XB的注塑机,并校核了所选注塑机设备的各项参数,选用了适合的注塑机。
关键词:塑料用品;注塑模具;热熔塑胶液;注塑机;
目录
摘要I
Abstract II
目录IV
第一章、前言1
1.1 、课题研究的背景1
1.2、课题研究的目的和意义2
1.3、注塑模CAE技术发展趋势3
1.4、注塑模CAE技术的国内外研究现状3
第二章、塑件成型工艺分析5
2.1、塑件工艺分析5
2.2、热塑性材料的选择5
2.2.1、 PP(共聚)材料的主要物性5
2.3、确定注塑成型工艺6
第三章、模具基本结构方案和注塑机的选择7
3.1、分型面的设计7
3.2、型腔数量与布局7
3.3、拟定基本模架方案8
3.4、初选注塑机9
第四章、浇注系统设计11
4.1、浇注系统的作用11
4.2、主流道的设计12
4.3、分流道的设计12
4.4、浇口的设计13
4.5、冷料穴的设计14
4.6、浇注系统标准件的选用14
第五章、成型系统设计15
5.1、型腔的结构设计15
5.1.1 、计算塑件型腔长度径向尺寸15
5.1.2、计算塑件型腔宽度径向尺寸16
5.1.3、计算塑件型腔深度尺寸16
5.2、型芯的结构设计17
5.1.1、计算塑件型芯长度径向尺寸17
5.1.2、计算塑件型芯宽度径向尺寸18
5.1.3、计算塑件型芯高度尺寸18
5.3、型腔侧壁与厚度的计算18
5.4、成型零件钢材的选用19
5.5、侧向分型与抽芯机构20
5.5.1、斜顶抽芯机构的计算20
第六章、脱模顶出系统设计22
6.1、脱模机构概述22
6.2、脱模力的计算22
6.3、复位机构的确定23
6.4、导向结构的设定24
第七章、温控冷却系统设计25
7.1、冷却系统的设计25
7.1.1、计算塑件每小时注射量25
7.1.2、计算范围时间内的释放热量25
7.1.3、计算冷却水的体积流量26
第八章、注塑机的校核27
8.1、校核注射压力27
8.2、校核锁模力27
8.3、校核注射量27
8.4、注塑模具安装尺寸校核28
8.5、校核开模行程28
附图30
总结31
致谢32
参考文献33
温馨提示:
1、题目前面的备注【字母数字编号】为本站整理分类的编号,与课题内容无关,请选题时忽视;
2、若题目上备注三维,则表示文件里包含三维源文件,由于三维组成零件数量较多,为保证预览截图的简洁性,本站将三维文件夹进行了打包。三维及CAD预览截图,均为本站电脑打开软件进行截图的,保证能够打开,下载原件超高清,下载后解压即可;
3、本站所有资源如无特殊说明,都需要本地电脑安装Office2007。图纸软件为AutoCAD,PROE,UG,SolidWorks,CATIA等;
4、本站所有图文资料仅供用户学习参考,不作为任何商用或其他用途;
5、本站不保证下载资源的准确性、安全性和完整性, 不包修改,不支持退换,同时也不承担用户因使用这些下载资源对自己和他人造成任何形式的伤害或损失;
6、 下载文件中如有侵权或不适当内容,请与我们联系,我们立即纠正。