

作品包括:
Word版说明书1份,共43页,约16000字
CAD版本图纸,共11张
UG三维图1份

摘要
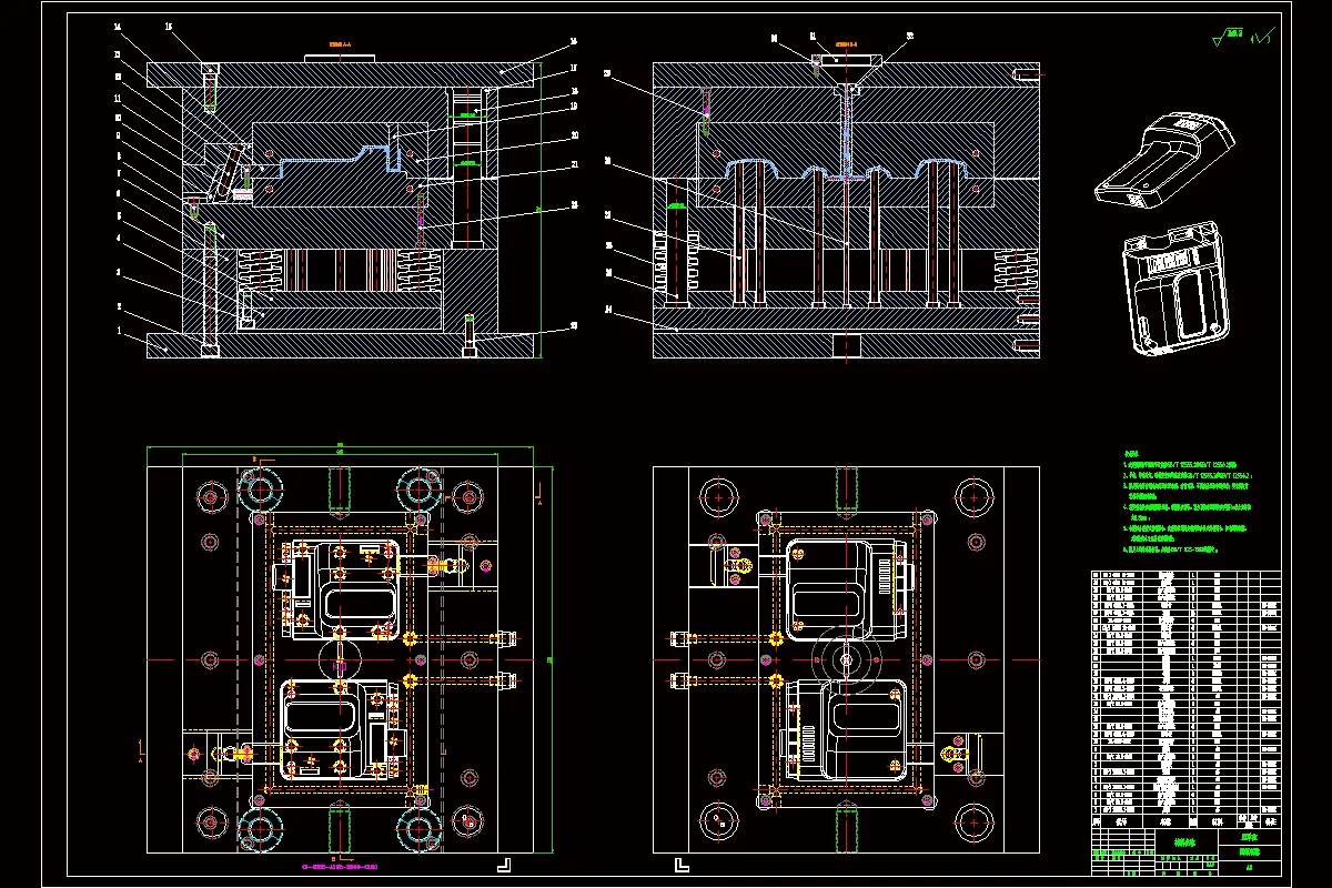
本次设计首先根据电锯托外壳塑件所具有的外形特点及其结构特点,确定所用热塑性高分子材料的具体类型,此次生产电锯托外壳塑件产品选用ABS(高抗冲)材料,在分析具体的注塑工艺之后,根据设计任务书的相关要求确定了此次设计模具的型腔出模数,选用一模两腔方案设计,设计了流道浇注系统以及温度调节冷却水道系统,确定了注塑模具分型面的具体设计方案,设计并校核了模具各个主要成型零件的具体设计方案。顶出系统的设计方案必须是合理布局设计的,确保电锯托外壳塑件的脱模过程是正常的,不能出现损坏塑件产品的不良情况。为了缩短注塑模具的研发制造周期时间,同时考虑到所设计注塑模具的整体质量情况,基于设计任务书的相关要求选用大水口模架系统标准模架。
设计好模具后,参考注塑模具设计指导手册,根据此次设计任务书的相关要求及具体的参数指标选定注塑机的设备型号,此次注塑生产选用了HTF300XA注塑机,并校核了所选注塑机设备的各项参数,确保所选用设备的各项性能均能够满足此次设计任务书所要求的各种实际生产情况。
最终设计所得注塑模具可根据设计任务书的相关要求全自动化成型生产,能够较好的满足生产需要。整套注射模具的结构设计比较巧妙,工作过程安全可靠,模具维修费用以及加工制造成本均在设计任务书所要求的合理范围之中,大量模具元件都是标准化模块,这也符合现代机械设备的标准化理念。
关键词:热塑性高分子材料;注塑模具;注塑机;标准化模块;
目录
摘要I
Abstract II
目录IV
第一章、前言1
1.1、选题的依据和意义1
1.2、模具的概述1
1.3、模具的发展现状2
第二章、塑件成型工艺分析4
2.1、塑件结构的工艺分析4
2.2、塑料材料的选用4
2.2.1、ABS(高抗冲)主要物性5
2.3、ABS(高抗冲)成型工艺5
2.4、注塑工艺流程6
第三章、拟定模具结构方案与选择注塑机7
3.1、确定注塑模具型腔数量7
3.2、确定注塑模具分型面7
3.3、型腔与型芯外形尺寸的确定8
3.3、标准模架方案的确定8
3.4、注塑设备的选择9
3.4.1计算塑件体积量9
3.4.2、初选注塑机型号10
3.5、型腔数量的校核11
第四章、浇注系统设计13
4.1、浇注系统的概述13
4.2、浇注系统设计原则13
4.3、主流道的设计14
4.4、分流道的设计14
4.5、浇口的设计15
4.6、冷料穴的设计16
第三章、成型系统设计17
5.1、型腔的结构设计17
5.1.1计算塑件型腔长度径向尺寸17
5.1.2计算塑件型腔宽度径向尺寸18
5.1.3计算塑件型腔深度尺寸18
5.2、型芯的结构设计19
5.2.1计算塑件型芯长度径向尺寸19
5.2.2计算塑件型芯宽度径向尺寸19
5.2.3计算塑件型芯高度尺寸20
5.3、型腔侧壁与厚度的计算20
5.4、成型零件钢材的选用21
5.5、侧向分型与抽芯机构21
5.5.1斜导柱滑块抽芯机构22
第六章、脱模顶出系统设计24
6.1、脱模机构概述24
6.2、脱模力的计算24
6.3、复位系统的设计26
6.4、导向结构的设计26
第七章、温控冷却系统设计27
7.1、冷却系统的设计27
7.1.1计算塑件每小时注射量27
7.1.2计算范围时间内的释放热量27
7.1.3计算冷却水的体积流量28
第八章、注塑机的校核29
8.1、校核注射压力29
8.2、校核锁模力29
8.3、校核注射量30
8.4注塑模具安装尺寸校核30
8.5、校核开模行程31
附图32
总结33
致谢34
参考文献35
温馨提示:
1、题目前面的备注【字母数字编号】为本站整理分类的编号,与课题内容无关,请选题时忽视;
2、若题目上备注三维,则表示文件里包含三维源文件,由于三维组成零件数量较多,为保证预览截图的简洁性,本站将三维文件夹进行了打包。三维及CAD预览截图,均为本站电脑打开软件进行截图的,保证能够打开,下载原件超高清,下载后解压即可;
3、本站所有资源如无特殊说明,都需要本地电脑安装Office2007。图纸软件为AutoCAD,PROE,UG,SolidWorks,CATIA等;
4、本站所有图文资料仅供用户学习参考,不作为任何商用或其他用途;
5、本站不保证下载资源的准确性、安全性和完整性, 不包修改,不支持退换,同时也不承担用户因使用这些下载资源对自己和他人造成任何形式的伤害或损失;
6、 下载文件中如有侵权或不适当内容,请与我们联系,我们立即纠正。