

作品包括:
Word版说明书1份,共31页,约14000字
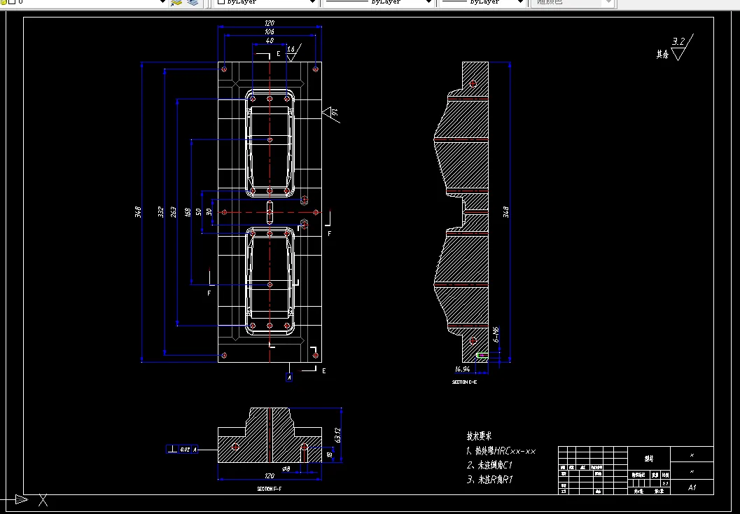
CAD版本图纸,共7张
SW三维图一份
![1712241850876539.webp V0]CBG[4KPHU`L95AF[MEMQ.webp](/static/upload/image/20240404/1712241850876539.webp)
目 录
1 塑件成型工艺性分析 1
1.1 塑件结构分析 1
1.2 ABS的基本性能与成型特点 1
1.3 塑件成型工艺参数的确定 2
1.4 塑件的精度分析 3
1.5 塑件表面粗糙度分析 3
2 分型面的选择和浇注系统的设计 4
2.1 分型面的选择 4
2.2 型腔的分布 4
2.3 注塑机的选择 5
2.4 浇注系统设计 6
2.4.1 主流道的设计 7
2.4.2 浇口套的设计 8
2.4.3 分流道的设计 8
2.4.4 浇口的设计 9
2.4.5 冷料穴的设计 10
2.5 排气系统的设计 10
3 成型零件的设计及尺寸计算 12
3.1 成型零件工作尺寸的计算 12
3.2 内模尺寸的确定 12
3.3 成型零件的结构设计 13
4 推出机构的设计 15
4.1 推出力的计算 15
4.2 推出机构的选择及位置的确定 15
4.2.1 推出方式的确定及其固定形式 15
4.2.2 推杆位置的选择 15
4.3 推出机构的导向与复位 16
4.3.1 推出机构的导向 16
4.3.2 推出机构的复位 16
5 结构零件的设计 17
5.1 模架和标准件的选用 17
5.2 支成零部件的设计 19
5.2.1 垫块的设计 19
5.2.2 支承柱的设计 19
5.3 合模导向机构的设计 19
5.3.1 导柱与导套的设计 20
6 温度调节系统的设计 22
6.1 冷却回路尺寸的确定和布置 22
6.1.1 冷却系统的设计准则 22
6.1.2 冷却系统和冷却介质 22
6.1.3 冷却系统的简略计算 23
6.1.4 冷却回路的布置 24
6.2 模具加热系统的设计 24
7 主要参数的校核 25
7.1 注射压力的校核 25
7.2 锁模力的校核 25
7.3 注射量的校核 25
7.4 模具安装部分的校核 26
7.5 模具开模行程的校核 26
8 感想 27
参考文献 28
温馨提示:
1、题目前面的备注【字母数字编号】为本站整理分类的编号,与课题内容无关,请选题时忽视;
2、若题目上备注三维,则表示文件里包含三维源文件,由于三维组成零件数量较多,为保证预览截图的简洁性,本站将三维文件夹进行了打包。三维及CAD预览截图,均为本站电脑打开软件进行截图的,保证能够打开,下载原件超高清,下载后解压即可;
3、本站所有资源如无特殊说明,都需要本地电脑安装Office2007。图纸软件为AutoCAD,PROE,UG,SolidWorks,CATIA等;
4、本站所有图文资料仅供用户学习参考,不作为任何商用或其他用途;
5、本站不保证下载资源的准确性、安全性和完整性, 不包修改,不支持退换,同时也不承担用户因使用这些下载资源对自己和他人造成任何形式的伤害或损失;
6、 下载文件中如有侵权或不适当内容,请与我们联系,我们立即纠正。