

作品包括:
Word版说明书1份,共31页,约14000字
CAD版本图纸,共34张

摘 要
现代工业当中,需要各种产业技术支撑,模具就是其中一种新型的产业技术,为工业快速发展做出巨大贡献,也为经济发展奠定了基础。模具技术是为一种衡量国家制造水平的重要因素,经过长期技术发展,如今用于各个领域中,特是电子电器、汽车生产等方面,几乎都离开模具技术。国内模具技术也是不断成熟,能够满足国内企业生产需求,并且可以满足出口加工要求,我国已经是属于全球模具制造大国,相信在不久的将来,我们在模具制造领域也可以实现高端高精度模具的批量生产加工,引领全球模具技术发展。
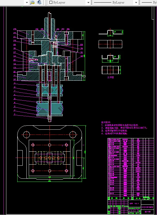
本次设计的是卡脚冲压模,该零件是常见的零部件,为中批量加工要求,需要对本次零件做出工艺分析以及材料分析,确定工序和工艺方案,计算成型零件的尺寸以及模具刃口尺寸,搭边数值,合理计算材料利用率,确保模具生产经济性要求,同时还要计算冲裁力数值,合理选用冲压机,最终完成图纸要求。
关键词:工艺分析、卡脚、经济性、冲压模具
目 录
摘 要 5
第一章、绪 论 7
1.1 课题的背景和意义 7
1.2 模具的国内外发展现状 8
第二章、冲裁件的工艺性分析 10
2.1.冲裁件的结构工艺性 10
2.1.1.冲裁件的形状 10
2.2.冲压件尺寸精度 10
2.3.冲压工序组合 10
2.4.冲压顺序的安排 11
第三章、制件排样图设计及材料利用率计算 12
3.1.展开尺寸的计算 12
3.2.制件排样图的设计 12
3.2.1.搭边与料宽计算 13
3.2.2.排样设计 14
3.3.材料利用率计算 14
第四章、计算总冲压力及压力中心 15
4.1.落料模计算冲压力 15
4.1.1.平刃口冲裁力计算 15
4.1.2.卸料力,推件力计算 15
4.2.弯曲模冲压力计算 15
4.2.1.自由弯曲力计算 16
4.2.2.校正弯曲力计算 16
4.3.压力中心的计算 17
第六章、凸、凹模刃口尺寸计算 19
6.1.弯曲模刃口计算 19
6.2.落料刃口尺寸计算 20
6.2.1.刃口计算原则 20
6.2.2.凸模和凹模刃口计算 20
第七章、冲压设备的选择与校核 22
7.1.压力设备选择 22
7.2.公称压力校核 22
7.3.行程次数校核 22
7.4.滑块行程校核 22
7.5.模具闭合高度校核 23
7.6.工作台面尺寸校核 23
第八章、模具整体结构形式设计 24
8.1.落料模总体装配设计 24
8.2.模架选择 25
8.3.弯曲模总体装配设计 25
8.4.模架设计 26
第九章、模具零件的结构设计 27
9.1.落料凹模的设计 27
9.2.落料凸模的设计 28
9.3.凸模固定板的设计 28
9.4.卸料板的设计 29
9.5.弯曲凹模的设计 30
9.6.弯曲凸凹模的设计 31
9.7.凸凹模固定板的设计 32
设计心得 34
参考文献 35
致 谢 36
温馨提示:
1、题目前面的备注【字母数字编号】为本站整理分类的编号,与课题内容无关,请选题时忽视;
2、若题目上备注三维,则表示文件里包含三维源文件,由于三维组成零件数量较多,为保证预览截图的简洁性,本站将三维文件夹进行了打包。三维及CAD预览截图,均为本站电脑打开软件进行截图的,保证能够打开,下载原件超高清,下载后解压即可;
3、本站所有资源如无特殊说明,都需要本地电脑安装Office2007。图纸软件为AutoCAD,PROE,UG,SolidWorks,CATIA等;
4、本站所有图文资料仅供用户学习参考,不作为任何商用或其他用途;
5、本站不保证下载资源的准确性、安全性和完整性, 不包修改,不支持退换,同时也不承担用户因使用这些下载资源对自己和他人造成任何形式的伤害或损失;
6、 下载文件中如有侵权或不适当内容,请与我们联系,我们立即纠正。