

作品包括:
说明书一份,47页,月23000字
CAD版本图纸,共7张
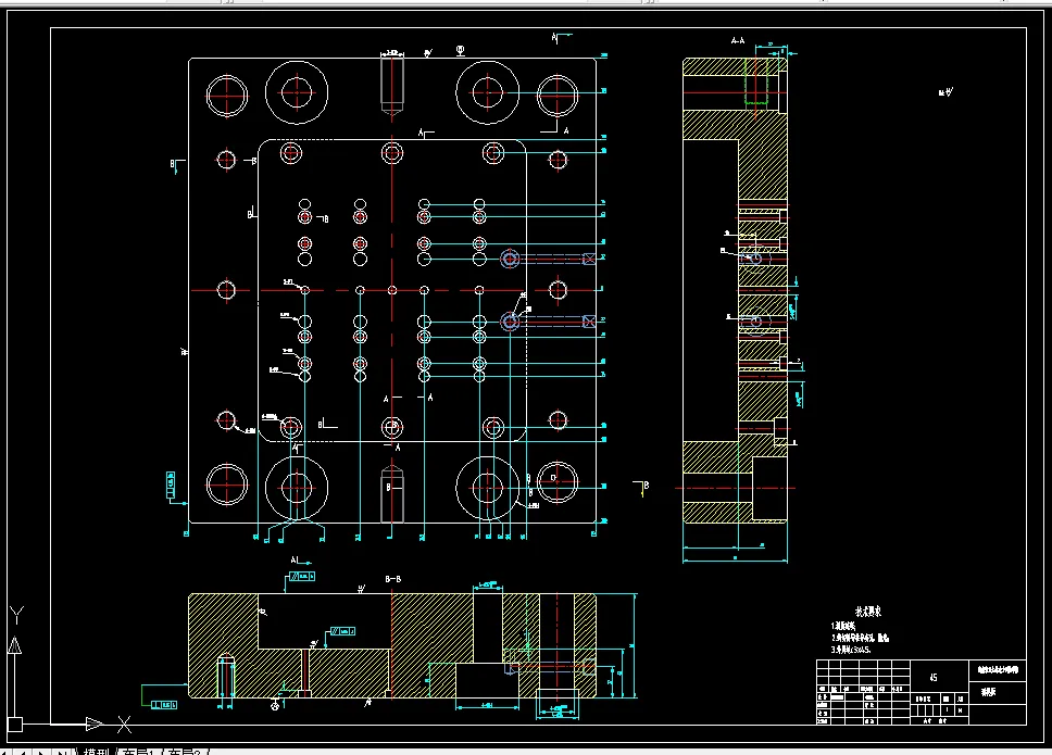
冲水手柄注塑模具设计
摘 要:本设计根据实际的需要完成冲水手柄的注射模设计。该产品采用ABS塑料进行注塑成型,成型方式为一模八腔。该设计根据产品材料和结构特点,对产品进行了工艺性分析,选用了合理的注射成型工艺参数,确定了所需的和成型设备模具的总体结构,同时对模具的细节部分进行了结构设计和一些必要的尺寸计算和强度校核此外,论文还对分型面、浇注系统、脱模机构、成型部件和温度调节系统进行了分析设计,最终完成了产品的三维实体造型、二维零件图和装配图,以及加工工艺规程。
关键词:冲水手柄;塑料模具;注射成型;注塑机;结构设计。
目 录
摘要 1
关键词 1
1绪论 2
1.1前言 2
1.2国内外现状分析及比较 2
1.3塑料模具的发展趋势 2
1.4设计思想 3
2 塑件成型工艺分析 3
2.1塑件(冲水手柄)分析 3
2.2热塑性塑料(ABS)的注射成型过程及工艺参数 4
2.3ABS的性能分析 5
2.4ABS成型塑件的主要缺陷及消除措施 6
3 拟定模具结构形式 6
3.1分型面位置的确定 6
3.2确定型腔数量及排列方式 7
3.3模具结构形式的确定 7
4 注射机型号的确定 8
4.1所需注射量的计算 8
4.2注射机型号的选定 9
4.3型腔数量及注射机有关工艺参数的校核 9
4.4安装尺寸校核 11
5 浇注系统的设计 11
5.1主流道的设计 12
5.2主流道衬套形式 12
5.3分流道设计 13
5.4浇口的设计 15
5.5冷料穴的设计 17
6 成型零件的设计 17
6.1成型零件结构设计 17
6.2成型零件钢材选用 17
6.3成型零件工作尺寸的计算 18
6.4型腔零件强度、刚度的校核 23
7 模架的确定 25
8 合模导向机构的设计 26
8.1导向机构总体设计 26
8.2导柱设计 27
8.3导套设计 27
9 推出机构 27
9.1脱模力的计算 28
10 排气系统的设计 29
11 温度调节系统设计 29
11.1加热系统 29
11.2冷却系统 29
12 典型零件的制造工艺 31
12.1塑料模成型零件的加工工艺 31
12.2典型零件制造工艺编制 32
13 模具的装配 34
13.1塑料模具装配过程 36
14 模具的备料清单和网络周期 37
14.1模具非标准件备料清单 37
14.2模具标准件备料清单 37
14.3网络周期图 38
14.4模具的生产过程 38
15 模具成本的估算 38
15.1材料费用 39
15.2加工成本 40
16 结论 41
参考文献 42
致谢 43
温馨提示:
1、题目前面的备注【字母数字编号】为本站整理分类的编号,与课题内容无关,请选题时忽视;
2、若题目上备注三维,则表示文件里包含三维源文件,由于三维组成零件数量较多,为保证预览截图的简洁性,本站将三维文件夹进行了打包。三维及CAD预览截图,均为本站电脑打开软件进行截图的,保证能够打开,下载原件超高清,下载后解压即可;
3、本站所有资源如无特殊说明,都需要本地电脑安装Office2007。图纸软件为AutoCAD,PROE,UG,SolidWorks,CATIA等;
4、本站所有图文资料仅供用户学习参考,不作为任何商用或其他用途;
5、本站不保证下载资源的准确性、安全性和完整性, 不包修改,不支持退换,同时也不承担用户因使用这些下载资源对自己和他人造成任何形式的伤害或损失;
6、 下载文件中如有侵权或不适当内容,请与我们联系,我们立即纠正。