

作品包括:
说明书一份,30页,约15000字
CAD版本图纸,共8张
洗衣机把手注射模设计
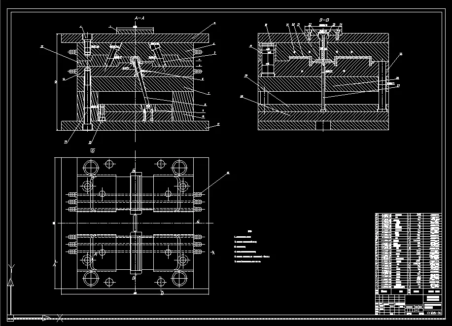
摘 要:通过对塑料洗衣机把手工艺的分析,设计了一副一模两腔的注塑模具。设计过程包括模具各个成型零件尺寸的计算,重要工艺参数的选择,以及推出机构、抽芯机构、分型机构、浇注系统、冷却系统等的计算。选择了主要零件的制造材料。最后画出零件图和模具装配图。
关键词:洗衣机把手; 注射模具; 零件图; 加工工艺;
目 录
摘要 1
关键词 1
1 前言 1
1.1 研究意义 2
1.2 国内外研究现状及发展方向 2
2 塑件的工艺性分析 3
2.1 塑件实体分析 4
2.2 塑件原材料的分析 4
2.3 ABS材料的成型工艺参数 5
2.3.1 溢边值 6
2.4 计算塑件的体积和质量及塑件注射机型号的确定 6
3 型腔数的确定及浇注系统设计 6
3.1 分型面得选择 6
3.2 型腔数目的确定 7
3.3 浇注系统的设计 7
3.3.1 主流道设计 8
3.3.2 分流道设计 8
3.4 浇口的设计 10
3.4.1 浇口的断面形状尺寸 11
3.4.2 浇口位置的选择 11
4 侧向分型与抽芯机构的设计 12
4.1 侧向分型与抽芯方式 12
4.2 侧向分型与侧抽芯机构的类型的选用 12
4.3 斜导柱的设计 12
4.3.1 斜导柱的基本形式 12
4.3.2 斜导柱倾斜角的选择 13
4.3.3 斜导柱的计算 13
4.4 侧滑块的设计 16
5 模具成型零件的设计 16
5.1 型腔(凹模)与型芯(凸模)的结构设计 16
5.2 成型零件的工作尺寸计算 17
5.3 型腔、型芯工作尺寸计算 18
5.4 型腔壁厚校核及型腔固定板及型芯固定板厚度校核 18
6 导向与推出机构的设计 19
6.1 导柱的设计 19
6.2 推出机构的设计 20
6.2.1 斜推杆 21
7 冷却系统的设计 22
8 注射机及各个参数的校核 23
8.1 最大注射量校核 23
8.2 注射压力校核 23
8.3 锁模力校核 24
8.4 按装参数校核 25
8.5 开模行程校核 25
9 塑料模材料及选用 25
9.1 模具成型零件对材料的要求 25
9.2 塑料模具的选材 26
10 结论 27
参考文献 28
致谢 29
附录 30
温馨提示:
1、题目前面的备注【字母数字编号】为本站整理分类的编号,与课题内容无关,请选题时忽视;
2、若题目上备注三维,则表示文件里包含三维源文件,由于三维组成零件数量较多,为保证预览截图的简洁性,本站将三维文件夹进行了打包。三维及CAD预览截图,均为本站电脑打开软件进行截图的,保证能够打开,下载原件超高清,下载后解压即可;
3、本站所有资源如无特殊说明,都需要本地电脑安装Office2007。图纸软件为AutoCAD,PROE,UG,SolidWorks,CATIA等;
4、本站所有图文资料仅供用户学习参考,不作为任何商用或其他用途;
5、本站不保证下载资源的准确性、安全性和完整性, 不包修改,不支持退换,同时也不承担用户因使用这些下载资源对自己和他人造成任何形式的伤害或损失;
6、 下载文件中如有侵权或不适当内容,请与我们联系,我们立即纠正。