

作品包括:
说明书一份,36页,约18000字
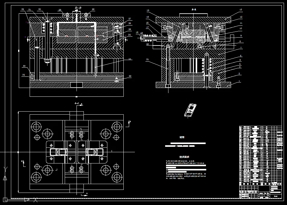
CAD版本图纸,共12张
手机外壳注塑模设计
摘 要:通过对手机外壳成型工艺的正确分析,借助先进的CAD、Pro/ENGINEER专业软件,设计一副一模两腔的注塑模具。详细地叙述了模具成型零件凸模、凹模、型芯和定模座板、动模座板、顶杆、固定板、支撑板以及斜导柱、滑块等的设计。介绍了重要零件的工艺参数的选择与计算,推出机构、弹簧分型拉杆定距与浇注系统设计过程,同时对注射机的选择与校核进行了较详细的说明。
关键词:手机外壳;注射模具;三维建模
目 录
摘要…………………………………………………………………………………………1
关键词………………………………………………………………………………………1
1 前言………………………………………………………………………………………1
1.1 设计目的与意义…………………………………………………………………1
1.2 手机的发展现状…………………………………………………………………2
1.3 我国模具的发展现状……………………………………………………………3
1.4 采用注射模成型手机产品的优点………………………………………………3
2 塑件的工艺性分析………………………………………………………………………3
2.1 分析塑件使用材料的种类及工艺特征…………………………………………3
2.2 手机外壳形状分析………………………………………………………………6
2.2.1 手机外壳模型图…………………………………………………………6
2.2.2 塑件尺寸精度的分析……………………………………………………7
2.2.3 表面质量的分析…………………………………………………………7
3 注射机型号的确定………………………………………………………………………7
3.1 塑件的体积和重量………………………………………………………………7
3.2 注射机型号的确定………………………………………………………………7
3.3 塑件的注射工艺参数的确定……………………………………………………8
3.4 注射机及型腔数量的校核………………………………………………………8
3.5 注射机及参数量的校核…………………………………………………………8
3.5.1 注射量的校核……………………………………………………………8
3.5.2 型腔数量的确定和校核………………………………………………9
3.5.3 塑件在分型面上的投影面积与锁模力校核…………………………9
3.5.4 最大注射压力校核……………………………………………………10
3.5.5 模具与注射机安装部份的校核………………………………………10
3.5.6 开模行程校核…………………………………………………………10
4 分型面位置的确定……………………………………………………………………11
4.1 分型面的形式…………………………………………………………………11
4.2 分型面的设计原则……………………………………………………………11
4.3 分型面的确定…………………………………………………………………12
5 浇注系统的形式和浇口的设计………………………………………………………13
5.1 浇注系统设计原则……………………………………………………………13
5.2 主流道的设计…………………………………………………………………13
5.2.1 主流道的尺寸…………………………………………………………13
5.2.2 主流道衬套的形式……………………………………………………14
5.3 分流道的设计…………………………………………………………………16
5.4 浇口的设计……………………………………………………………………17
5.4.1 浇口的作用……………………………………………………………17
5.4.2 浇口的形式及特点……………………………………………………18
5.4.3 浇口的设计原则………………………………………………………18
5.4.4 浇口设计尺寸的确定…………………………………………………18
5.5 浇注系统的平衡………………………………………………………………19
5.5.1 分流道的平衡…………………………………………………………19
5.5.2 浇口的平衡……………………………………………………………20
6 模架的确定和标准件的选用…………………………………………………………20
7 合模导向机构的设计…………………………………………………………………22
7.1 机构的功用……………………………………………………………………22
7.1.1 导向机构的功用………………………………………………………22
7.1.2 定位机构的功用………………………………………………………22
7.2 导向结构的总体设计…………………………………………………………22
7.3 导柱的设计……………………………………………………………………23
7.4 导套的设计……………………………………………………………………23
7.5 导柱与导套的配合形式………………………………………………………23
9 脱模机构的设计与计算………………………………………………………………24
9.1 脱模机构设计的原则…………………………………………………………24
9.2 脱模力的计算…………………………………………………………………25
9.3 顶杆直径的计算………………………………………………………………25
10 侧抽芯机构的设计……………………………………………………………………26
10.1 导向结构的总体设计…………………………………………………………26
10.2 斜导柱长度的计算……………………………………………………………27
10.3 抽芯力的计算…………………………………………………………………28
10.4 导滑槽的设计…………………………………………………………………28
10.5 楔紧块的设计…………………………………………………………………29
10.5.1 楔紧块的形式…………………………………………………………29
10.5.2 锁紧角的选择…………………………………………………………29
10.6 滑块定位装置设计……………………………………………………………29
11 模具工作零件的设计与计算…………………………………………………………29
11.1 凹模、凸模、型心工作尺寸的计算…………………………………………30
11.2 型腔侧壁厚度和底板厚度的计算……………………………………………32
11.3 凹模加工工艺…………………………………………………………………33
12 温度调节系统…………………………………………………………………………33
13 安装参数的校核………………………………………………………………………33
14 结论……………………………………………………………………………………34
参考文献……………………………………………………………………………………35
致谢…………………………………………………………………………………………36
附录…………………………………………………………………………………………36
温馨提示:
1、题目前面的备注【字母数字编号】为本站整理分类的编号,与课题内容无关,请选题时忽视;
2、若题目上备注三维,则表示文件里包含三维源文件,由于三维组成零件数量较多,为保证预览截图的简洁性,本站将三维文件夹进行了打包。三维及CAD预览截图,均为本站电脑打开软件进行截图的,保证能够打开,下载原件超高清,下载后解压即可;
3、本站所有资源如无特殊说明,都需要本地电脑安装Office2007。图纸软件为AutoCAD,PROE,UG,SolidWorks,CATIA等;
4、本站所有图文资料仅供用户学习参考,不作为任何商用或其他用途;
5、本站不保证下载资源的准确性、安全性和完整性, 不包修改,不支持退换,同时也不承担用户因使用这些下载资源对自己和他人造成任何形式的伤害或损失;
6、 下载文件中如有侵权或不适当内容,请与我们联系,我们立即纠正。