

作品包括:
Word版设计说明书1份
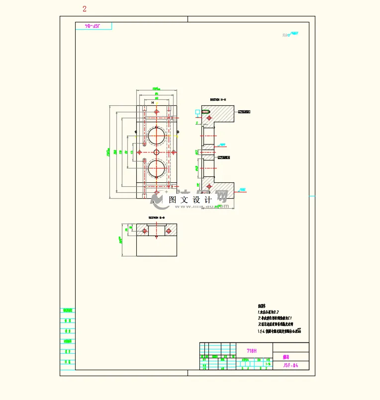
CAD版本图纸,共7张
摘要
注射成型是热塑性塑料的主要成型方法。本文课题生活中零件进水阀外壳部件,本次设计是关于一种进水阀液位计外壳的注塑模具设计及其计算校核。运用软件进行建模,针对塑件的结构特点,分析确定了塑件的注塑成型模具结构总体方案,包括确定合适的分型面和模具开合动作机构方案。从模具结构总体方案出发,进一步设计型腔结构、浇注系统、冷却系统、脱模机构、斜推杆内侧分型抽芯机构等,以及必要的校核计算。绘制模具零件图,选择各个模具零件的材料。通过锁模力的计算和校核确定了注塑机的型号。最后介绍了模具的工作原理,并结合测量数据测量进行计算和校核。
温馨提示:
1、题目前面的备注【字母数字编号】为本站整理分类的编号,与课题内容无关,请选题时忽视;
2、若题目上备注三维,则表示文件里包含三维源文件,由于三维组成零件数量较多,为保证预览截图的简洁性,本站将三维文件夹进行了打包。三维及CAD预览截图,均为本站电脑打开软件进行截图的,保证能够打开,下载原件超高清,下载后解压即可;
3、本站所有资源如无特殊说明,都需要本地电脑安装Office2007。图纸软件为AutoCAD,PROE,UG,SolidWorks,CATIA等;
4、本站所有图文资料仅供用户学习参考,不作为任何商用或其他用途;
5、本站不保证下载资源的准确性、安全性和完整性, 不包修改,不支持退换,同时也不承担用户因使用这些下载资源对自己和他人造成任何形式的伤害或损失;
6、 下载文件中如有侵权或不适当内容,请与我们联系,我们立即纠正。