

作品包括:
Word版设计说明书1份
CAD版本图纸,共14张
摘要
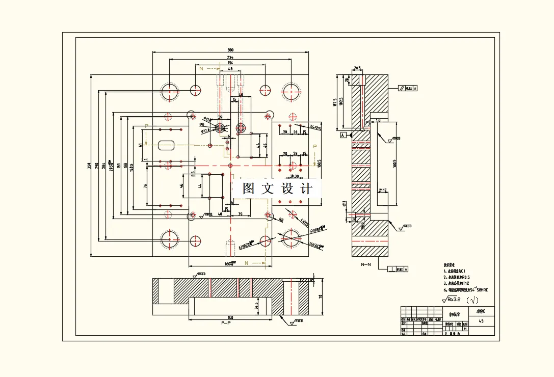
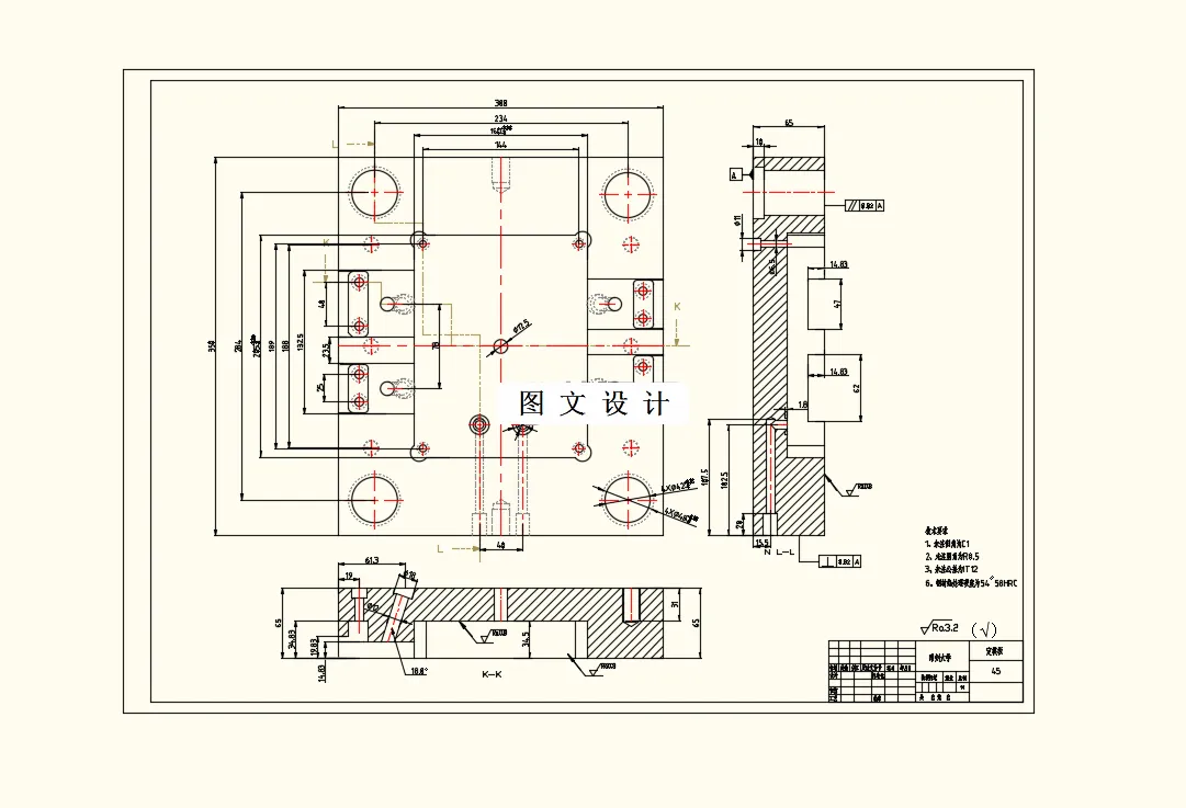
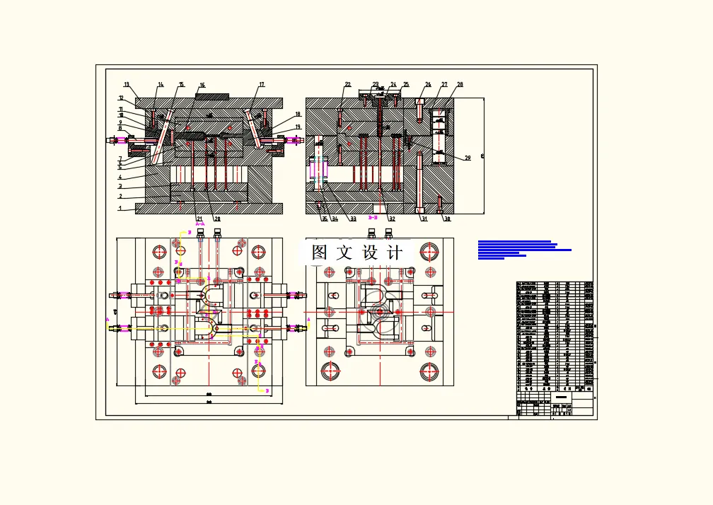
本文研究的主要内容是晾衣杆头部制件的注塑模具设计,通过确定制件的外形并结合成型特点设计注塑模具。首先,根据材料PET制定制件的成型工艺,然后分析制件外型,设计了一模两腔的型腔结构。其次,计算了注塑机所需注射量,选择了注塑机并进行公式校核。然后,我选择了分模面,计算了成型零件的尺寸并设计了侧向分型与抽芯机构。最后,我进行浇注系统的设计,选择了侧浇口和A1型标准模架,完成了合模脱模机构和简单冷却水道的设计。设计的同时,绘制了二维装配图和零件图。利用moldflow软件选择了浇注的最佳浇口。对于典型零件进行了加工工艺分析。晾衣杆头部制件属于小型制件,在生活中处处可见。完成此次设计不仅检验了我的学习成果,同时为以后的工作生涯打下坚实基础。
温馨提示:
1、题目前面的备注【字母数字编号】为本站整理分类的编号,与课题内容无关,请选题时忽视;
2、若题目上备注三维,则表示文件里包含三维源文件,由于三维组成零件数量较多,为保证预览截图的简洁性,本站将三维文件夹进行了打包。三维及CAD预览截图,均为本站电脑打开软件进行截图的,保证能够打开,下载原件超高清,下载后解压即可;
3、本站所有资源如无特殊说明,都需要本地电脑安装Office2007。图纸软件为AutoCAD,PROE,UG,SolidWorks,CATIA等;
4、本站所有图文资料仅供用户学习参考,不作为任何商用或其他用途;
5、本站不保证下载资源的准确性、安全性和完整性, 不包修改,不支持退换,同时也不承担用户因使用这些下载资源对自己和他人造成任何形式的伤害或损失;
6、 下载文件中如有侵权或不适当内容,请与我们联系,我们立即纠正。