

作品包括:
Word版设计说明书1份
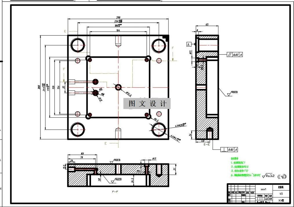
CAD版本图纸,共5张
UG三维塑件图1张
摘要
该塑件采用ABS树脂,起成型特点流动性中等,吸湿性打算,必须充分干燥,表面要求光泽的塑件必须经过长时间的预热干燥,溢边值0.04毫米,适合取高料温,高模温,但是料温过高容易分解,对精度的要求较高的塑件,模温适合取50-60摄氏度,对光泽,耐热塑件,模温取60-80摄氏度。注射压力高于聚苯乙烯。用螺杆式注射机成型时,料温为180-230摄氏度,注射压力也比较大。而且有很好的抗冲击强度和良好的机械强度以及一定的耐磨性。收缩率为0.4%--0.6%。质量密度为1.02-1.08克每立方厘米。1460930
温馨提示:
1、题目前面的备注【字母数字编号】为本站整理分类的编号,与课题内容无关,请选题时忽视;
2、若题目上备注三维,则表示文件里包含三维源文件,由于三维组成零件数量较多,为保证预览截图的简洁性,本站将三维文件夹进行了打包。三维及CAD预览截图,均为本站电脑打开软件进行截图的,保证能够打开,下载原件超高清,下载后解压即可;
3、本站所有资源如无特殊说明,都需要本地电脑安装Office2007。图纸软件为AutoCAD,PROE,UG,SolidWorks,CATIA等;
4、本站所有图文资料仅供用户学习参考,不作为任何商用或其他用途;
5、本站不保证下载资源的准确性、安全性和完整性, 不包修改,不支持退换,同时也不承担用户因使用这些下载资源对自己和他人造成任何形式的伤害或损失;
6、 下载文件中如有侵权或不适当内容,请与我们联系,我们立即纠正。