

作品包括:
Word版设计说明书1份
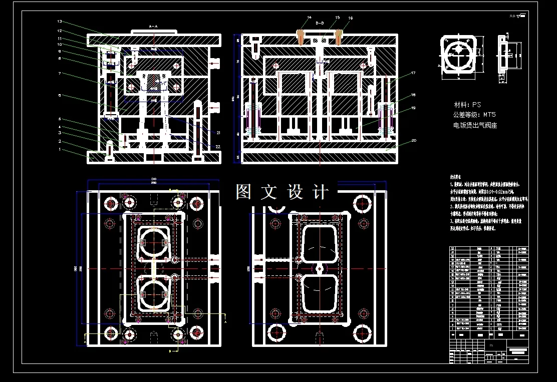
CAD版本图纸,共13张
UG三维图一份
模流分析一份
摘要
此设计为电饭煲出气阀座注塑模具设计,采用一模二腔,侧浇注口进行填充,提供三维(UG格式)+二维装配图1张及主要零件图12张+模流分析+设计报告文档( 文档约1.7W字 43页)。通过三维软件UG、Solidworks等软件,对注塑零件盖进行3D软件建模,另外,在此基础上,设计人员还对模具的成型结构进行了设计,并绘制出相关的装配图、零件图。在结构设计过程中,经过方案对比,选定采用了一模两腔的设计。本次设计的模具具有工作稳定、结构紧凑等特点,最后除了模具结构的设计外,还对模具的进行了分型面、型腔数目、浇注系统、脱模机构、冷却系统等进行了详细的设计。
温馨提示:
1、题目前面的备注【字母数字编号】为本站整理分类的编号,与课题内容无关,请选题时忽视;
2、若题目上备注三维,则表示文件里包含三维源文件,由于三维组成零件数量较多,为保证预览截图的简洁性,本站将三维文件夹进行了打包。三维及CAD预览截图,均为本站电脑打开软件进行截图的,保证能够打开,下载原件超高清,下载后解压即可;
3、本站所有资源如无特殊说明,都需要本地电脑安装Office2007。图纸软件为AutoCAD,PROE,UG,SolidWorks,CATIA等;
4、本站所有图文资料仅供用户学习参考,不作为任何商用或其他用途;
5、本站不保证下载资源的准确性、安全性和完整性, 不包修改,不支持退换,同时也不承担用户因使用这些下载资源对自己和他人造成任何形式的伤害或损失;
6、 下载文件中如有侵权或不适当内容,请与我们联系,我们立即纠正。