

作品包括:
Word设计说明书1份
CAD版本图纸,共9张
摘要
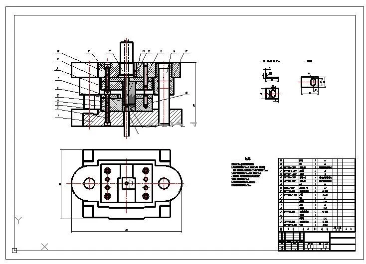
角座冲压弯曲模设计 主要进行角座的冲压模具设计。该冲压模具的特点是具有对称机构。在设计过程中分析了V形冲压件的工艺特点,介绍了角座的冲压模结构及模具的整体设计过程,并分析和阐述了模具凸、凹模零件及各标准件的选材及选用原则和方法、保持架的结构要素、零件的尺寸公差和精度的选择、以及压力机的选择和校核。
温馨提示:
1、题目前面的备注【字母数字编号】为本站整理分类的编号,与课题内容无关,请选题时忽视;
2、若题目上备注三维,则表示文件里包含三维源文件,由于三维组成零件数量较多,为保证预览截图的简洁性,本站将三维文件夹进行了打包。三维及CAD预览截图,均为本站电脑打开软件进行截图的,保证能够打开,下载原件超高清,下载后解压即可;
3、本站所有资源如无特殊说明,都需要本地电脑安装Office2007。图纸软件为AutoCAD,PROE,UG,SolidWorks,CATIA等;
4、本站所有图文资料仅供用户学习参考,不作为任何商用或其他用途;
5、本站不保证下载资源的准确性、安全性和完整性, 不包修改,不支持退换,同时也不承担用户因使用这些下载资源对自己和他人造成任何形式的伤害或损失;
6、 下载文件中如有侵权或不适当内容,请与我们联系,我们立即纠正。