

作品包括:
Word设计说明书1份
任务书一份
开题报告一份
外文翻译一份
CAD版本图纸,共14张

摘要
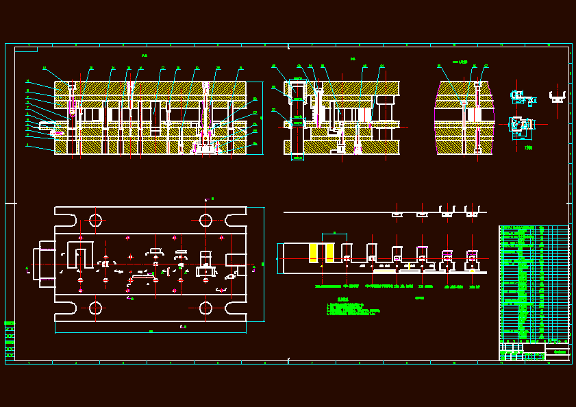
接线卡零件冲压模具设计本次设计内容为某设备上的电器接线卡,首先分析该工件的结构特点和成型工艺。由于该工件尺寸较小,材料为黄铜,厚度仅为1mm,成形工艺又包括外形冲裁、冲孔、多次弯曲和切断等多个工序,比较复杂。如若采用单工序模,则不仅冲压工序繁琐,而且生产率低下,质量也不容易得到保证,故而采用多工位级进模进行冲压生产。然后根据工件的成形工艺来分析相应的模具结构,再考虑到材料的利用率和冲裁、成形的精度以及材料送进时的刚度和平稳性,最后确定工位数和步距,画出排样图。再根据排样图来设计模具的结构。按照排样图的工位进行送料加工,经最后一个工位的切断,成功得到符合要求的工件。
温馨提示:
1、题目前面的备注【字母数字编号】为本站整理分类的编号,与课题内容无关,请选题时忽视;
2、若题目上备注三维,则表示文件里包含三维源文件,由于三维组成零件数量较多,为保证预览截图的简洁性,本站将三维文件夹进行了打包。三维及CAD预览截图,均为本站电脑打开软件进行截图的,保证能够打开,下载原件超高清,下载后解压即可;
3、本站所有资源如无特殊说明,都需要本地电脑安装Office2007。图纸软件为AutoCAD,PROE,UG,SolidWorks,CATIA等;
4、本站所有图文资料仅供用户学习参考,不作为任何商用或其他用途;
5、本站不保证下载资源的准确性、安全性和完整性, 不包修改,不支持退换,同时也不承担用户因使用这些下载资源对自己和他人造成任何形式的伤害或损失;
6、 下载文件中如有侵权或不适当内容,请与我们联系,我们立即纠正。