

作品包括:
Word设计说明书1份
CAD版本图纸,共13张

摘要
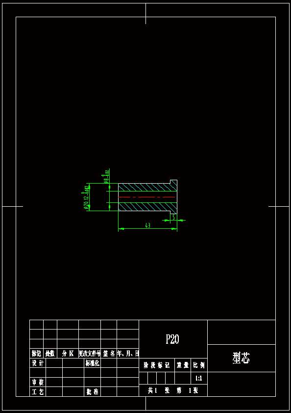
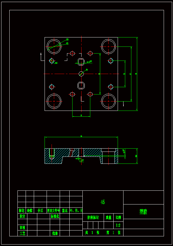
管堵注塑模具设计 介绍了注射成型的基本原理,特别是单分型面注射模具的结构与工作原理,对注塑产品提出了基本的设计,介绍了冷流道注射模具浇注系统、冷却系统和顶出系统的设计过程度要求做了简单说明。设计成型零部件以及设计合理的推出机构。并分析和阐述了模具型芯零件及各标准件的选材、热处理工艺,塑件的结构要素,塑件的尺寸公差和精度的选择,塑件的体积和质量的计算方法对设计进行验证主要是对注射机的相关重要参数进行验证包括模具闭合厚度、模具安装尺寸等。在校验合格后,进行成型零件加工工艺过程的制定,既要保证塑件的质量,又要兼顾经济性。
温馨提示:
1、题目前面的备注【字母数字编号】为本站整理分类的编号,与课题内容无关,请选题时忽视;
2、若题目上备注三维,则表示文件里包含三维源文件,由于三维组成零件数量较多,为保证预览截图的简洁性,本站将三维文件夹进行了打包。三维及CAD预览截图,均为本站电脑打开软件进行截图的,保证能够打开,下载原件超高清,下载后解压即可;
3、本站所有资源如无特殊说明,都需要本地电脑安装Office2007。图纸软件为AutoCAD,PROE,UG,SolidWorks,CATIA等;
4、本站所有图文资料仅供用户学习参考,不作为任何商用或其他用途;
5、本站不保证下载资源的准确性、安全性和完整性, 不包修改,不支持退换,同时也不承担用户因使用这些下载资源对自己和他人造成任何形式的伤害或损失;
6、 下载文件中如有侵权或不适当内容,请与我们联系,我们立即纠正。