

作品包括:
Word设计说明书1份,共70页,约28000字
CAD版本图纸,共5张

摘要
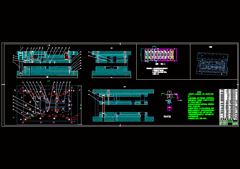
汽车后门导轨下支架模具是用级进模生产的一种汽车零件。通过对实际生产中同类模具的生产过程,结构,最终产品结构的分析。利用三维软件UG6.0对工件进行分析和展开,在通过几何尺寸和结构特点,设计出排样图.进而设计出最终的模具结构。在利用UG软件对数模进行三维和二维之间的转换,最终完成本次设计。通过整个设计过程,了解级进模模具的基本组成部件、基本结构、和其运动的基本过程。在设计过程中,通过对实际生产中模具的实地观察,能使设计的模具与实际相结合,更贴近于实际生产,更全面考虑占地面积、生产精度和加工的难易对于设计模具的影响。通过本次设计,我对三维软件的应用有了一定的了解,能熟练运用二维软件CAXA,并且了解了基本的设计过程和原则,同时在与老师、设计人员的指导中,在于同学们交流中,得到了更多的知识和经验,也就纠正了以往的一些错误,这些是今后设计和学习的基础和经验。
温馨提示:
1、题目前面的备注【字母数字编号】为本站整理分类的编号,与课题内容无关,请选题时忽视;
2、若题目上备注三维,则表示文件里包含三维源文件,由于三维组成零件数量较多,为保证预览截图的简洁性,本站将三维文件夹进行了打包。三维及CAD预览截图,均为本站电脑打开软件进行截图的,保证能够打开,下载原件超高清,下载后解压即可;
3、本站所有资源如无特殊说明,都需要本地电脑安装Office2007。图纸软件为AutoCAD,PROE,UG,SolidWorks,CATIA等;
4、本站所有图文资料仅供用户学习参考,不作为任何商用或其他用途;
5、本站不保证下载资源的准确性、安全性和完整性, 不包修改,不支持退换,同时也不承担用户因使用这些下载资源对自己和他人造成任何形式的伤害或损失;
6、 下载文件中如有侵权或不适当内容,请与我们联系,我们立即纠正。