

作品包括:
Word版说明书1份,共28页,约10000字
CAD版本图纸,共10张
摘 要
大批量生产Q235-A钢止动片,用模具生产可以采用廉价的轧制钢板或钢带为原料,生产效率高、精度高,质量好、成本低,节约能源且原材料利用率高。冲压模具是将板料分离或成形而得到制件的常用加工装置。通过对零件的分析和方案比较,最终选择了复合模作为止动片的冲裁模具,选出了适宜的定位方式、卸料方式、导向方式,进行了模具的凸、凹模和凸凹模及其装配以及一系列重要零部件的设计。本次设计基本实现了预期的功能要求,并具有一定的推广意义。
关键词:止动片复合模具; 冲裁模具;模具设计
目录
第一章 绪论.......................................................... 1
1.1 概述.....................................................................1
1.2 冲压技术的进步...........................................................1
1.3 模具的发展与现状.........................................................2
1.4 模具CAD/CAE/CAM技术.....................................................2
1.5 课题的主要特点及意义.....................................................3
第二章 冲压工艺方案的制定........................................4
2.1加工零件图样和技术要求...................................................4
2.2 冲压工艺分析............................................................4
2.3 工艺方案及模具结构类型...................................................4
2.4排样设计及材料利用率.....................................................5
2.4.1排样的方式.............................................................5
2.4.2排样设计...............................................................5
2.5冲压力与压力中心计算.....................................................6
2.5.1.冲压力的计算..........................................................6
2.5.2.冲压中心的计算........................................................7
第三章 模具零件的设计与计算 ....................................8
3.1工作零件刃口计算..........................................................8
3.2工作零件尺寸计算..........................................................9
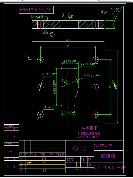
3.2.1 落了凹模板尺寸计算......................................................9
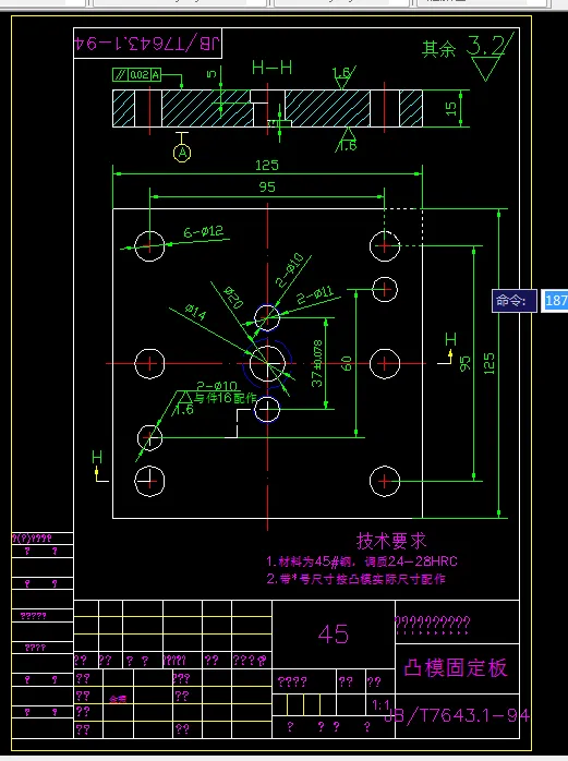
3.2.2 凸凹模尺寸计算.........................................................10
3.2.3 冲孔凸模尺寸计算.......................................................11
3.3模具零件结构尺寸.........................................................12
第四章 模具总体结构设计..........................................14
4.1模具总体设计............................................................14
4.2其他零件的选择..........................................................15
4.2.1定位方式的选择........................................................ 15
4.2.2定位零件的选择........................................................15
4.2.3卸料和推件零件的选择..................................................15
4.2.4模架的选择............................................................16
4.2.5模柄的选择............................................................17
4.2.6螺钉的选择............................................................17
第五章 冲压设备的选用.............................................19
5.1 选择压力机..............................................................19 总结......................................................................20
参考文献................................................................21
温馨提示:
1、题目前面的备注【字母数字编号】为本站整理分类的编号,与课题内容无关,请选题时忽视;
2、若题目上备注三维,则表示文件里包含三维源文件,由于三维组成零件数量较多,为保证预览截图的简洁性,本站将三维文件夹进行了打包。三维及CAD预览截图,均为本站电脑打开软件进行截图的,保证能够打开,下载原件超高清,下载后解压即可;
3、本站所有资源如无特殊说明,都需要本地电脑安装Office2007。图纸软件为AutoCAD,PROE,UG,SolidWorks,CATIA等;
4、本站所有图文资料仅供用户学习参考,不作为任何商用或其他用途;
5、本站不保证下载资源的准确性、安全性和完整性, 不包修改,不支持退换,同时也不承担用户因使用这些下载资源对自己和他人造成任何形式的伤害或损失;
6、 下载文件中如有侵权或不适当内容,请与我们联系,我们立即纠正。