

作品包括:
说明书1份,共42页,约21000字左右
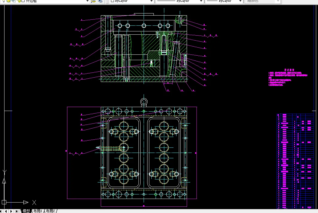
CAD版本本图纸,共16张
饮料瓶的注射模型
摘 要:本设计为饮料瓶杯注塑模具设计,系统的介绍了饮料瓶杯材料的选取,模具中的各个零件的加工工艺过程及整套模具的设计过程。其中,涉及到注射机各种参数的选取,模具的浇筑系统,模具成型部分的结构,顶出系统,冷却系统,零部件的加工方法、注射模的结构及相关的计算,从而确定饮料瓶注塑模具设计思路及方案,最后在设计过程中运用Auto CAD软件进行注塑模结构设计,计算并绘制出模具总装配图。本设计在保证加工质量的前提下,尽量做到在提高生产效率的同时把生产成本降到最低,一次注射可以成型12个饮料瓶杯,实现了大批量的生产。
关键词: 饮料瓶杯 模具设计 注射机
目录
摘 要 1
第一章 饮料瓶杯的材料选择 3
1.1瓶杯的作用 3
1.2塑料的分类:热塑性和热固性 3
1.2.1常见热塑性材料的性质和用途 3
第二章 注射成型工艺 5
2.1瓶杯的整体情况 5
2.2热塑性塑料注射成型过程中的塑化 5
2.3热塑性塑料从注射到定型的四个阶段 6
2.4注射成型的工艺控制 6
2.4.1温度控制 6
2.4.2压力控制 7
2.4.3模腔压力 8
2.5过程时间控制 8
2.5.1注射冲模时间 8
2.5.2注射保压时间 9
2.5.3模内冷却时间 9
第三章 注射机的选择及其工作原理 10
3.1注射机的类型及其功能 10
3.2注射系统 10
3.2.1合模系统 10
3.2.2液压系统 10
3.2.3电气控制系统 11
3.2.4加热/冷却系统 11
3.2.5润滑系统 11
3.2.6保护与监测系统 11
3.2.7工作原理 11
第四章 模具总体机构方案的分析与制定 14
4.1塑形塑料注射成型 14
4.1.1原材料的检验与热处理 14
4.1.2料筒清洗 14
4.1.3嵌件预热与安放 14
4.2注射模的功能结构组成 14
4.3塑料注射模整体设计 15
4.4模架的选型 15
4.5确定型腔数目及流道的设计 16
4.6型腔的布局 17
4.6.1普通浇注系统设计 17
4.6.2主流道设计 17
4.6.3定位环极其配合 18
4.7浇口设计 19
4.7.1浇口的选用 19
4.7.2浇口的位置的选择 19
4.8排气方案的设计 20
4.8.1注射成型排气不良后果 20
4.8.2排气措施 20
4.9分型面的设计 20
4.9.1分型的形式 20
4.9.2分型面位置的选择 21
第五章 注射模功能机构的详细设计 22
5.1校核注射机有关工艺参数 22
5.1.1注射量的校核 22
5.1.2锁模力与注射压力 22
5.1.3注射机开模行程 22
5.2成型零部件的设计 23
5.2.1成型零件应具备的性能要求 23
5.2.2成型零件设计的前提与步骤 23
5.2.3成型零部件的结构设计 23
5.2.4成型零部件的尺寸设计 24
5.3 合模导向与精定位机构设计 28
5.3.1导柱导向机构及其设计要点 28
5.3.2合模精定位机构设计 30
5.4脱模机构的设计 31
5.4.1脱模机构设计的原理 31
5.4.2脱模力的计算 31
5.4.3脱模机构的分类 32
5.5侧向分型抽芯机构设计 33
5.5.1抽拔距与抽拔力的计算 33
5.5.3斜导柱侧向分型抽芯机构 33
5.6模具温度的调节系统 35
参考文献 36
致谢 37
温馨提示:
1、题目前面的备注【字母数字编号】为本站整理分类的编号,与课题内容无关,请选题时忽视;
2、若题目上备注三维,则表示文件里包含三维源文件,由于三维组成零件数量较多,为保证预览截图的简洁性,本站将三维文件夹进行了打包。三维及CAD预览截图,均为本站电脑打开软件进行截图的,保证能够打开,下载原件超高清,下载后解压即可;
3、本站所有资源如无特殊说明,都需要本地电脑安装Office2007。图纸软件为AutoCAD,PROE,UG,SolidWorks,CATIA等;
4、本站所有图文资料仅供用户学习参考,不作为任何商用或其他用途;
5、本站不保证下载资源的准确性、安全性和完整性, 不包修改,不支持退换,同时也不承担用户因使用这些下载资源对自己和他人造成任何形式的伤害或损失;
6、 下载文件中如有侵权或不适当内容,请与我们联系,我们立即纠正。