

作品包括:
Word版设计说明书1份,共26页,约8900字
CAD版本图纸,共5张

摘要
甲醇作为一种重要的有机化工原料,在工业生产中占据重要的位置。常用来用来合成甲醛、二甲醚、醋酸等常见的工业产品。由于现代社会中石油的过分开采,传统资源面临巨大的压力。同时甲醇的成本却在不断降低。我国的国情是“富煤、缺油、少气”,现代工艺已经越来越青睐用甲醇作为新的工业原料。而作为煤炭大国、用煤来作为原料生产甲醇可以有效的解决石油供应矛盾。中国富煤贫油,由煤气化制取甲醇合成气是我国目前乃至将来的发展方向。通过这次的安全设计,可以将所学到的知识在实践中运用出来,加深了我对于课本上的知识的理解,使所学的知识形成一个完整的体系,以便于更灵活的运用。
关键词:甲醇;气化;安全设计
目录
引言 1
第一章 企业简介 2
1.1总图布置 2
1.2生产规模 2
1.3工艺流程 2
1.4公用工程及辅助设施 2
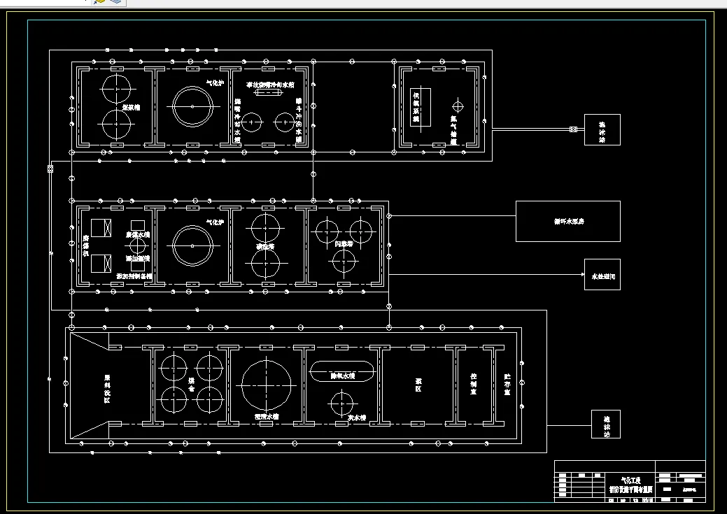
第二章 壳牌气化工艺流程说明 4
2.1壳牌气化工艺特点 4
2.2 shell煤气化的原理 4
2.4 工艺流程及主要设备 5
第三章 工艺计算 7
3.1需要参数 7
3.2物料衡算 8
3.2.1基础计算 8
3.2.2气化过程平衡计算 9
3.2.3热量平衡 10
3.3设备选型 11
3.3.1磨煤机选型 11
3.3.6各种泵的选型 16
第四章 安全评价 17
4.1 安全评价的概述 17
4.1.1 安全评价的目的、范围 17
4.1.2安全设立评价依据法律 18
4.2安全评价方法及单元 18
4.2.1怎样选择评价方法 19
4.3 定性、量评价 19
4.3.1主要危险有害因素分析 19
4.4对于的措施与建议 22
4.4.1总图布置和建筑方面的安全措施 22
4.4.2工艺和设备、装置方面的对策措施 22
4.4.3 安全管理方面对策措施 23
参考文献 24
谢辞 25
温馨提示:
1、题目前面的备注【字母数字编号】为本站整理分类的编号,与课题内容无关,请选题时忽视;
2、若题目上备注三维,则表示文件里包含三维源文件,由于三维组成零件数量较多,为保证预览截图的简洁性,本站将三维文件夹进行了打包。三维及CAD预览截图,均为本站电脑打开软件进行截图的,保证能够打开,下载原件超高清,下载后解压即可;
3、本站所有资源如无特殊说明,都需要本地电脑安装Office2007。图纸软件为AutoCAD,PROE,UG,SolidWorks,CATIA等;
4、本站所有图文资料仅供用户学习参考,不作为任何商用或其他用途;
5、本站不保证下载资源的准确性、安全性和完整性, 不包修改,不支持退换,同时也不承担用户因使用这些下载资源对自己和他人造成任何形式的伤害或损失;
6、 下载文件中如有侵权或不适当内容,请与我们联系,我们立即纠正。