

作品包括:
Word版设计说明书1份
CAD版本图纸,共6张
摘要
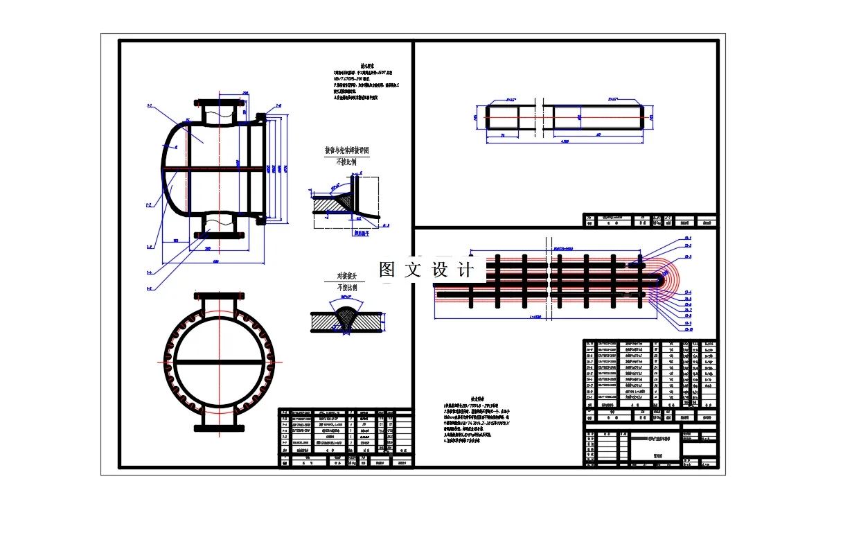
换热器在木材干燥领域有广泛的应用,本次设计是设计一台冷凝装置以满足干燥窑热量回收和干燥木料的作用,换热介质为空气和R134制冷剂,其中空气走管程,R134走壳程,在综合介质、设计目标后,本次设计采用传热性能好,传热系数高的U型管式换热器。设计包括干燥窑参数计算、工艺设计、结构设计、强度校核以及节能讨论。首先对干燥窑内空气循环参数进行计算后,再由工艺设计估算该换热器的换热面积,计算并校核传热系数,计算流动阻力以及对换热管规格、数量进行选择。算得换热管管数为176,规格为Φ25×2.5mm,管长为4.5m,正三角形排列。结构设计包括对筒体、管箱、封头、接管、拉杆和定距管、管板、鞍座等进行设计和校核,算得筒体内径为600mm,厚度为8mm,两端封头均选择EHA标准椭圆封头,在进行强度校核后发现本次设计在工艺、结构方面满足设计要求。然后对换热器的节能展开讨论,完成了本次设计。
温馨提示:
1、题目前面的备注【字母数字编号】为本站整理分类的编号,与课题内容无关,请选题时忽视;
2、若题目上备注三维,则表示文件里包含三维源文件,由于三维组成零件数量较多,为保证预览截图的简洁性,本站将三维文件夹进行了打包。三维及CAD预览截图,均为本站电脑打开软件进行截图的,保证能够打开,下载原件超高清,下载后解压即可;
3、本站所有资源如无特殊说明,都需要本地电脑安装Office2007。图纸软件为AutoCAD,PROE,UG,SolidWorks,CATIA等;
4、本站所有图文资料仅供用户学习参考,不作为任何商用或其他用途;
5、本站不保证下载资源的准确性、安全性和完整性, 不包修改,不支持退换,同时也不承担用户因使用这些下载资源对自己和他人造成任何形式的伤害或损失;
6、 下载文件中如有侵权或不适当内容,请与我们联系,我们立即纠正。