

作品包括:
说明书一份,48页,21000字左右.
外文翻译一份
CAD版本图纸,共18张:
附表3张
摘 要
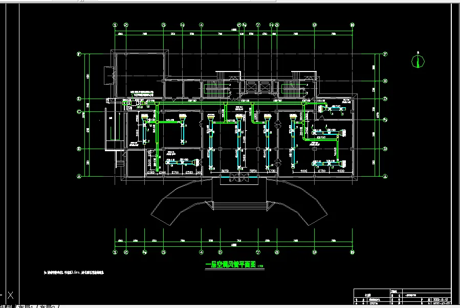
本设计为哈尔滨XX集团办公楼空调系统工程设计。哈尔XX望江集团办公楼属中小型办公建筑,本建筑总建筑面积4138m2,空调面积2833m2。地下一层,地上八层,建筑高度33.9m。全楼冷负荷为191千瓦,全楼采用水冷机组进行集中供给空调方式。
此设计中的建筑主要房间为办公室,大多面积较小,且各房间互不连通,应使所选空调系统能够实现对各个房间的独立控制,综合考虑各方面因素,确定选用风机盘管加新风系统。在房间内布置吊顶的风机盘管,采用暗装的形式。将该集中系统设为风机盘管加独立新风系统,新风机组从室外引入新风处理到室内空气焓值,不承担室内负荷。风机盘管承担室内全部冷负荷及部分的新风湿负荷。风机盘管加独立新风系统由百叶风口下送和侧送。水系统采用闭式双管同程式,冷水泵三台,两用一备;冷却水泵选三台,两用一备。
在冷负荷计算的基础上完成主机和风机盘管的选型,并通过风量、水量的计算确定风管路和水管路的规格,并校核最不利环路的阻力和压头用以确定新风机和水泵。
依据相关的空调设计手册所提供的参数,进一步完成新风机组、水泵、热水机组等的选型,从而将其反应在图纸上,最终完成整个空调系统设计。
关键词:风机盘管加独立新风系统; 负荷; 管路设计; 制冷机组: 冷水机组
目录
摘 要 I
Abstract II
目 录 III
1 设计依据 1
1.1 设计任务书 1
1.2 建筑平面图和剖面图 1
1.3 国家主要规范和行业标准: 1
1.4 哈尔滨市设计计算参数: 1
1.4.1 室外计算参数 1
1.4.2 室内计算参数 1
1.4.3 其他设计参数 1
1.5 建筑围护结构的热工性能 2
1.5.1 外墙 2
1.5.2 内墙 3
1.5.3 屋面 4
1.5.4 外门 4
1.5.5 外窗 4
1.6 设计范围: 5
1.7 设计原则: 5
2 负荷计算 6
2.1 空调冷负荷的计算 6
2.1.1 外墙冷负荷与屋面冷负荷: 6
2.1.2 玻璃窗瞬变传热引起的冷负荷: 6
2.1.3 透过玻璃窗进入的日射得热引起的冷负荷: 7
2.1.4 照明散热引起的冷负荷: 7
2.1.5 人员散热引起的冷负荷: 7
2.2 调热负荷的计算: 12
2.3 空调湿负荷的计算: 14
3 系统选择 15
3.1 冷热源选择: 15
3.1.1 选择冷热源系统的基本原则: 15
3.1.2 冷热源系统方案的比较 15
3.1.3 冷热源系统方案的确定 16
3.2 空调系统的选择 16
3.2.1 空调系统设计的基本原则 16
3.2.2 空调系统方案的比较 17
3.3 空调系统方案的确定: 18
4 新风负荷的计算 19
4.1 新风量的确定 19
4.2 空调新风冷负荷的计算: 19
5 空气处理设备的选择 21
5.1 风机盘管的选择: 21
5.1.1 风机盘管处理过程 21
5.1.2 风机盘管的选取 22
5.1.3 风机盘管的布置 23
5.2 新风机组的选择: 23
5.2.1 新风机组的计算: 24
5.2.2 新风机组的型号及布置: 24
6 气流组织 25
6.1 气流组织分布 25
6.2 风口布置 26
6.3 风口选择计算 26
7 风系统水力计算 27
7.1 风管水力计算方法 27
7.2 风管水力计算过程 27
7.3 风管的布置及附件: 28
8 空调水系统设计及水利计算 30
8.1 空调水系统的设计 30
8.1.1 空调水系统的设计原则 30
8.1.2 空调水系统方案的确定 30
8.2 冷水系统的水力计算 30
8.3 冷凝水管道设计 32
8.3.1 设计原则: 32
8.3.2 管径确定 32
8.4 水系统安装要求 32
9 制冷机房设备的选择计算 34
9.1 冷水机组选型计算: 34
9.2 冷却塔的设计计算: 34
9.3 循环水泵的选择: 34
9.3.1 冷冻水泵的设计计算 35
9.3.2 冷却水泵的设计计算: 35
9.4 集分水器的设计计算: 35
9.5 水处理设备的选择计算 36
9.6 阀门安装: 36
10 管道保温与防腐 37
10.1 管道保温 37
10.1.1 保温目的 37
10.1.2 保温材料的选用 37
10.1.3 保温厚度 37
10.1.4 保温经济厚度 38
10.2 管道防腐 38
11 消声减震设计 39
11.1 消声设计 39
11.1.1 管道系统消声设计的步骤: 39
11.1.2 消声器使用过程中应当注意的几个问题: 39
11.2 减震设计 39
结束语 40
参考文献 41
致 谢 42
温馨提示:
1、题目前面的备注【字母数字编号】为本站整理分类的编号,与课题内容无关,请选题时忽视;
2、若题目上备注三维,则表示文件里包含三维源文件,由于三维组成零件数量较多,为保证预览截图的简洁性,本站将三维文件夹进行了打包。三维及CAD预览截图,均为本站电脑打开软件进行截图的,保证能够打开,下载原件超高清,下载后解压即可;
3、本站所有资源如无特殊说明,都需要本地电脑安装Office2007。图纸软件为AutoCAD,PROE,UG,SolidWorks,CATIA等;
4、本站所有图文资料仅供用户学习参考,不作为任何商用或其他用途;
5、本站不保证下载资源的准确性、安全性和完整性, 不包修改,不支持退换,同时也不承担用户因使用这些下载资源对自己和他人造成任何形式的伤害或损失;
6、 下载文件中如有侵权或不适当内容,请与我们联系,我们立即纠正。