

作品包括:
Word版说明书1份,共41页,约11000字
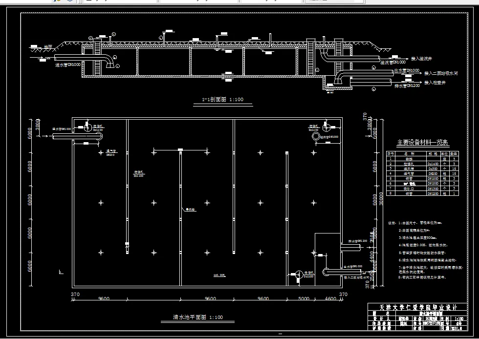
CAD版本图纸,共6张
摘 要
随着人口增长、经济发展及人民生活水平的提高,人类对水的需求日益增长,对水质的要求也越来越高。
本设计为安阳市某区给水工程工艺设计。设计内容:净水厂设计,送水泵站设计。
净水厂处理水量为115000m3/d。净水工艺流程为:原水→取水泵站→管式静态混合器→往复式隔板絮凝池→斜管沉淀池→普通快滤池→液氯消毒→清水池→送水泵站→市政给水管网。根据原水水质及水温,絮凝剂选用碱式氯化铝氯,最高投药量为20.0mg/L。选液氯消毒剂,采用滤后加氯,加氯量为1.5mg/L。出水水质符合《生活饮用水卫生标准》(GB5749-2006)。
关键词:净水厂设计;往复式隔板絮凝池;斜管沉淀池;普通快滤池
目 录
第一章 绪论 1
1.1 城市概述 1
1.2 设计资料综述 1
1.3 设计目的与要求 3
第二章 净水厂设计 5
2.1 设计水质水量及工艺的确定 5
2.2 混合 6
2.3 往复式隔板絮凝池设计计算 10
2.4 斜管沉淀池设计计算 14
2.5 普通快滤池的设计 17
2.6 清水池的设计 27
2.7 消毒设计 29
第三章 二泵站的设计和计算 32
3.1 设计参数 32
3.2 水泵和电机的选择 32
3.3 二泵站设计计算 33
第四章 水厂平面和高程布置 37
4.1 平面布置 37
4.2 水厂高程布置 38
参考文献 40
外文资料
中文译文
致谢
温馨提示:
1、题目前面的备注【字母数字编号】为本站整理分类的编号,与课题内容无关,请选题时忽视;
2、若题目上备注三维,则表示文件里包含三维源文件,由于三维组成零件数量较多,为保证预览截图的简洁性,本站将三维文件夹进行了打包。三维及CAD预览截图,均为本站电脑打开软件进行截图的,保证能够打开,下载原件超高清,下载后解压即可;
3、本站所有资源如无特殊说明,都需要本地电脑安装Office2007。图纸软件为AutoCAD,PROE,UG,SolidWorks,CATIA等;
4、本站所有图文资料仅供用户学习参考,不作为任何商用或其他用途;
5、本站不保证下载资源的准确性、安全性和完整性, 不包修改,不支持退换,同时也不承担用户因使用这些下载资源对自己和他人造成任何形式的伤害或损失;
6、 下载文件中如有侵权或不适当内容,请与我们联系,我们立即纠正。