

作品包括:
Word版说明书1份,共29页,约11000字
CAD版本图纸,共7张
摘 要
随着社会发展,生活居民生活用水标准日益提高。为满足人口增长和城市发展需求,本设计为长春市新城区给水工艺设计,根据相关设计手册和规范,设计处理工艺相关设备和构筑物,使出水水质达到国家二类标准,并满足日供水量11×104m3/d。
整个工程包括两大部分: 净水工程、供水工程。
净水工程的设计主要包括净水厂的设计计算。
供水工程的设计内容包括二泵站的相关计算。
净水厂的设计包括净水厂的位置选择、水处理工艺流程的确定、处理构筑物的设计计算以及水厂的平面和高程布置。
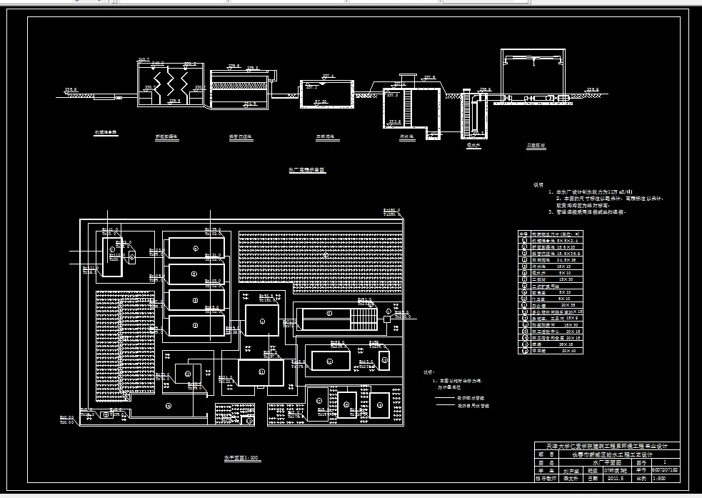
通过技术经济比较,考虑水厂后期发展和环保等问题之后,确定净水厂的工艺流程选用方案:
原水→一级泵站→机械混合→折板絮凝池→斜管沉淀池→双阀滤池→清水池→吸水井→二级泵站→用户
关键字:折板絮凝 ; 机械混合 ; 斜管沉淀池 ; 双阀滤池
目 录
第一章 绪论…………………………………………………1
1.1 目的和要求……………………………………………… 1
1.2 原始依据………………………………………………… 1
1.3 设计内容和要求………………………………………… 2
第二章 工艺确定
2.1 净水工艺的要求………………………………………… 3
2.2 一般水源净水工艺流程选择 ………………………… 3
2.3 水处理工艺比较选择…………………………………… 3
第三章 处理构筑物和工艺计算
3.1 设计流量的确定………………………………………… 8
3.2 加药设备的计算………………………………………… 8
3.3 机械混合器的设计计算…………………………………10
3.4 折板絮凝池的设计计算…………………………………11
3.5 斜管沉淀池的设计计算…………………………………14
3.6 双阀滤池设计计算………………………………………16
3.7 消毒设备设计计算………………………………………20
3.8 清水池设计计算…………………………………………21
3.9 吸水井……………………………………………………22
第四章 二泵站及其他设施……………………………… 24
4.1 二泵站的设计计算………………………………………24
4.2 水厂高程…………………………………………………27
4.3 道路及绿化布置…………………………………………28
注释………………………………………………………… 29
参考文献…………………………………………………… 29
附录………………………………………………………… 30
外文资料
中文译文
致谢
温馨提示:
1、题目前面的备注【字母数字编号】为本站整理分类的编号,与课题内容无关,请选题时忽视;
2、若题目上备注三维,则表示文件里包含三维源文件,由于三维组成零件数量较多,为保证预览截图的简洁性,本站将三维文件夹进行了打包。三维及CAD预览截图,均为本站电脑打开软件进行截图的,保证能够打开,下载原件超高清,下载后解压即可;
3、本站所有资源如无特殊说明,都需要本地电脑安装Office2007。图纸软件为AutoCAD,PROE,UG,SolidWorks,CATIA等;
4、本站所有图文资料仅供用户学习参考,不作为任何商用或其他用途;
5、本站不保证下载资源的准确性、安全性和完整性, 不包修改,不支持退换,同时也不承担用户因使用这些下载资源对自己和他人造成任何形式的伤害或损失;
6、 下载文件中如有侵权或不适当内容,请与我们联系,我们立即纠正。