欢迎来到龙图网在线图文分享平台-CAD图纸,设计说明书,工业设计3D模型,三维软件下载!   客服QQ:2363701252
热搜:

工艺夹具 模具设计 数控编程 土木工程 3D模型

E702-GTC高空作业平台电气控制的设计 下载积分:50 资料编号: E702

1.打开支付宝或者微信扫描二维码。
2.填写金额:50 
3.添加备注,填写资料编号:
资料编号: E702
4.支付成功后,请发资料编号到邮箱:jxsj168@qq.com
会有专人在15分钟内把资料发到您邮箱
备注:如果付款忘记填写资料编号,则发邮件时附带您的交易明细截图即可。
请耐心等待,如超过30分钟还没收到,请联系客服QQ:2363701252
点击分享:

作品描述

作品包括:

Word版说明书1份,共34页,约16000字

外文翻译一份

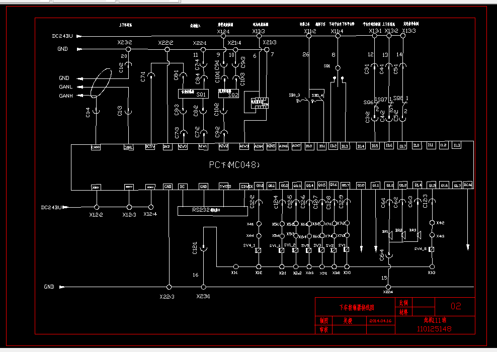
CAD版本图纸,共3张


 摘 要


高空作业平台是服务于各行业高空作业,设备安装,检修等可移动性高空作业的产品,高空作业平台的相关产品主要有:剪叉式高空作业平台,车载式高空作业平台,曲臂式高空作业平台,自行式高空作业平台,铝合金高空作用平台,套缸式高空作业平台六大类,高空作业平台主要是依靠液压和电力来实现各种功能,它的工作原理主要是液压由叶片泵产生一定的压力,使液压港的活塞向上移动,提升重物,通过调节液压阀来控制各项运动的速度,以来达到不同工作地点的不同要求。本文重点研究的是剪叉式高空作业平台,通过电池来控制各种液压阀的开启与闭合,通过调节液压阀开口的大小来实现各项功能速度的控制,而本章研究的重点就是电气是如何控制这些功能的,如何将电能转化为液压能,如何通过传感器来控制剪叉车的运行速度和起升高度,用以完成电与液压的完美结合,这也是将来重型设备的一个发展方向。


关键字:电池;液压阀;压力;传感器


目录


绪 论 1

第1章 高空作业平台机构简介 5

1.1 GTC10米剪叉式高空作业平台简图: 5

1.2 高空作业平台工作臂 5

1.3 工作平台 5

1.4 起升机构 6

1.5 动力系统 6

1.6 液压系统 6

1.7 电气系统 6

第2章 GTC高空作业平台电气控制系统 8

2.1 电气控制系统概述 8

2.2 高空作业平台电气控制的现状 9

2.3 高空作业平台电气控制设计的关键问题 10

2.4 高空作业平台电气控制基本流程 11

第3章 GTC型号剪叉式高空作业平台设计 12

3.1 高空作业平台设计原理 12

3.2控制过程 13

3.3 电器元件的选择 15

第4章  电气控制板的制作及操作说明 25

4.1 电气控制板的制作要求 25

4.2  高空作业平台操作面板操作说明 26

4.3电路中部分接线的说明 26

第5章 GTC型号升降平台的故障及分析 27

5.2 故障分析 27

  5.2 解决方案 27

结束语 28

致谢 29

参考文献 30

温馨提示:

1、题目前面的备注【字母数字编号】为本站整理分类的编号,与课题内容无关,请选题时忽视;

2、若题目上备注三维,则表示文件里包含三维源文件,由于三维组成零件数量较多,为保证预览截图的简洁性,本站将三维文件夹进行了打包。三维及CAD预览截图,均为本站电脑打开软件进行截图的,保证能够打开,下载原件超高清,下载后解压即可;

3、本站所有资源如无特殊说明,都需要本地电脑安装Office2007。图纸软件为AutoCAD,PROE,UG,SolidWorks,CATIA等;

4、本站所有图文资料仅供用户学习参考,不作为任何商用或其他用途;
5、本站不保证下载资源的准确性、安全性和完整性, 不包修改,不支持退换,同时也不承担用户因使用这些下载资源对自己和他人造成任何形式的伤害或损失;

6、 下载文件中如有侵权或不适当内容,请与我们联系,我们立即纠正。


线