欢迎来到龙图网在线图文分享平台-CAD图纸,设计说明书,工业设计3D模型,三维软件下载!   客服QQ:2363701252
热搜:

工艺夹具 模具设计 数控编程 土木工程 3D模型

KS351-齿轮泵体加工工艺及夹具设计【3套夹具】 下载积分:150 资料编号: KS351

1.打开支付宝或者微信扫描二维码。
2.填写金额:150 
3.添加备注,填写资料编号:
资料编号: KS351
4.支付成功后,请发资料编号到邮箱:jxsj168@qq.com
会有专人在15分钟内把资料发到您邮箱
备注:如果付款忘记填写资料编号,则发邮件时附带您的交易明细截图即可。
请耐心等待,如超过30分钟还没收到,请联系客服QQ:2363701252
点击分享:

作品描述

作品包括:

说明书1份,共48页,约18000字左右

CAD版本本图纸,共14张

工序卡一套

过程卡一张


摘  要


本设计是基于齿轮泵体零件的加工工艺规程及一些工序的专用夹具设计。齿轮泵体零件的主要加工表面是端面及孔系。一般来说,保证平面的加工精度要比保证孔系的加工精度容易。因此,本设计遵循先面后孔的原则。并将孔与平面的加工明确划分成粗加工和精加工阶段以保证孔系加工精度。夹具选用专用夹具,夹紧方式多选用手动夹紧,夹紧可靠,机构可以不必自锁。因此生产效率较高。适用于大批量、流水线上加工。能够满足设计要求。


关键词:齿轮泵体类零件;工艺;夹具;



目  录

摘  要 II

ABSTRACT III

第1章 绪论 1

1.1 机械加工工艺概述 1

1.2机械加工工艺流程 1

1.3夹具概述 2

1.4机床夹具的功能 3

1.5机床夹具的发展趋势 3

1.5.1机床夹具的现状 3

1.5.2现代机床夹具的发展方向 4

第2章 加工工艺规程设计 6

2.1 零件的分析 6

2.1.1 零件的作用 6

2.1.2 零件的工艺分析 6

2.2 齿轮泵体加工的主要问题和工艺过程设计所应采取的相应措施 7

2.2.1 孔和平面的加工顺序 7

2.2.2加工方案选择 7

2.3 齿轮泵体加工定位基准的选择 8

2.3.1 粗基准的选择 8

2.3.2 精基准的选择 8

2.4 齿轮泵体加工主要工序安排 8

2.5 机械加工余量、工序尺寸及毛坯尺寸的确定 11

2.6选择加工设备及刀、量具 11

2.7确定切削用量及基本工时(机动时间) 12

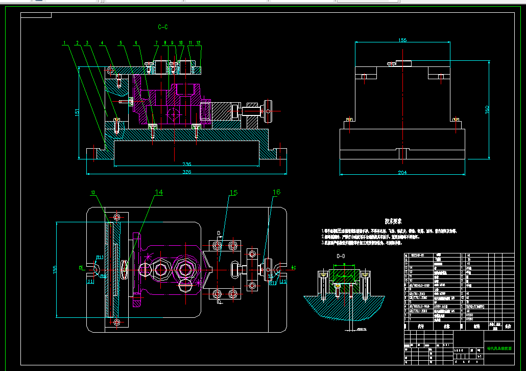
第3章 铣φ45端面夹具设计 21

3.1 研究原始质料 21

3.2 定位、夹紧方案的选择 22

3.3 切削力及夹紧力的计算 22

3.4 误差分析与计算 23

3. 5 定向键与对刀装置设计 24

3.6 确定夹具体结构和总体结构 26

3.7夹具设计及操作的简要说明 27

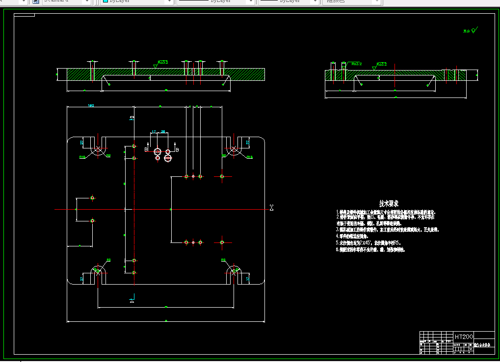
第4章 镗?48孔夹具设计 28

4.1 研究原始质料 28

4.2 定位、夹紧方案的选择 28

4.3 切削力及夹紧力的计算 28

4.4 误差分析与计算 30

4.5 定位销选用 31

4.6 夹具设计及操作的简要说明 31

第5章 钻2-φ18孔夹具设计 32

5.1 夹具的夹紧装置和定位装置 32

5.2 夹具的导向 33

5.3 钻孔与工件之间的切屑间隙 34

5.4 钻模板 34

5.5 切削力及夹紧力的计算 35

5.6 误差分析与计算 36

5.7 钻套、衬套、钻模板设计与选用 36

5.8 确定夹具体结构和总体结构 38

5.9 夹具设计及操作的简要说明 39

结 论 40

参考文献 41

致  谢 43

温馨提示:

1、题目前面的备注【字母数字编号】为本站整理分类的编号,与课题内容无关,请选题时忽视;

2、若题目上备注三维,则表示文件里包含三维源文件,由于三维组成零件数量较多,为保证预览截图的简洁性,本站将三维文件夹进行了打包。三维及CAD预览截图,均为本站电脑打开软件进行截图的,保证能够打开,下载原件超高清,下载后解压即可;

3、本站所有资源如无特殊说明,都需要本地电脑安装Office2007。图纸软件为AutoCAD,PROE,UG,SolidWorks,CATIA等;

4、本站所有图文资料仅供用户学习参考,不作为任何商用或其他用途;
5、本站不保证下载资源的准确性、安全性和完整性, 不包修改,不支持退换,同时也不承担用户因使用这些下载资源对自己和他人造成任何形式的伤害或损失;

6、 下载文件中如有侵权或不适当内容,请与我们联系,我们立即纠正。


线