

作品包括:
word说明书一份,共33页,约12000字
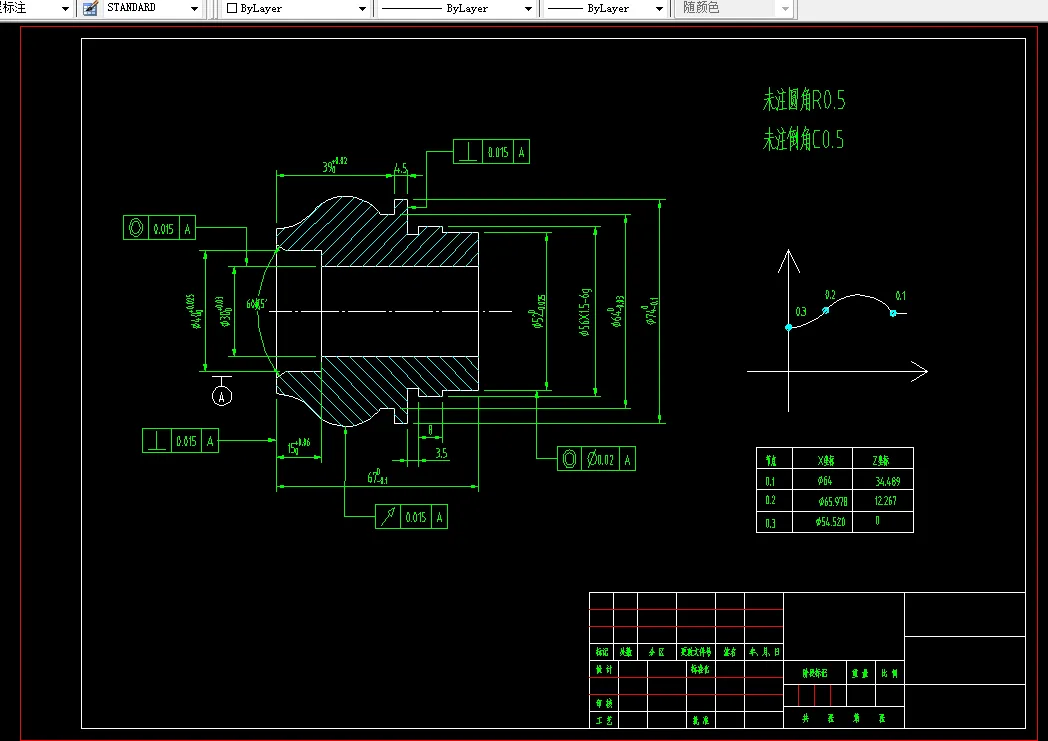
CAD版本图纸,共3张
UG三维图一份
摘要
本设计由三个零件组合而成,根据相关资料参考和工人们的先进经验,考虑多方面因素设计而成,其中尺寸的要求,粗糙度值的设定都是根据零件在实际应用的作用、他们之间配合的作用及相关的资料而来。在整个设计过程中全部部件图纸由Auto CAD完成。整个组合零件的零件编程量大,采用自动编程,整个编程由MasterCAM先进行造型,造型完成后再进行加工参数设置,自动编程。
现在,基本上所以的零件之间都是通过配合来达到预定的效果,所以对于一些配合件的需求成为了生活中不可缺少的一部分,随着自动化的提高,对于本设计,主要是套类零件和轴类零件的配合,而现在自动化的日益发展,数控车无疑是使用这类生产的较优越的机床之一,考虑综合因素,数控加工要在数控车床(FANUC系统)上完成加工,在数控加工的最大特征有两点:一是可以可以极大地提高精度,包括加工质量精度及加工时间精度;二是加工质量的重复性,可以稳定加工质量,保持加工零件质量的一致。也就是说加工零件的质量及加工时间是由数控程序决定而不是由机床操作人员决定的。
关键词:数控技术 加工工艺 自动编程
温馨提示:
1、题目前面的备注【字母数字编号】为本站整理分类的编号,与课题内容无关,请选题时忽视;
2、若题目上备注三维,则表示文件里包含三维源文件,由于三维组成零件数量较多,为保证预览截图的简洁性,本站将三维文件夹进行了打包。三维及CAD预览截图,均为本站电脑打开软件进行截图的,保证能够打开,下载原件超高清,下载后解压即可;
3、本站所有资源如无特殊说明,都需要本地电脑安装Office2007。图纸软件为AutoCAD,PROE,UG,SolidWorks,CATIA等;
4、本站所有图文资料仅供用户学习参考,不作为任何商用或其他用途;
5、本站不保证下载资源的准确性、安全性和完整性, 不包修改,不支持退换,同时也不承担用户因使用这些下载资源对自己和他人造成任何形式的伤害或损失;
6、 下载文件中如有侵权或不适当内容,请与我们联系,我们立即纠正。