

作品包括:
Word版说明书1份,共76页,约13000字
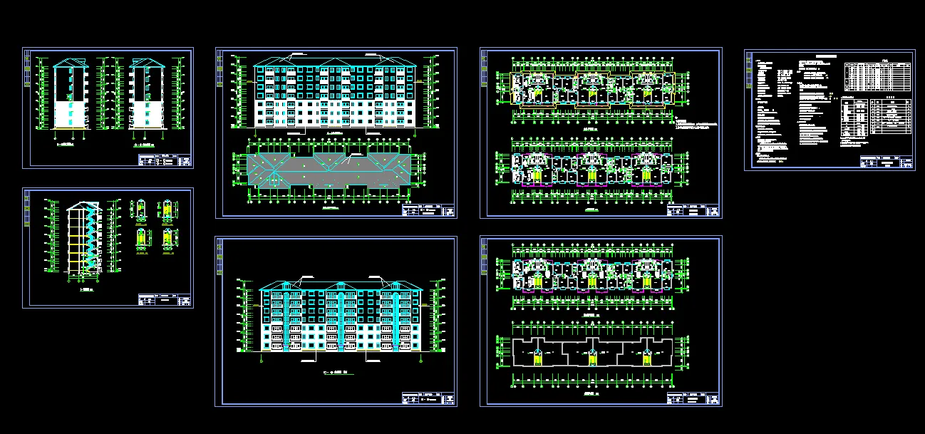
CAD版本图纸,共26张
摘要:该教学楼楼位于萍乡市城区。建筑形状为矩形,东西跨度为40.8m,南北跨度为15.6m,总建筑面积约3200m²,建筑高度18.9m,建筑5层,层高为3.6m。
该教学楼根据现行的相关规范、建筑设计,进行结构设计。建筑设计主要包括建筑平面布置、楼梯布置、门窗布置等。结构设计的内容主要有结构选型及结构布置、确定计算简图及计算单元、屋面板楼面设计、荷载计算、风荷载作用下的侧移计算、内力组合、梁柱设计、楼梯设计、基础设计等内容 。本工程采用钢筋混凝土框架结构体系,选择了有代表性的一榀框架进行计算。对于竖向荷载作用采用弯矩二次分配法计算,水平荷载(风荷载)作用采用D值法计算。由于本工程位于6度抗震设防区,属于丙类建筑,所以计算时不考虑抗震要求,但必须满足规范规定的构造要求。此外还进行了框架外的楼梯和基础的设计:楼梯设计时采用的是板式楼梯,计算了梯段板、平台梁、平台板;基础设计时采用了独立基础与联合基础,也分别计算了独立基础和联合基础。
关键词:教学楼 钢筋混凝土框架结构体系 弯矩二次分配法 D值法
目 录
前 言 1
1建筑设计及原始资料
1.1工程概况 2
1.2设计资料 2
1.3平面布置形式 2
2框架结构设计
2.1结构选型及材料选用 5
3板的计算
3.1设计资料 6
3.2屋面板计算 7
3.3楼面板计算 9
4荷载计算
4 .1重力荷载计算 11
4.2框架计算简图及梁柱线刚度 17
4.3风荷载作用下的位移验算 19
4.4内力计算 21
4.5内力组合 35
4.6柱截面设计与配筋计算 43
4.7梁截面设计与配筋计算 48
5楼梯设计
5.1标准层楼梯设计 52
5.2楼梯设计资料 53
5.3平台板计算 54
5.4平台梁计算 55
6基础设计
6.1设计资料 57
6.2 A轴柱下独立基础设计 57
6.2.1荷载取值规定 57
6.2.2内力计算 57
6.3 B,C轴柱下联合基础设计 61
6.3.1联合基础的基本假定 61
6.3.2内力计算........................................................................................................62
参考文献 64
致 谢 65
温馨提示:
1、题目前面的备注【字母数字编号】为本站整理分类的编号,与课题内容无关,请选题时忽视;
2、若题目上备注三维,则表示文件里包含三维源文件,由于三维组成零件数量较多,为保证预览截图的简洁性,本站将三维文件夹进行了打包。三维及CAD预览截图,均为本站电脑打开软件进行截图的,保证能够打开,下载原件超高清,下载后解压即可;
3、本站所有资源如无特殊说明,都需要本地电脑安装Office2007。图纸软件为AutoCAD,PROE,UG,SolidWorks,CATIA等;
4、本站所有图文资料仅供用户学习参考,不作为任何商用或其他用途;
5、本站不保证下载资源的准确性、安全性和完整性, 不包修改,不支持退换,同时也不承担用户因使用这些下载资源对自己和他人造成任何形式的伤害或损失;
6、 下载文件中如有侵权或不适当内容,请与我们联系,我们立即纠正。