

作品包括:
WORD版本说明书1份,共55页,约14000字
CAD版本图纸,共38张
某综合办公楼设计计算书
姓名:**** 学号:***
指导教师:
某大学土木建筑工程学院
[摘要] 本工程建筑地点在贵阳市郊区。为多层钢筋混凝土框架结构。共六层底层层高4.8米,其他层层高均为3.6米。建筑物总高度为22.8米。
本设计书包括建筑设计和结构设计两个部分,其中结构部分为主体部分。本工程结构设计采用框架结构,结构计算按横向框架承重分析。内力计算考虑以下三种荷载作用,即竖向恒载作用下的内力,活载作用下的内力及风载作用下的内力,。结构部分包括:
荷载计算;一块板的配筋计算
一榀框架结构的受力分析、计算和设计;
楼梯设计;
独立基础设计。
[关键词] 钢筋混凝土,框架,结构设计
工程概况:
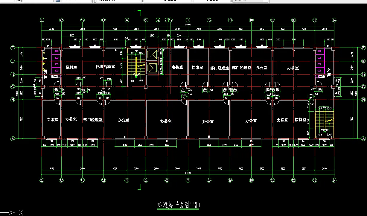
1、 工程名称:某综合办公楼;
2、 工程位置:贵阳市:
3、 工程总面积:5443.2㎡,主楼6层,高22.8m,一层层高4.8m,二到六层高3.6m;
4、 结构形式:现浇整体框架。
5、 设计资料:
(1)、工程地质条件:工程地质条件情况如下:
第一层土:城市杂填土 厚0-1.0m
第二层土:粘土 厚4.5-6.0m fk =250Kpa
第三层土:强风化灰岩2.0-2.6m fk=1500 Kpa
第四层土:中风化灰岩fk =2500 Kpa
(2)、抗震设防: 6 度,抗震等级 :四级
(3)、防火等级: 二级
(4)、建筑物类型: 丙类
(5)、基本风压: ω0= 0.30 KN/m2,主导风向:西北风
(6)、气象条件: 年平均温度:12 oC 最高温度:39 oC 最低温度:-21 oC,年总降雨量:541.5 mm 日最大降雨量:115.5 mm
(7)、活 载: 楼面活荷:2.0 KN/m2 ,上人屋面活载:2.0 KN/m2 ,不上人屋面活载:0.50 KN/m2 , 办公室:2.0 KN/m2;走道:2.5KN/m2;门厅:2.5 KN/m2;楼梯:2.5 KN/m2
本设计为贵阳市某综合办公楼,建筑物的总长为54.0米,总宽度为16.8米。底层做商场,二层以上做办公楼,采用大柱网现浇框架结构,共设两个出入口,两部电梯和两个楼梯间,主体建筑为6层,主要部分:底层4.8m,以上层高均为3.6m,建筑总高22.8m(不包括突出的炮楼部分高3.0m),小于30m ,根据《建筑抗震设计规范GB 50011-2001》6.1.2可知本综合办公楼抗震等级为四级。
建筑物合理使用年限为50年。建筑物防火等级为二级。该办公楼处于抗震设防烈度为6度区,场地设计分组为第一组,采用现浇框架结构承重体系,抗震等级为四级。结构布置为横向2跨,纵向8跨,最大跨度9.6m.。填充墙采用粉煤灰轻渣空心砌块(γ=7.5KN/m2)。
温馨提示:
1、题目前面的备注【字母数字编号】为本站整理分类的编号,与课题内容无关,请选题时忽视;
2、若题目上备注三维,则表示文件里包含三维源文件,由于三维组成零件数量较多,为保证预览截图的简洁性,本站将三维文件夹进行了打包。三维及CAD预览截图,均为本站电脑打开软件进行截图的,保证能够打开,下载原件超高清,下载后解压即可;
3、本站所有资源如无特殊说明,都需要本地电脑安装Office2007。图纸软件为AutoCAD,PROE,UG,SolidWorks,CATIA等;
4、本站所有图文资料仅供用户学习参考,不作为任何商用或其他用途;
5、本站不保证下载资源的准确性、安全性和完整性, 不包修改,不支持退换,同时也不承担用户因使用这些下载资源对自己和他人造成任何形式的伤害或损失;
6、 下载文件中如有侵权或不适当内容,请与我们联系,我们立即纠正。