

作品包括:
说明书1份,共152页,约41000字左右
CAD版本本图纸,共10张
摘 要
预应力混凝土梁式桥在我国桥梁建筑上占有重要的地位,目前,对于中小跨径的永久性桥梁,无论是公路桥梁或者城市桥梁,都在尽量采用预应力混凝土梁式桥,最主要的因素是这种桥梁具有就地取材,工业化施工,耐久性好,适应性强,整体性好以及美观等多方面的优点。
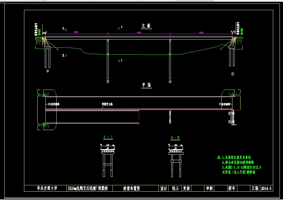
本设计采用先简支后连续T型梁结构,其上部结构由主梁、横隔梁、行车道板,桥面部分和支座等组成,主梁是桥梁的主要承重构件。其通过横梁和行车道板连接成为整体,使车辆荷载在各主梁之间有较好的横向分布。桥面部分由桥面铺装、伸缩装置和栏杆等组成,虽然这些构造不是桥梁的主要承重构件,但它们的设计与施工直接关系到桥梁整体的功能与安全,但其对桥梁的美观和使用功能具有重要影响。
本设计主要受跨中正弯矩的控制,当跨径增大时,跨中由恒载和活载产生的弯矩将急剧增加,是材料的强度大部分为结构重力所消耗,因而限制其跨越能力,本设计采用40m标准跨径,合理地解决了这一问题。在设计中通过主梁内力计算、应力钢筋的布置、主梁截面强度与应力验算、行车道板及支座、桥墩的计算等等,完美地构造了一座预应力混凝土先简支后连续T型梁桥,而且验算完全符合要求,所用方法均与新规范相对应。本设计重点突出了预应力在桥梁中的使用,这也正体现了我国桥梁的发展趋势。
关键词:预应力,T梁,后张法,应力验算
目 录
摘 要 I
Abstract II
目 录 III
第一章 绪论 1
1.1 预应力混凝土先简支后连续(T梁)梁桥概述 1
1.1.1 先简支后连续梁桥发展概况 1
1.1.2 先简支后连续梁桥的应用范围及分类 2
1.1.3 部分预应力先简支后连续梁桥设计中应注意问题 3
1.2 毕业设计的目的和意义 3
1.3 设计总说明 4
1.3.1 设计主要技术指标 4
1.3.2 材料规格 5
1.3.4 设计参考规范 6
1.3.5 设计参考书目 6
第二章 桥型方案比选 8
2.1 设计要求 8
2.2 比选的标准 8
2.3 几种常见桥型的特点 9
第三章 构造布置 12
3.1 设计资料 12
3.1.1 主梁 12
3.2 检验截面效率指标 14
第四章 行车道板计算 16
4.1 行车道板内力计算 16
4.1.1 边梁悬臂端计算 16
4.1.2 两相邻翼缘板计算 17
4.2 行车道板的配筋计算 21
第五章 主梁作用效应计算 23
5.1 恒载内力 23
5.1.1 永久荷载集度 23
5.1.2 永久作用效应 24
5.2 可变作用效应计算 24
5.2.1 冲击系数和车道折减系数 24
5.2.2 主梁的荷载横向分布系数 25
5.2.3 计算部分截面的弯矩和剪力 30
5.3 温差应力 31
5.4 内力组合 32
5.4.1 按照承载能力极限状态设计基本组合 32
5.4.2 按照正常使用极限状态设计组合 33
5.4.3 部分截面的内力组合 34
第六章 预应力钢束数量确定及其布置 49
6.1 预应力配筋原理与方法 49
6.1.2 按承载能力极限状态的强度要求计算 53
6.2 手算部分截面预应力钢束估算 53
6.2.1 21号节点的计算 54
6.2.2 41号节点的钢束计算 54
6.2.3 61号节点的钢束计算 55
6.3 钢束的布置 56
第七章 横隔梁计算 58
7.1 确定作用在跨中横隔梁上的可变作用 58
7.2 跨中横隔梁的作用效应影响线 58
7.2.1 绘制弯矩影响线 59
7.2.2 绘制1号梁右截面的剪力 影响线 60
7.3 截面作用效应计算 60
7.4 荷载配筋计算 61
第八章 主梁截面几何特性计算 63
8.1 截面面积及惯性矩计算 63
8.1.1 净截面几何特性计算 63
8.1.2 换算截面几何特性计算 64
第九章 预应力损失及有效预应力计算 66
9.1 钢束预应力损失计算 66
9.1.1 摩阻损失 66
9.1.2 锚具变形损失 66
9.1.3 温度损失 67
9.1.4 混凝土弹性压缩损失 67
9.1.5 预应力钢筋的应力松弛损失 67
9.1.6 混凝土收缩徐变损失 68
9.2 钢筋预应力损失及有效预应力的计算 68
第十章 主梁内力、抗裂、挠度验算 73
10.1 主梁截面内力验算 73
10.2 主梁截面抗裂验算 76
10.2.1 正截面抗裂验算 76
10.2.2 斜截面抗裂验算 78
10.3 主梁挠度验算 84
10.3.1 正常使用极限状态挠度验算 84
10.3.2 受弯构件预拱度的计算 85
第十一章 构件的应力验算 88
11.1 持久状况下构件的应力验算 88
11.1.1 正截面混凝土压应力验算 88
11.1.2 斜截面混凝土压应力验算 93
11.2 短暂状况下构件的应力验算 98
11.3 预应力钢筋验算 123
第十二章 盖梁计算 125
12.1 盖梁尺寸及材料 125
12.2 荷载计算 125
12.2.1 上部构造恒载 125
12.2.2 盖梁自重及作用效应计算 126
12.2.3 可变荷载计算 127
12.2.4 双柱反力 计算 132
12.3 内力计算 134
12.3.1 恒载加可变荷载作用下的各截面的内力 134
12.3.2 盖梁内力汇总 136
12.4 盖梁各截面的配筋设计与承载能力校核 136
12.4.1 正截面抗弯承载力验算 136
12.4.2 斜截面抗剪承载力验算 137
第十三章 桥墩墩柱计算 139
13.1 荷载计算 139
13.1.1 恒载计算 139
13.1.3 双柱反力横向分布计算 140
13.1.4 荷载组合 140
13.2 截面配筋计算及应力验算 141
13.2.1 作用于墩柱顶的外力 141
13.2.2 作用于墩柱底的外力 142
13.2.3 截面配筋计算 142
结 论 144
致 谢 145
参考文献 146
温馨提示:
1、题目前面的备注【字母数字编号】为本站整理分类的编号,与课题内容无关,请选题时忽视;
2、若题目上备注三维,则表示文件里包含三维源文件,由于三维组成零件数量较多,为保证预览截图的简洁性,本站将三维文件夹进行了打包。三维及CAD预览截图,均为本站电脑打开软件进行截图的,保证能够打开,下载原件超高清,下载后解压即可;
3、本站所有资源如无特殊说明,都需要本地电脑安装Office2007。图纸软件为AutoCAD,PROE,UG,SolidWorks,CATIA等;
4、本站所有图文资料仅供用户学习参考,不作为任何商用或其他用途;
5、本站不保证下载资源的准确性、安全性和完整性, 不包修改,不支持退换,同时也不承担用户因使用这些下载资源对自己和他人造成任何形式的伤害或损失;
6、 下载文件中如有侵权或不适当内容,请与我们联系,我们立即纠正。