

作品包括:
Word版说明书1份,共89页,约47000字
CAD版本图纸,共3张
摘 要
毕业设计主要包括三个部分,第一部分是天津市地铁6号线珠江道站基坑围护结构设计;第二部分是天津市地铁6号线珠江道站基坑施工组织设计;第三部分是专题部分,内容是地铁联络通道顶管法施工技术研究。
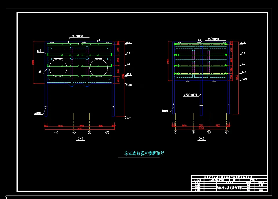
在第一部分基坑围护结构设计中,根据天津市地铁6号线珠江道站基坑所处的工程地质、水文地质条件和周边环境情况,通过施工方案的比选,确定采用地下连续墙作为基坑的围护方案,支撑方案选为对撑,从地面至坑底依次设四道钢管支撑,并且进行围护结构及支撑的内力计算、相应的强度和地连墙的配筋验算以及基坑的抗渗、抗隆起等验算。
第二部分为珠江道站施工组织设计,根据基坑围护方案、施工方法和基坑周边的环境情况,对施工前准备工作、施工场地布置、围护结构施工、基坑开挖与支撑安装等进行设计,并编制了工程进度计划,编写了相应的安全、质量、环境保护等措施。
第三部分专题内容是地铁联络通道顶管法施工技术的研究。介绍了地铁联络通道的施工方法,并进行了不同施工方法的比较,重点介绍了顶管法施工和施工过程中的关键技术措施,主要包括铁联络通道施工方法、顶管法施工关键技术措施,并结合上海淮海路~复兴路站工程实例,介绍了具体的设计和施工过程。
关键词:深基坑;地下连续墙;施工组织设计;地铁联络通道;顶管法。
目 录
第一部分 天津地铁珠江道站基坑围护结构设计
1 工程概况 1
1.1 工程地质及水文地质条件 1
1.1.1 工程地质条件 1
1.1.2 水文地质条件 1
1.2 工程周围环境 2
1.2.1 基坑周围临近建筑物 2
1.2.2 基坑周围地下管线及地下构筑物设施 2
1.2.3 基坑周围道路 2
2 设计依据和设计标准 4
2.1 设计依据 4
2.2 基坑工程等级 5
2.3 基坑设计控制标准 5
3 基坑围护方案设计 5
3.1 基坑围护方案 5
3.1.1 水泥土搅拌桩 5
3.1.2 地下连续墙 6
3.1.3 SWM工法 6
3.1.4 全套管钻孔咬合桩 6
3.2基坑围护结构方案比选 6
4 基坑支撑方案设计 8
4.1 支撑结构类型 8
4.2 支撑体系布置形式及方案比选 8
4.3 基坑施工应变措施 9
4.3.1 支护墙的渗水与漏水 9
4.3.2 防止侧向位移发展的措施 9
4.3.3 流砂及管涌的处理 9
4.3.4 临近建筑与管线位移的控制 9
5 计算书 9
5.1 相关计算参数 9
5.2 土压力计算 9
5.3 围护结构地基承载力验算 11
5.4 基坑底部土体的抗隆起验算 11
5.5 基坑抗渗验算 12
5.6 抗倾覆验算 13
5.7 整体圆弧滑动稳定性验算 15
5.8 围护结构内力变形计算 15
5.8.1 第一道支撑计算 16
5.8.2 第二道支撑计算 17
5.8.3 第三道支撑计算 18
5.8.4 第四道支撑计算 19
5.9 钢支撑强度验算 21
5.10 地下连续墙截面配筋计算 23
5.10.1 横截面抗弯计算 23
5.10.2 横截面抗剪计算 24
6 基坑主要技术经济指标 24
6.1 开挖土方量 25
6.2 浇筑混凝土总量 25
6.3 钢筋总用量 25
6.4 人工费用 25
第二部分 天津地铁珠江道站基坑施工组织设计
1 基坑施工准备 26
1.1 基坑施工的技术准备 26
1.2 基坑施工的现场准备 26
1.1.1拆除障碍物 26
1.1.2 测量放线 26
1.1.3“三通一平” 26
1.1.4临时设施的准备 27
1.3 基坑施工的物资准备 27
1.3.1 物资准备 28
1.3.2 劳动力准备 28
1.3.3 季节施工及应急准备工作 28
2 基坑施工方案 29
2.1 工程概况 29
2.2 工程的施工顺序 29
2.3 施工机械 29
2.4 地下连续墙施工工艺 31
2.4.1 地下连续墙施工流程 31
2.4.2 导墙施工 31
2.4.3 泥浆系统 33
2.4.4 开挖槽段 35
2.4.5 槽段检验 36
2.4.6 钢筋笼制作 37
2.4.7 钢筋笼吊装 37
2.4.8 吊装接头管 37
2.4.9 浇灌墙体混凝土 37
2.4.10 顶拔接头管 37
2.4.11 地下连续墙质量控制标准 38
2.5 基坑开挖 38
2.5.1 基坑开挖方法 38
2.5.2 基坑底面平整 39
2.5.3 素混凝土垫层铺筑 39
2.6 钢支撑安装 39
2.7 施工主要技术措施和关键部位技术措施 40
2.7.1 施工主要技术措施 40
2.7.2 关键部位技术措施 42
3 施工总平面布置 43
3.1 施工现场临时建筑物的布置原则 43
3.2 施工用的临时运输线路的布置 43
3.3 建筑材料的堆放位置 43
4 施工进度计划及管理措施 44
4.1 施工总体筹划 44
4.1.1 施工筹划的目标 44
4.1.2 工期保证措施 44
4.1.3 施工横道图 45
5 质量、安全、文明管理措施 45
5.1 质量管理措施 45
5.1.1 工程质量标准 45
5.1.2 质量管理网络 45
5.1.3 质量保证体系 46
5.2 土方运输环节管理规定 46
5.2.1 车辆情况 46
5.2.2 土方装卸 47
5.2.3 土方运输 47
5.2.4 应急响应 48
5.3 安全生产管理措施 48
5.4 文明施工措施 49
第三部分 地铁联络通道顶管法施工技术研究
1 引言 50
2 地铁联络通道施工方法 50
3 地铁联络通道顶管法施工中的关键技术措施 51
3.1 顶管施工设备的选择 52
3.2 联络通道的顶进方式 52
3.3 顶管出洞 53
3.2.1 管道放线 53
3.2.2 导轨铺设 54
3.2.3 洞口加固 54
3.2.4 洞口止水 55
3.2.5 后靠 55
3.4 顶管正常顶进施工技术 56
3.3.1顶管顶进与地层变形控制 56
3.3.2 施工参数的控制 56
3.3.3 顶管姿态的控制 56
3.3.4 纠偏千斤顶的应用 56
3.3.5 止水密封橡胶带装置 56
3.5 顶管进洞 57
3.4.1 导轨的铺设 57
3.4.2 应力释放孔布置 57
3.4.3 施工参数的控制 57
3.4.4 弧形网格的割除 57
3.4.5 封门拆除 57
3.4.6 洞门封堵 57
3.4.7 压注浆液 57
4 联络通道顶管法施工的工程应用 57
4.1 工程概况 58
4.2 地质情况 58
4.3 施工设备 59
4.3.1 加工制作的简易网格式矩形挤压式顶管机 59
4.3.2 辅助设备 59
4.4 施工方案 60
4.4.1 钢管节 60
4.4.2 工作原理 60
4.4.3 联络通道内部结构 61
4.5 施工监测 61
4.5.1 地表隆起与沉降监测 61
4.5.2 隧道管片变形监测 62
5 结论与展望 62
参考文献 63
翻译部分 64
致 谢 73
温馨提示:
1、题目前面的备注【字母数字编号】为本站整理分类的编号,与课题内容无关,请选题时忽视;
2、若题目上备注三维,则表示文件里包含三维源文件,由于三维组成零件数量较多,为保证预览截图的简洁性,本站将三维文件夹进行了打包。三维及CAD预览截图,均为本站电脑打开软件进行截图的,保证能够打开,下载原件超高清,下载后解压即可;
3、本站所有资源如无特殊说明,都需要本地电脑安装Office2007。图纸软件为AutoCAD,PROE,UG,SolidWorks,CATIA等;
4、本站所有图文资料仅供用户学习参考,不作为任何商用或其他用途;
5、本站不保证下载资源的准确性、安全性和完整性, 不包修改,不支持退换,同时也不承担用户因使用这些下载资源对自己和他人造成任何形式的伤害或损失;
6、 下载文件中如有侵权或不适当内容,请与我们联系,我们立即纠正。